Your email has been sent.
69500 Bron 21,528 SF Flex Building $3,849,776 CAD ($178.83 CAD/SF)



Some information has been automatically translated.
Executive Summary
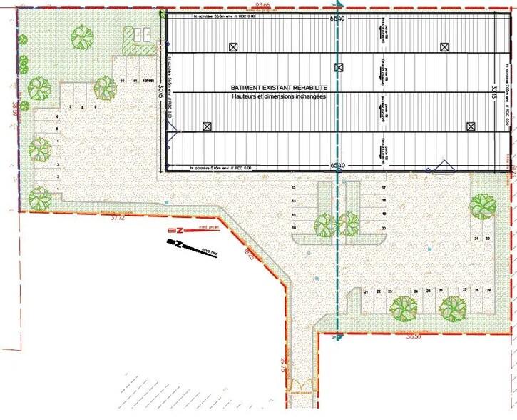
- Parcelle de 4 800 m2
- Dimensions du bâtiment : 30 mètres x 65 mètres
- Hauteur sous plafond : 4,5 m à 5,5 m
- 50 places de parking + stationnements disponibles sur la voie publique
Activité de restauration autorisée.
Honoraires 5% HT du prix de vente à la charge de l'acquéreur. Ref : 29212
Property Facts
| Price | $3,849,776 CAD | Building Class | C |
| Price Per SF | $178.83 CAD | Rentable Building Area | 10,000 - 60,000 SF |
| Sale Type | Owner User | Year Built | 1990 - 1999 |
| Property Type | Flex | Drive In Bays | Yes |
| Property Subtype | Light Manufacturing |
| Price | $3,849,776 CAD |
| Price Per SF | $178.83 CAD |
| Sale Type | Owner User |
| Property Type | Flex |
| Property Subtype | Light Manufacturing |
| Building Class | C |
| Rentable Building Area | 10,000 - 60,000 SF |
| Year Built | 1990 - 1999 |
| Drive In Bays | Yes |
Amenities
- 24 Hour Access
- Fenced Lot
- Security System
Space Availability
- Space
- Size
- Space Use
- Build-Out
- Available
- -
- 21,291 SF
- Retail
- -
- Now
- Ground
- 19,375 SF
- Flex
- -
- Now
Le bâtiment situé dans le Parc du Chêne à Bron propose 1?970 m² de surface à louer, implantés sur une vaste parcelle de 4?800 m². Il s’agit d’un grand volume rectangulaire de 30 mètres par 65 mètres, offrant une hauteur sous plafond comprise entre 4,5 et 5,5 mètres, idéal pour accueillir des activités nécessitant de l’espace et de la flexibilité. Le site bénéficie d’une excellente accessibilité grâce à la proximité immédiate de l’A43, du périphérique Laurent Bonnevay et de la ligne T5 située à seulement 250 mètres. Il dispose d’environ 50 places de parking, complétées par des stationnements publics à proximité. L’activité de restauration y est autorisée, et le local est également proposé à la vente, constituant une opportunité rare dans un secteur dynamique et recherché.
| Space | Size | Space Use | Build-Out | Available |
| - | 2,153 SF | Office | - | Now |
| - | 21,291 SF | Retail | - | Now |
| Ground | 19,375 SF | Flex | - | Now |
| Ground | 21,205 SF | Flex | Full Build-Out | Now |
-
| Size |
| 2,153 SF |
| Space Use |
| Office |
| Build-Out |
| - |
| Available |
| Now |
-
| Size |
| 21,291 SF |
| Space Use |
| Retail |
| Build-Out |
| - |
| Available |
| Now |
Ground
| Size |
| 19,375 SF |
| Space Use |
| Flex |
| Build-Out |
| - |
| Available |
| Now |
Ground
| Size |
| 21,205 SF |
| Space Use |
| Flex |
| Build-Out |
| Full Build-Out |
| Available |
| Now |
-
| Size | 2,153 SF |
| Space Use | Office |
| Build-Out | - |
| Available | Now |
Ground
| Size | 21,205 SF |
| Space Use | Flex |
| Build-Out | Full Build-Out |
| Available | Now |
Le bâtiment situé dans le Parc du Chêne à Bron propose 1?970 m² de surface à louer, implantés sur une vaste parcelle de 4?800 m². Il s’agit d’un grand volume rectangulaire de 30 mètres par 65 mètres, offrant une hauteur sous plafond comprise entre 4,5 et 5,5 mètres, idéal pour accueillir des activités nécessitant de l’espace et de la flexibilité. Le site bénéficie d’une excellente accessibilité grâce à la proximité immédiate de l’A43, du périphérique Laurent Bonnevay et de la ligne T5 située à seulement 250 mètres. Il dispose d’environ 50 places de parking, complétées par des stationnements publics à proximité. L’activité de restauration y est autorisée, et le local est également proposé à la vente, constituant une opportunité rare dans un secteur dynamique et recherché.
Presented by
"69500 Bron"
Hmm, there seems to have been an error sending your message. Please try again.
Thanks! Your message was sent.


