Log In/Sign Up
Your email has been sent.
Bulverde Business Park 3 Flex Properties in San Antonio, TX



Executive Summary
Three (3) Industrial flex buildings available for sale. Fully finished out and insulated. Sloped roof with a clear height ranging from 16' - 18' with grade-level doors. Asking Price $230 PSF.
Building 3 has a total of five (5) individual units of 1,800 SF each. Each unit has an office (167 SF) , ADA restroom and 1 (12 x 12) roll - up door.
Building 4 has a total of 2,250 SF with one office (195 SF), restroom and 4 (12 x 12) roll - up doors.
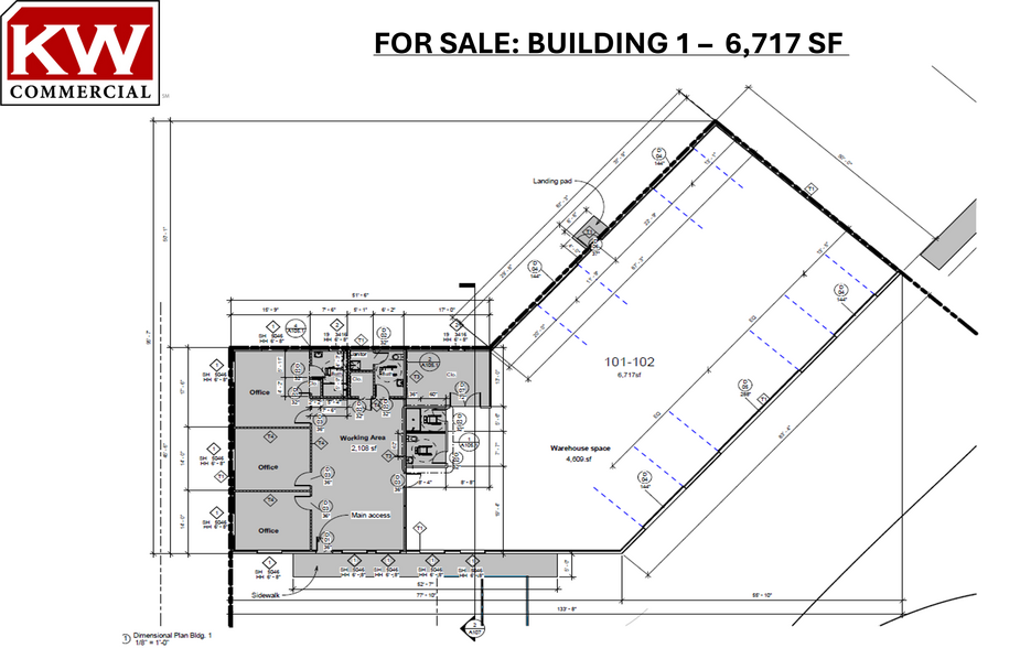
Building 5 has a total of 6,237 SF of which approximately 1,947 SF is office. The building includes 4 (12 x 12) roll-up doors and 1 (12 x 24) rollup door. Owner will sign a 2 year lease back at $12,500 per month.
Parking Ratio of 1.5 per 1,000 SF.
The industrial park can be purchased as whole (3 Buildings) or per building. Individual units are also available for sale
Building 3 has a total of five (5) individual units of 1,800 SF each. Each unit has an office (167 SF) , ADA restroom and 1 (12 x 12) roll - up door.
Building 4 has a total of 2,250 SF with one office (195 SF), restroom and 4 (12 x 12) roll - up doors.
Building 5 has a total of 6,237 SF of which approximately 1,947 SF is office. The building includes 4 (12 x 12) roll-up doors and 1 (12 x 24) rollup door. Owner will sign a 2 year lease back at $12,500 per month.
Parking Ratio of 1.5 per 1,000 SF.
The industrial park can be purchased as whole (3 Buildings) or per building. Individual units are also available for sale
Property Facts
| Sale Type | Investment | Individually For Sale | 3 |
| Status | Active | Total Building Size | 18,667 SF |
| Number of Properties | 3 | Total Land Area | 6.57 AC |
| Sale Type | Investment |
| Status | Active |
| Number of Properties | 3 |
| Individually For Sale | 3 |
| Total Building Size | 18,667 SF |
| Total Land Area | 6.57 AC |
Properties
| Property Name / Address | Property Type | Size | Year Built | Individual Price |
|---|---|---|---|---|
|
Building 3
13807 Bulverde Rd, San Antonio, TX 78247 |
Flex | 9,700 SF | 2026 | - |
|
Building 5
13807 Bulverde Rd, San Antonio, TX 78247 |
Flex | 6,717 SF | 2026 | - |
|
Building 4
13807 Bulverde Rd, San Antonio, TX 78247 |
Flex | 2,250 SF | 2026 | - |
1 1
1 of 22
Videos
Matterport 3D Exterior
Matterport 3D Tour
Photos
Street View
Street
Map
1 of 1
Presented by
Bulverde Business Park
Already a member? Log In
Hmm, there seems to have been an error sending your message. Please try again.
Thanks! Your message was sent.
