Log In/Sign Up
Your email has been sent.
Zona centre 0.1 Acres of Residential Land Offered at $865,937 CAD in Calella, Barcelona 08370



Some information has been automatically translated.
Investment Highlights
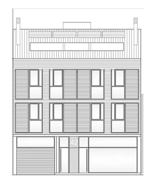
- Proyecto con seis viviendas, local comercial y aparcamiento.
- Fachada amplia y profundidad ideal para distribución eficiente.
- Potencial edificable de más de 1.100?m2 útiles.
- Alta demanda residencial y turística en el centro urbano.
Executive Summary
Disponible en venta estupenda parcela urbana ubicada en pleno centro de Calella, a escasos pasos de la playa y rodeado de actividad comercial.
Cuenta con una superficie de 392?m2, una fachada de 11,16 metros y una profundidad de 35,06 metros, el terreno ofrece una configuración ideal para maximizar el aprovechamiento edificable.
La parcela permite construir hasta 1.148?m2 útiles distribuidos en planta sótano, planta baja, dos plantas piso y planta bajo cubierta. El proyecto previsto contempla la edificación de seis viviendas, un local comercial en planta baja, siete plazas de aparcamiento y siete trasteros, lo que responde perfectamente a la demanda urbana de vivienda con servicios complementarios.
Este solar representa una inversión con potencial de retorno tanto por venta como por alquiler.
Cuenta con una superficie de 392?m2, una fachada de 11,16 metros y una profundidad de 35,06 metros, el terreno ofrece una configuración ideal para maximizar el aprovechamiento edificable.
La parcela permite construir hasta 1.148?m2 útiles distribuidos en planta sótano, planta baja, dos plantas piso y planta bajo cubierta. El proyecto previsto contempla la edificación de seis viviendas, un local comercial en planta baja, siete plazas de aparcamiento y siete trasteros, lo que responde perfectamente a la demanda urbana de vivienda con servicios complementarios.
Este solar representa una inversión con potencial de retorno tanto por venta como por alquiler.
Property Facts
| Price | $865,937 CAD | Property Type | Land |
| Sale Type | Investment or Owner User | Property Subtype | Residential |
| No. Lots | 1 | Total Lot Size | 0.10 AC |
| Price | $865,937 CAD |
| Sale Type | Investment or Owner User |
| No. Lots | 1 |
| Property Type | Land |
| Property Subtype | Residential |
| Total Lot Size | 0.10 AC |
1 Lot Available
Lot
| Price | $865,937 CAD | Lot Size | 0.10 AC |
| Price Per AC | $8,940,553.91 CAD |
| Price | $865,937 CAD |
| Price Per AC | $8,940,553.91 CAD |
| Lot Size | 0.10 AC |
Parcela urbana de forma rectangular que cuenta con 11,16 metros de fachada y una profundidad de 35,06 m2. Un total de 392 m2 sobre terreno llano en bruto.
Description
Available for sale: an excellent urban plot located in the heart of Calella, just steps away from the beach and surrounded by commercial activity. With a surface area of 392 m², a frontage of 11.16 meters, and a depth of 35.06 meters, the land offers an ideal configuration to maximize building potential.
1 of 5
Videos
Matterport 3D Exterior
Matterport 3D Tour
Photos
Street View
Street
Map
Presented by
Zona centre
Already a member? Log In
Hmm, there seems to have been an error sending your message. Please try again.
Thanks! Your message was sent.

