Your email has been sent.
Edificio E2 Calle Julián Camarillo, 29 2,196 - 26,006 SF of Office Space Available in San Blas - Canillejas, Madrid 28037



Some information has been automatically translated.
Highlights
- Exclusive office building
- Excellent communications
- Very dynamic business area
- Gran visibilidad.
All Available Spaces(5)
Display Rental Rate as
- Space
- Size
- Term
-
Rental Rate
- Space Use
- Build-Out
- Available
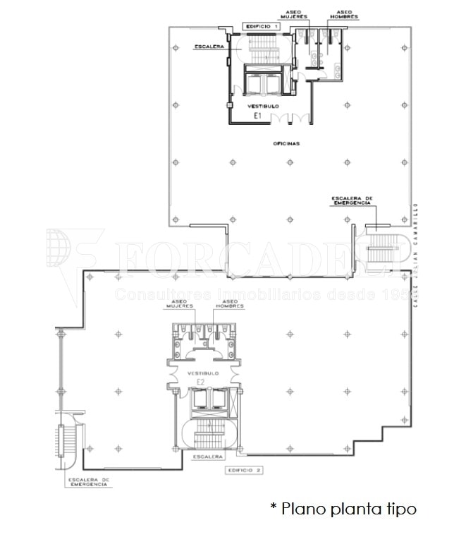
Disponible en alquiler oficina ubicada en edificio exclusivo de oficinas situado en la calle Julián Camarillo. Las oficinas, totalmente diáfanas disponen de suelo técnico, falso techo con luminarias LED opcional, climatización VRV. Se encuentra dentro de un recinto cerrado con seguridad y amplias zonas ajardinadas comunes, lo que favorece estar en un entorno de trabajo de alta representatividad y tranquilidad. El edificio que ha sido recientemente reformado cuanta con 5 plantas sobre rasante (planta baja + 4) dispone de servicio de conserjería, vigilancia 365 días al año las 24 h, CCTV, fachada muro cortina, accesos adaptados y 2 núcleos de baños por planta. Rodeado de zonas comunes verdes y espaciosas con áreas de descanso. En el mismo complejo hay servicios de restaurante/cafetería. Dispone de parking interior con varias plazas sujetas a disponibilidad a razón de 100 €/plaza/mes. Excelentes comunicaciones mediante transporte público con paradas de autobús cercanas y con las estaciones de Ciudad Lineal (línea 5), Suanzes (línea 5) y García Noblejas (línea 7) a escasos 5 minutos a pie.
- Charges not included in the Rent: $0.60 CAD/SF/MO
- Fully Built-Out as Standard Office
- Raised Floor
- Natural Light
- Open-Plan
- Zona empresarial consolidada.
- Taxes included in the Rent
- Open Floor Plan Layout
- Exposed Ceiling
- Common Parts WC Facilities
- Espaciosas oficinas.
- Posibilidad de anexar con oficina de E1.
Disponible en alquiler oficina ubicada en edificio exclusivo de oficinas situado en la calle Julián Camarillo. Las oficinas, totalmente diáfanas disponen de suelo técnico, falso techo con luminarias LED opcional, climatización VRV. Se encuentra dentro de un recinto cerrado con seguridad y amplias zonas ajardinadas comunes, lo que favorece estar en un entorno de trabajo de alta representatividad y tranquilidad. El edificio que ha sido recientemente reformado cuanta con 5 plantas sobre rasante (planta baja + 4) dispone de servicio de conserjería, vigilancia 365 días al año las 24 h, CCTV, fachada muro cortina, accesos adaptados y 2 núcleos de baños por planta. Rodeado de zonas comunes verdes y espaciosas con áreas de descanso. En el mismo complejo hay servicios de restaurante/cafetería. Dispone de parking interior con varias plazas sujetas a disponibilidad a razón de 100 €/plaza/mes. Excelentes comunicaciones mediante transporte público con paradas de autobús cercanas y con las estaciones de Ciudad Lineal (línea 5), Suanzes (línea 5) y García Noblejas (línea 7) a escasos 5 minutos a pie.
- Charges not included in the Rent: $0.60 CAD/SF/MO
- Fully Built-Out as Standard Office
- Can be combined with additional space(s) for up to 19,504 SF of adjacent space
- Exposed Ceiling
- Common Parts WC Facilities
- Espaciosas oficinas.
- Taxes included in the Rent
- Open Floor Plan Layout
- Raised Floor
- Natural Light
- Open-Plan
- Zona empresarial consolidada.
Disponible en alquiler oficina ubicada en edificio exclusivo de oficinas situado en la calle Julián Camarillo. Las oficinas, totalmente diáfanas disponen de suelo técnico, falso techo con luminarias LED opcional, climatización VRV. Se encuentra dentro de un recinto cerrado con seguridad y amplias zonas ajardinadas comunes, lo que favorece estar en un entorno de trabajo de alta representatividad y tranquilidad. El edificio que ha sido recientemente reformado cuanta con 5 plantas sobre rasante (planta baja + 4) dispone de servicio de conserjería, vigilancia 365 días al año las 24 h, CCTV, fachada muro cortina, accesos adaptados y 2 núcleos de baños por planta. Rodeado de zonas comunes verdes y espaciosas con áreas de descanso. En el mismo complejo hay servicios de restaurante/cafetería. Dispone de parking interior con varias plazas sujetas a disponibilidad a razón de 100 €/plaza/mes. Excelentes comunicaciones mediante transporte público con paradas de autobús cercanas y con las estaciones de Ciudad Lineal (línea 5), Suanzes (línea 5) y García Noblejas (línea 7) a escasos 5 minutos a pie.
- Charges not included in the Rent: $0.60 CAD/SF/MO
- Fully Built-Out as Standard Office
- Can be combined with additional space(s) for up to 19,504 SF of adjacent space
- Exposed Ceiling
- Common Parts WC Facilities
- Amplias oficinas.
- Taxes included in the Rent
- Open Floor Plan Layout
- Raised Floor
- Natural Light
- Open-Plan
- Zona empresarial consolidada.
Disponible en alquiler oficina ubicada en edificio exclusivo de oficinas situado en la calle Julián Camarillo. Las oficinas, totalmente diáfanas disponen de suelo técnico, falso techo con luminarias LED opcional, climatización VRV. Se encuentra dentro de un recinto cerrado con seguridad y amplias zonas ajardinadas comunes, lo que favorece estar en un entorno de trabajo de alta representatividad y tranquilidad. El edificio que ha sido recientemente reformado cuanta con 5 plantas sobre rasante (planta baja + 4) dispone de servicio de conserjería, vigilancia 365 días al año las 24 h, CCTV, fachada muro cortina, accesos adaptados y 2 núcleos de baños por planta. Rodeado de zonas comunes verdes y espaciosas con áreas de descanso. En el mismo complejo hay servicios de restaurante/cafetería. Dispone de parking interior con varias plazas sujetas a disponibilidad a razón de 100 €/plaza/mes. Excelentes comunicaciones mediante transporte público con paradas de autobús cercanas y con las estaciones de Ciudad Lineal (línea 5), Suanzes (línea 5) y García Noblejas (línea 7) a escasos 5 minutos a pie.
- Charges not included in the Rent: $0.60 CAD/SF/MO
- Fully Built-Out as Standard Office
- Can be combined with additional space(s) for up to 19,504 SF of adjacent space
- Exposed Ceiling
- Common Parts WC Facilities
- Zona empresarial consolidada.
- Taxes included in the Rent
- Open Floor Plan Layout
- Raised Floor
- Natural Light
- Open-Plan
Disponible en alquiler oficina implantada ubicada en edificio exclusivo de oficinas situado en la calle Julián Camarillo. Las oficinas, totalmente diáfanas disponen de suelo técnico, falso techo con luminarias LED opcional, climatización VRV. Se encuentra dentro de un recinto cerrado con seguridad y amplias zonas ajardinadas comunes, lo que favorece estar en un entorno de trabajo de alta representatividad y tranquilidad. El edificio que ha sido recientemente reformado cuanta con 5 plantas sobre rasante (planta baja + 4) dispone de servicio de conserjería, vigilancia 365 días al año las 24 h, CCTV, fachada muro cortina, accesos adaptados y 2 núcleos de baños por planta. Rodeado de zonas comunes verdes y espaciosas con áreas de descanso. En el mismo complejo hay servicios de restaurante/cafetería. Dispone de parking interior con varias plazas sujetas a disponibilidad a razón de 100 €/plaza/mes. Excelentes comunicaciones mediante transporte público con paradas de autobús cercanas y con las estaciones de Ciudad Lineal (línea 5), Suanzes (línea 5) y García Noblejas (línea 7) a escasos 5 minutos a pie.
- Charges not included in the Rent: $0.60 CAD/SF/MO
- Fully Built-Out as Standard Office
- Can be combined with additional space(s) for up to 19,504 SF of adjacent space
- Exposed Ceiling
- Common Parts WC Facilities
- En el parque empresarial J Camarillo.
- Taxes included in the Rent
- Open Floor Plan Layout
- Raised Floor
- Natural Light
- Open-Plan
| Space | Size | Term | Rental Rate | Space Use | Build-Out | Available |
| 1st Floor | 6,501 SF | Negotiable | $16.13 CAD/SF/YR + Charges $1.34 CAD/SF/MO + Charges $104,863 CAD/YR + Charges $8,739 CAD/MO + Charges | Office | Full Build-Out | 2026-06-28 |
| 2nd Floor | 6,501 SF | Negotiable | $17.92 CAD/SF/YR + Charges $1.49 CAD/SF/MO + Charges $116,515 CAD/YR + Charges $9,710 CAD/MO + Charges | Office | Full Build-Out | Now |
| 3rd Floor | 6,501 SF | Negotiable | $17.92 CAD/SF/YR + Charges $1.49 CAD/SF/MO + Charges $116,515 CAD/YR + Charges $9,710 CAD/MO + Charges | Office | Full Build-Out | Now |
| 4th Floor, Ste Derecha | 4,306 SF | Negotiable | $17.92 CAD/SF/YR + Charges $1.49 CAD/SF/MO + Charges $77,162 CAD/YR + Charges $6,430 CAD/MO + Charges | Office | Full Build-Out | Now |
| 4th Floor, Ste Izquierda | 2,196 SF | Negotiable | $20.61 CAD/SF/YR + Charges $1.72 CAD/SF/MO + Charges $45,258 CAD/YR + Charges $3,771 CAD/MO + Charges | Office | Full Build-Out | Now |
1st Floor
| Size |
| 6,501 SF |
| Term |
| Negotiable |
|
Rental Rate
|
| $16.13 CAD/SF/YR + Charges $1.34 CAD/SF/MO + Charges $104,863 CAD/YR + Charges $8,739 CAD/MO + Charges |
| Space Use |
| Office |
| Build-Out |
| Full Build-Out |
| Available |
| 2026-06-28 |
2nd Floor
| Size |
| 6,501 SF |
| Term |
| Negotiable |
|
Rental Rate
|
| $17.92 CAD/SF/YR + Charges $1.49 CAD/SF/MO + Charges $116,515 CAD/YR + Charges $9,710 CAD/MO + Charges |
| Space Use |
| Office |
| Build-Out |
| Full Build-Out |
| Available |
| Now |
3rd Floor
| Size |
| 6,501 SF |
| Term |
| Negotiable |
|
Rental Rate
|
| $17.92 CAD/SF/YR + Charges $1.49 CAD/SF/MO + Charges $116,515 CAD/YR + Charges $9,710 CAD/MO + Charges |
| Space Use |
| Office |
| Build-Out |
| Full Build-Out |
| Available |
| Now |
4th Floor, Ste Derecha
| Size |
| 4,306 SF |
| Term |
| Negotiable |
|
Rental Rate
|
| $17.92 CAD/SF/YR + Charges $1.49 CAD/SF/MO + Charges $77,162 CAD/YR + Charges $6,430 CAD/MO + Charges |
| Space Use |
| Office |
| Build-Out |
| Full Build-Out |
| Available |
| Now |
4th Floor, Ste Izquierda
| Size |
| 2,196 SF |
| Term |
| Negotiable |
|
Rental Rate
|
| $20.61 CAD/SF/YR + Charges $1.72 CAD/SF/MO + Charges $45,258 CAD/YR + Charges $3,771 CAD/MO + Charges |
| Space Use |
| Office |
| Build-Out |
| Full Build-Out |
| Available |
| Now |
1st Floor
| Size | 6,501 SF |
| Term | Negotiable |
|
Rental Rate
|
$16.13 CAD/SF/YR + Charges |
| Space Use | Office |
| Build-Out | Full Build-Out |
| Available | 2026-06-28 |
Disponible en alquiler oficina ubicada en edificio exclusivo de oficinas situado en la calle Julián Camarillo. Las oficinas, totalmente diáfanas disponen de suelo técnico, falso techo con luminarias LED opcional, climatización VRV. Se encuentra dentro de un recinto cerrado con seguridad y amplias zonas ajardinadas comunes, lo que favorece estar en un entorno de trabajo de alta representatividad y tranquilidad. El edificio que ha sido recientemente reformado cuanta con 5 plantas sobre rasante (planta baja + 4) dispone de servicio de conserjería, vigilancia 365 días al año las 24 h, CCTV, fachada muro cortina, accesos adaptados y 2 núcleos de baños por planta. Rodeado de zonas comunes verdes y espaciosas con áreas de descanso. En el mismo complejo hay servicios de restaurante/cafetería. Dispone de parking interior con varias plazas sujetas a disponibilidad a razón de 100 €/plaza/mes. Excelentes comunicaciones mediante transporte público con paradas de autobús cercanas y con las estaciones de Ciudad Lineal (línea 5), Suanzes (línea 5) y García Noblejas (línea 7) a escasos 5 minutos a pie.
- Charges not included in the Rent: $0.60 CAD/SF/MO
- Taxes included in the Rent
- Fully Built-Out as Standard Office
- Open Floor Plan Layout
- Raised Floor
- Exposed Ceiling
- Natural Light
- Common Parts WC Facilities
- Open-Plan
- Espaciosas oficinas.
- Zona empresarial consolidada.
- Posibilidad de anexar con oficina de E1.
2nd Floor
| Size | 6,501 SF |
| Term | Negotiable |
|
Rental Rate
|
$17.92 CAD/SF/YR + Charges |
| Space Use | Office |
| Build-Out | Full Build-Out |
| Available | Now |
Disponible en alquiler oficina ubicada en edificio exclusivo de oficinas situado en la calle Julián Camarillo. Las oficinas, totalmente diáfanas disponen de suelo técnico, falso techo con luminarias LED opcional, climatización VRV. Se encuentra dentro de un recinto cerrado con seguridad y amplias zonas ajardinadas comunes, lo que favorece estar en un entorno de trabajo de alta representatividad y tranquilidad. El edificio que ha sido recientemente reformado cuanta con 5 plantas sobre rasante (planta baja + 4) dispone de servicio de conserjería, vigilancia 365 días al año las 24 h, CCTV, fachada muro cortina, accesos adaptados y 2 núcleos de baños por planta. Rodeado de zonas comunes verdes y espaciosas con áreas de descanso. En el mismo complejo hay servicios de restaurante/cafetería. Dispone de parking interior con varias plazas sujetas a disponibilidad a razón de 100 €/plaza/mes. Excelentes comunicaciones mediante transporte público con paradas de autobús cercanas y con las estaciones de Ciudad Lineal (línea 5), Suanzes (línea 5) y García Noblejas (línea 7) a escasos 5 minutos a pie.
- Charges not included in the Rent: $0.60 CAD/SF/MO
- Taxes included in the Rent
- Fully Built-Out as Standard Office
- Open Floor Plan Layout
- Can be combined with additional space(s) for up to 19,504 SF of adjacent space
- Raised Floor
- Exposed Ceiling
- Natural Light
- Common Parts WC Facilities
- Open-Plan
- Espaciosas oficinas.
- Zona empresarial consolidada.
3rd Floor
| Size | 6,501 SF |
| Term | Negotiable |
|
Rental Rate
|
$17.92 CAD/SF/YR + Charges |
| Space Use | Office |
| Build-Out | Full Build-Out |
| Available | Now |
Disponible en alquiler oficina ubicada en edificio exclusivo de oficinas situado en la calle Julián Camarillo. Las oficinas, totalmente diáfanas disponen de suelo técnico, falso techo con luminarias LED opcional, climatización VRV. Se encuentra dentro de un recinto cerrado con seguridad y amplias zonas ajardinadas comunes, lo que favorece estar en un entorno de trabajo de alta representatividad y tranquilidad. El edificio que ha sido recientemente reformado cuanta con 5 plantas sobre rasante (planta baja + 4) dispone de servicio de conserjería, vigilancia 365 días al año las 24 h, CCTV, fachada muro cortina, accesos adaptados y 2 núcleos de baños por planta. Rodeado de zonas comunes verdes y espaciosas con áreas de descanso. En el mismo complejo hay servicios de restaurante/cafetería. Dispone de parking interior con varias plazas sujetas a disponibilidad a razón de 100 €/plaza/mes. Excelentes comunicaciones mediante transporte público con paradas de autobús cercanas y con las estaciones de Ciudad Lineal (línea 5), Suanzes (línea 5) y García Noblejas (línea 7) a escasos 5 minutos a pie.
- Charges not included in the Rent: $0.60 CAD/SF/MO
- Taxes included in the Rent
- Fully Built-Out as Standard Office
- Open Floor Plan Layout
- Can be combined with additional space(s) for up to 19,504 SF of adjacent space
- Raised Floor
- Exposed Ceiling
- Natural Light
- Common Parts WC Facilities
- Open-Plan
- Amplias oficinas.
- Zona empresarial consolidada.
4th Floor, Ste Derecha
| Size | 4,306 SF |
| Term | Negotiable |
|
Rental Rate
|
$17.92 CAD/SF/YR + Charges |
| Space Use | Office |
| Build-Out | Full Build-Out |
| Available | Now |
Disponible en alquiler oficina ubicada en edificio exclusivo de oficinas situado en la calle Julián Camarillo. Las oficinas, totalmente diáfanas disponen de suelo técnico, falso techo con luminarias LED opcional, climatización VRV. Se encuentra dentro de un recinto cerrado con seguridad y amplias zonas ajardinadas comunes, lo que favorece estar en un entorno de trabajo de alta representatividad y tranquilidad. El edificio que ha sido recientemente reformado cuanta con 5 plantas sobre rasante (planta baja + 4) dispone de servicio de conserjería, vigilancia 365 días al año las 24 h, CCTV, fachada muro cortina, accesos adaptados y 2 núcleos de baños por planta. Rodeado de zonas comunes verdes y espaciosas con áreas de descanso. En el mismo complejo hay servicios de restaurante/cafetería. Dispone de parking interior con varias plazas sujetas a disponibilidad a razón de 100 €/plaza/mes. Excelentes comunicaciones mediante transporte público con paradas de autobús cercanas y con las estaciones de Ciudad Lineal (línea 5), Suanzes (línea 5) y García Noblejas (línea 7) a escasos 5 minutos a pie.
- Charges not included in the Rent: $0.60 CAD/SF/MO
- Taxes included in the Rent
- Fully Built-Out as Standard Office
- Open Floor Plan Layout
- Can be combined with additional space(s) for up to 19,504 SF of adjacent space
- Raised Floor
- Exposed Ceiling
- Natural Light
- Common Parts WC Facilities
- Open-Plan
- Zona empresarial consolidada.
4th Floor, Ste Izquierda
| Size | 2,196 SF |
| Term | Negotiable |
|
Rental Rate
|
$20.61 CAD/SF/YR + Charges |
| Space Use | Office |
| Build-Out | Full Build-Out |
| Available | Now |
Disponible en alquiler oficina implantada ubicada en edificio exclusivo de oficinas situado en la calle Julián Camarillo. Las oficinas, totalmente diáfanas disponen de suelo técnico, falso techo con luminarias LED opcional, climatización VRV. Se encuentra dentro de un recinto cerrado con seguridad y amplias zonas ajardinadas comunes, lo que favorece estar en un entorno de trabajo de alta representatividad y tranquilidad. El edificio que ha sido recientemente reformado cuanta con 5 plantas sobre rasante (planta baja + 4) dispone de servicio de conserjería, vigilancia 365 días al año las 24 h, CCTV, fachada muro cortina, accesos adaptados y 2 núcleos de baños por planta. Rodeado de zonas comunes verdes y espaciosas con áreas de descanso. En el mismo complejo hay servicios de restaurante/cafetería. Dispone de parking interior con varias plazas sujetas a disponibilidad a razón de 100 €/plaza/mes. Excelentes comunicaciones mediante transporte público con paradas de autobús cercanas y con las estaciones de Ciudad Lineal (línea 5), Suanzes (línea 5) y García Noblejas (línea 7) a escasos 5 minutos a pie.
- Charges not included in the Rent: $0.60 CAD/SF/MO
- Taxes included in the Rent
- Fully Built-Out as Standard Office
- Open Floor Plan Layout
- Can be combined with additional space(s) for up to 19,504 SF of adjacent space
- Raised Floor
- Exposed Ceiling
- Natural Light
- Common Parts WC Facilities
- Open-Plan
- En el parque empresarial J Camarillo.
Property Overview
Exclusive office building with 5 floors above ground (Baja + 4) located on Julián Camarillo street. It is a recently renovated building. It is located in a business park consisting of 8 buildings and has a concierge and surveillance service 364/24 hours a day, closed circuit TV (CCTV), restaurants/cafeteria, indoor parking, green and spacious common areas with rest areas. The offices have technical flooring, false ceiling (with optional LED luminaires), open area, 2 bathroom units per floor, VRV air conditioning, building adapted for the disabled, floor height: 2.5 meters, Breeam Very Good energy certificate. The property is located inside a closed area with a 24-hour security system and large communal garden areas, which create a work environment of high representation and tranquility. On the ground floor, it has a restaurant/cafeteria, with access from the street and which serves park users. The reform has consisted of: - Comprehensive renovation of the air conditioning installation: VRV system with independent heat recovery per office module, which allows the simultaneous production of cold and heat in different indoor equipment. - Comprehensive renovation of the ventilation installation: adaptation of the installation to current regulations in terms of flow and energy efficiency. - Comprehensive renovation of the toilets in compliance with accessibility regulations (PMR People with Reduced Mobility). - Adaptation of common areas: installation of wood panels, RF doors, ceiling lift and indirect lighting. - Lighting renovation: installation of LED lighting in toilets, halls, floors and stairs. - Renewal of emergency lighting: in toilets, halls and stairs. It should be noted that the 2nd floor can be joined to another module, obtaining a total of 1,139.24 m2. The building is very well connected by public and private transport and the area has multiple services: restaurants, cafeterias, hotels, gyms and supermarkets.
- Food Court
- Security System
- Close to Public Transportation
- Doorman
- Wheelchair Accessible
- CCTV (Closed Circuit Television Monitoring)
- Emergency Lighting
- Air Conditioning
Property Facts
Presented by
Company Not Provided
Edificio E2 | Calle Julián Camarillo, 29
Hmm, there seems to have been an error sending your message. Please try again.
Thanks! Your message was sent.





