Your email has been sent.
DC1 Carretera Nacional 1, 25 160,867 SF of Industrial Space Available in San Agustín del Guadalix, Madrid 28750



Some information has been automatically translated.
Highlights
- Zona logística de referencia, con presencia de empresas líderes del sector del transporte, distribución, alimentación y retail.
- Excelentes comunicaciones tanto por carretera A-1, M-50, M-40.
Features
All Available Space(1)
Display Rental Rate as
- Space
- Size
- Term
-
Rental Rate
- Space Use
- Build-Out
- Available
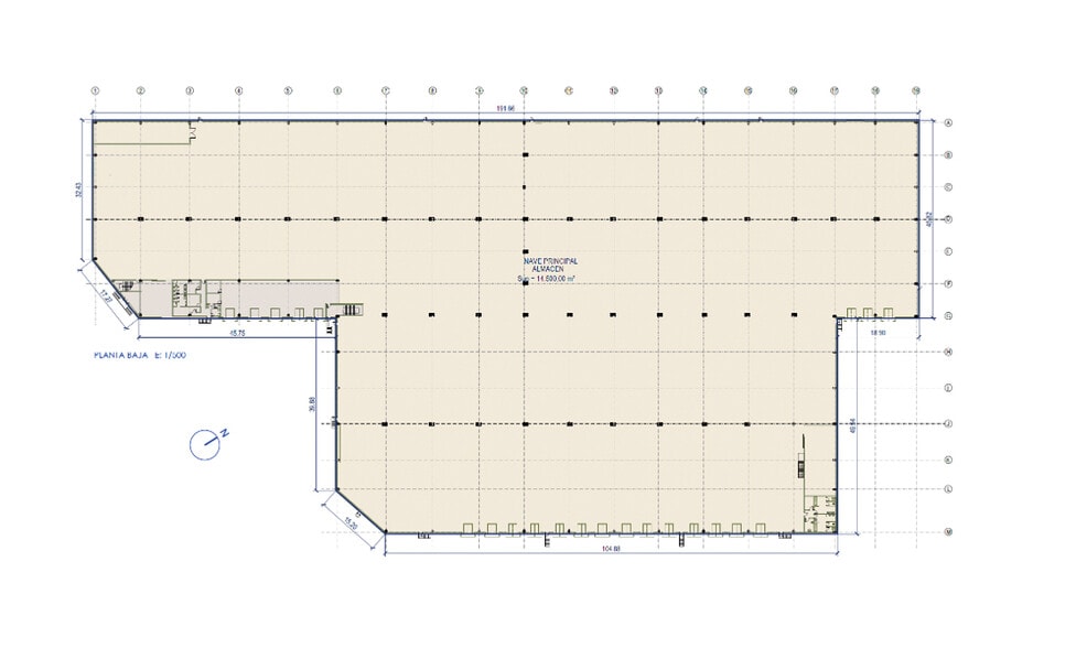
Ref. MAD-IND-01629 San Agustín DC1 es una plataforma logística de última generación diseñada para satisfacer las necesidades operativas de empresas del sector logístico, distribución o comercio electrónico, esta nave ofrece una solución flexible y eficiente. Cuenta con una superficie total de 14.945 m2 con 14.500 m2 de almacén y 445 m2 de oficinas. Las características técnicas son las siguientes: - Estructura de pórticos paralelos de hormigón prefabricado. - Cubierta tipo sándwich con aislamiento y ventilación natural. - Protección contra incendios completa: ESFR, red de BIEs, hidratantes exteriores, extintores. - 19 muelles de carga con puertas seccionales y abrigos. - Solera de hormigón de 20 cm con resistencia a cargas puntuales de 8 Tn. - Altura libre: 12 m. - Vallado perimetral y CCTV. El entorno inmediato está consolidado como una zona logística de referencia, con presencia de empresas líderes del sector del transporte, distribución, alimentación y retail. La zona ofrece excelentes comunicaciones tanto por carretera como por proximidad a centros urbanos. Además, San Agustín de Guadalix es un municipio con fuerte desarrollo industrial, baja densidad de tráfico pesado en comparación con otros ejes y una administración local favorable al desarrollo empresarial. Ubicada estratégicamente en el corazón del corredor logístico norte de Madrid, esta nave industrial forma parte del reconocido Pologis Park San Agustín, uno de los enclaves logísticos de referencia en la Comunidad de Madrid. Se sitúa en el Polígono Industrial Sur de San Agustín de Guadalix, con acceso directo desde la Calle La Lobera, gozando de excelentes comunicaciones tanto por carretera (A-1, M-50, M-40) como por proximidad a núcleos urbanos e infraestructuras clave.
- Taxes and Charges not included in the Rent
- Partitioned Offices
- Security System
- Natural Light
- Plataforma logística de última generación.
- Ideal para logística de cualquier sector.
- Central Air Conditioning
- Private Restrooms
- Closed Circuit Television Monitoring (CCTV)
- Yard
- 19 muelles de carga.
- Excelentes comunicaciones por A-1, M-50 y M-40.
| Space | Size | Term | Rental Rate | Space Use | Build-Out | Available |
| Ground | 160,867 SF | Negotiable | $7.33 CAD/SF/YR EXCL $0.61 CAD/SF/MO EXCL $1,178,683 CAD/YR EXCL $98,224 CAD/MO EXCL | Industrial | - | Now |
Ground
| Size |
| 160,867 SF |
| Term |
| Negotiable |
|
Rental Rate
|
| $7.33 CAD/SF/YR EXCL $0.61 CAD/SF/MO EXCL $1,178,683 CAD/YR EXCL $98,224 CAD/MO EXCL |
| Space Use |
| Industrial |
| Build-Out |
| - |
| Available |
| Now |
Ground
| Size | 160,867 SF |
| Term | Negotiable |
|
Rental Rate
|
$7.33 CAD/SF/YR EXCL |
| Space Use | Industrial |
| Build-Out | - |
| Available | Now |
Ref. MAD-IND-01629 San Agustín DC1 es una plataforma logística de última generación diseñada para satisfacer las necesidades operativas de empresas del sector logístico, distribución o comercio electrónico, esta nave ofrece una solución flexible y eficiente. Cuenta con una superficie total de 14.945 m2 con 14.500 m2 de almacén y 445 m2 de oficinas. Las características técnicas son las siguientes: - Estructura de pórticos paralelos de hormigón prefabricado. - Cubierta tipo sándwich con aislamiento y ventilación natural. - Protección contra incendios completa: ESFR, red de BIEs, hidratantes exteriores, extintores. - 19 muelles de carga con puertas seccionales y abrigos. - Solera de hormigón de 20 cm con resistencia a cargas puntuales de 8 Tn. - Altura libre: 12 m. - Vallado perimetral y CCTV. El entorno inmediato está consolidado como una zona logística de referencia, con presencia de empresas líderes del sector del transporte, distribución, alimentación y retail. La zona ofrece excelentes comunicaciones tanto por carretera como por proximidad a centros urbanos. Además, San Agustín de Guadalix es un municipio con fuerte desarrollo industrial, baja densidad de tráfico pesado en comparación con otros ejes y una administración local favorable al desarrollo empresarial. Ubicada estratégicamente en el corazón del corredor logístico norte de Madrid, esta nave industrial forma parte del reconocido Pologis Park San Agustín, uno de los enclaves logísticos de referencia en la Comunidad de Madrid. Se sitúa en el Polígono Industrial Sur de San Agustín de Guadalix, con acceso directo desde la Calle La Lobera, gozando de excelentes comunicaciones tanto por carretera (A-1, M-50, M-40) como por proximidad a núcleos urbanos e infraestructuras clave.
- Taxes and Charges not included in the Rent
- Central Air Conditioning
- Partitioned Offices
- Private Restrooms
- Security System
- Closed Circuit Television Monitoring (CCTV)
- Natural Light
- Yard
- Plataforma logística de última generación.
- 19 muelles de carga.
- Ideal para logística de cualquier sector.
- Excelentes comunicaciones por A-1, M-50 y M-40.
Property Overview
San Agustín DC1 is a state-of-the-art logistics platform designed to meet the operational needs of companies in the logistics, distribution, or e-commerce sectors. This facility offers a flexible and efficient solution. It boasts a total area of 14,945 m², including 14,500 m² of warehouse space and 445 m² of office space. The technical specifications are as follows: - Structure made of parallel frames of prefabricated concrete. - Sandwich-type roof with insulation and natural ventilation. - Comprehensive fire protection system: ESFR sprinklers, fire hose cabinets, external hydrants, and extinguishers. - 19 loading docks equipped with sectional doors and dock shelters. - 20 cm concrete flooring with a point load resistance of 8 tons. - Clear height: 12 meters. - Perimeter fencing and CCTV surveillance. The immediate surroundings are established as a leading logistics hub, with the presence of top companies in transportation, distribution, food, and retail sectors. The area offers excellent connectivity via roadways and proximity to urban centers. Additionally, San Agustín de Guadalix is a municipality with strong industrial growth, low heavy traffic density compared to other corridors, and a local administration supportive of business development. Strategically located in the heart of Madrid's northern logistics corridor, this industrial facility is part of the renowned Pologis Park San Agustín, one of the key logistics hubs in the Madrid region. It is situated in the Polígono Industrial Sur of San Agustín de Guadalix, with direct access from Calle La Lobera, benefiting from excellent road connections (A-1, M-50, M-40) and proximity to urban centers and critical infrastructure.
Distribution Facility Facts
Presented by
Company Not Provided
DC1 | Carretera Nacional 1, 25
Hmm, there seems to have been an error sending your message. Please try again.
Thanks! Your message was sent.
