Log In/Sign Up
Your email has been sent.
Financing Available
Matterport 3D Tours
Investment Highlights
- The Staunton Avenue industrial assemblage offers investors and owner/users a unique opportunity in Central Los Angeles.
- Well-appointed for warehousing, apparel, manufacturing, and logistics with a large, fenced yard and office space for operational excellence.
- Strategically located near the 10, 5, 710, and 110 Freeways, allowing for efficient regional and national distribution.
- Area demographics within 10 miles are ideal, with over 1.5 million employees and consumer spending exceeding $36.7 million.
Executive Summary
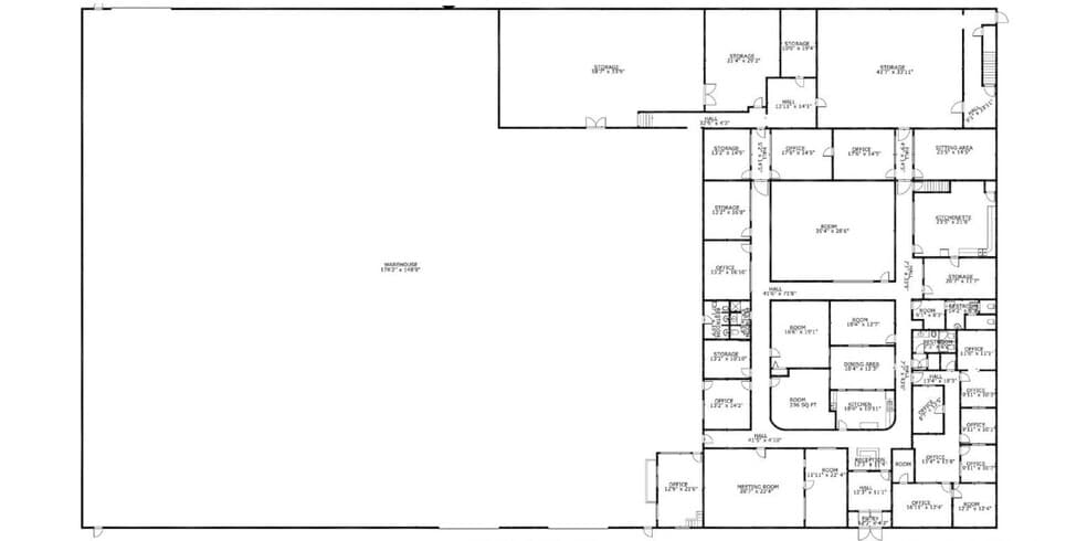
The 57,550-square-foot industrial property located at 4801 & 4815 Staunton Avenue in Los Angeles represents a prime investment or owner/user opportunity within one of Central Los Angeles’s most sought-after industrial markets. This asset offers street-to-street access, a secured yard connecting both freestanding buildings, and versatile functionality suitable for logistics, warehousing, manufacturing, and apparel operations. Positioned on 1.95 acres (84,768 square feet), the property comprises two buildings: one totaling 39,450 square feet with 15,200 square feet of office space and another with 18,100 square feet without office build-out. Both structures are constructed with durable tilt-up concrete and feature clear heights ranging from 20 to 24 feet. The secured yard and dual access points facilitate efficient truck movement, improve circulation, and support optimal operational performance. The property is well-suited for investors and owner/users. Buyers may lease the space at prevailing market rates or customize the facility for their own business requirements. This location provides flexibility and robust potential for a variety of commercial uses.
4801 & 4815 are strategically situated in Central Los Angeles, providing unparalleled access across the city. Investors will appreciate proximity to major landmarks such as Los Angeles International Airport, Downtown Los Angeles, and key interstates, which streamline transportation and distribution. The surrounding area offers convenient amenities for employees, including notable retailers and restaurants like Jersey Mike’s Subs, In-N-Out Burger, Wingstop, and Dollar Tree. Central Los Angeles’ status as a leading industrial hub is reinforced by its centrality within a vast consumer market, supporting valuable last-mile delivery capabilities. Furthermore, the location benefits from a robust legacy of industry and manufacturing, supported by enduring infrastructure that meets the demands of modern business.
Los Angeles serves as an optimal environment for investors. As the nation’s second-largest metropolitan area, Los Angeles features a strong economy that supports continued growth. The market has experienced increased leasing activity within the industrial property sector.
With its strategic location near major transportation routes and limited supply in the surrounding market, this property represents a rare opportunity for investors or industrial users seeking a highly functional, well-located asset in Los Angeles.
Property tours are available by appointment only. Please contact the listing broker to schedule.
4801 & 4815 are strategically situated in Central Los Angeles, providing unparalleled access across the city. Investors will appreciate proximity to major landmarks such as Los Angeles International Airport, Downtown Los Angeles, and key interstates, which streamline transportation and distribution. The surrounding area offers convenient amenities for employees, including notable retailers and restaurants like Jersey Mike’s Subs, In-N-Out Burger, Wingstop, and Dollar Tree. Central Los Angeles’ status as a leading industrial hub is reinforced by its centrality within a vast consumer market, supporting valuable last-mile delivery capabilities. Furthermore, the location benefits from a robust legacy of industry and manufacturing, supported by enduring infrastructure that meets the demands of modern business.
Los Angeles serves as an optimal environment for investors. As the nation’s second-largest metropolitan area, Los Angeles features a strong economy that supports continued growth. The market has experienced increased leasing activity within the industrial property sector.
With its strategic location near major transportation routes and limited supply in the surrounding market, this property represents a rare opportunity for investors or industrial users seeking a highly functional, well-located asset in Los Angeles.
Property tours are available by appointment only. Please contact the listing broker to schedule.
Matterport 3D Tours
1 of 2
Videos
Matterport 3D Exterior
Matterport 3D Tour
Photos
Street View
Street
Map
Offering Memorandum Click Here to Access
Data Room Click Here to Access
- Offering Memorandum
- Operating and Financials
- Leaseback Draft Lease
- Purchase Agreement
- Terms Sheet
- Third Party Reports
- Building Layouts
- Title and Insurance
Market Analytics Click Here to Access
Property Facts
| Sale Condition | Auction Sale | Number of Properties | 2 |
| Type of Ownership | Fee Simple | Total Building Size | 59,617 SF |
| Sale Type | Investment | Total Land Area | 3.55 AC |
| Status | Active |
| Sale Condition | Auction Sale |
| Type of Ownership | Fee Simple |
| Sale Type | Investment |
| Status | Active |
| Number of Properties | 2 |
| Total Building Size | 59,617 SF |
| Total Land Area | 3.55 AC |
Properties
| Property Name / Address | Property Type | Size | Year Built |
|---|---|---|---|
|
Shason, Inc
4801 Staunton Ave, Los Angeles, CA 90058 |
Industrial | 40,502 SF | 1950 |
| 4815 Staunton Ave, Los Angeles, CA 90058 | Industrial | 19,115 SF | 1981 |
Sale Advisor
Frank Lahijani, Chief Executive Officer
Frank Lahijani is a founder, and Chairman Of The Board of Global Commercial Real Estate, Inc., a privately held full service Industrial and Commercial Real Estate firm operating in the Greater Los Angeles market since 2003. Frank’s focus is industrial and commercial property types including all facets of sales and leasing. His highly successful and respected career in Industrial/ Commercial real estate stems from over two decades of faithful service to his clients, industry and community. He has completed over 1000 transactions in excess of 20,000,000 square feet, valued in excess of 2 billion dollars. Thus, he has worked with a wide variety of Investors, Industrial and Commercial users. These include, but are not limited to, sewing, knitting, dying, furniture manufacturing, metal working, plating, food processing, recycling, warehousing and distribution, manufacturing, retail and office. The transactions themselves include sales, leases, subleases, and exchanges. Further, clients range from business owners, absentee property owners, retirees, developers, and asset managers. He completed his studies at UCLA in 1986, where he received his degree in Business Administration.
About the Auction Technology
Auctions by Ten-X are the #1 transaction technology powering commercial real estate transactions online. With over $34B in total transactions, these auctions use best-in-class technology and real-time asset intelligence to put listings in the best position to find the perfect buyer. The expedited auction timeline, comprehensive due diligence, and buyer qualification make transactions twice as fast and twice as certain for brokers, owners, and investors.
Read More
Auction Contact
Jameson Kuykendall
Contact
Auctioneer License:
Ten-X Jessica Figueroa RE Brkr 01937601. Ten-X Auction Surety Bond 106465786
1 of 27
Videos
Matterport 3D Exterior
Matterport 3D Tour
Photos
Street View
Street
Map
3% Transaction Fee
Based on Winning Bid Amount
Minimum Transaction Fee
$20,000 USD
Maximum Transaction Fee
$300,000 USD
Example Calculation
Winning Bid Amount
$5,000,000 USD
Transaction Fee
$150,000 USD (3%)
Total Purchase Price
$5,150,000 USD
Presented by
Central LA Industrial Portfolio
Already a member? Log In
Hmm, there seems to have been an error sending your message. Please try again.
Thanks! Your message was sent.
Presented by
Central LA Industrial Portfolio
Already a member? Log In
Hmm, there seems to have been an error sending your message. Please try again.
Thanks! Your message was sent.



