Your email has been sent.
69630 Chaponost 2,917 SF of Flex Space Available



Some information has been automatically translated.
Highlights
- Bâtiment récent
- Ossature métallique
- Dalle quartzée
Features
All Available Space(1)
Display Rental Rate as
- Space
- Size
- Term
-
Rental Rate
- Space Use
- Build-Out
- Available
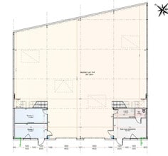
Cushman & Wakefield vous propose un local industriel neuf à la location de 271 m², situé dans la zone industrielle de Taffignon sur la commune de Chaponost. Ce bien rare sur le secteur comprend 58 m² de bureaux modernes et fonctionnels, ainsi que plusieurs places de parking. À quelques encablures de la route de Brignais, ce local bénéficie d'une excellente accessibilité. Le local industriel, construit avec des matériaux de qualité, offre des espaces de travail optimisés pour répondre aux besoins des entreprises modernes. Les bureaux, lumineux et bien aménagés, sont parfaits pour accueillir votre équipe dans un cadre confortable et professionnel. La zone industrielle de Taffignon est réputée pour son dynamisme et son environnement propice au développement des activités industrielles et commerciales. L'accessibilité est un atout majeur de ce bien. Situé à proximité immédiate des principaux axes routiers, notamment la route de Brignais, l'autoroute A450 et la rocade Est, ce local permet des déplacements faciles vers Lyon et les autres grandes villes de la région. De plus, la zone est bien desservie par les transports en commun, avec plusieurs lignes de bus à proximité, facilitant l'accès pour vos employés et visiteurs. Ce local industriel est une opportunité unique pour une entreprise souhaitant s'implanter dans une zone stratégique, offrant à la fois des espaces de production et des bureaux modernes et fonctionnels. Profitez de cette occasion rare pour développer votre activité dans un environnement propice à la croissance et à l'innovation. Ne manquez pas cette opportunité exceptionnelle de vous installer dans un local industriel de qualité à Chaponost. Contactez-nous dès aujourd'hui pour découvrir ce bien ! Bâtiment récent Contrôle d'accès Porte plain pied Portes sectionnelle Skydomes Dalle quartzée Ossature métallique Couverture bac acier Triphasée Aire de manoeuvre Parking VL Accueil Bureaux climatisés Eclairage LED Surface RDC : 240 m²
- Security Deposit: 3 months of rent
- Space is in Excellent Condition
- Central Air Conditioning
- Aire de manoeuvre
- Contrôle d'accès
- Includes 334 SF of dedicated office space
- 2 Drive Ins
- Secure Storage
- Bureaux climatisés
| Space | Size | Term | Rental Rate | Space Use | Build-Out | Available |
| Ground - 4 | 2,917 SF | 6-10 Years | $40.15 CAD/SF/YR HT-HC $3.35 CAD/SF/MO HT-HC $117,109 CAD/YR HT-HC $9,759 CAD/MO HT-HC | Flex | Full Build-Out | Now |
Ground - 4
| Size |
| 2,917 SF |
| Term |
| 6-10 Years |
|
Rental Rate
|
| $40.15 CAD/SF/YR HT-HC $3.35 CAD/SF/MO HT-HC $117,109 CAD/YR HT-HC $9,759 CAD/MO HT-HC |
| Space Use |
| Flex |
| Build-Out |
| Full Build-Out |
| Available |
| Now |
Ground - 4
| Size | 2,917 SF |
| Term | 6-10 Years |
|
Rental Rate
|
$40.15 CAD/SF/YR HT-HC |
| Space Use | Flex |
| Build-Out | Full Build-Out |
| Available | Now |
Cushman & Wakefield vous propose un local industriel neuf à la location de 271 m², situé dans la zone industrielle de Taffignon sur la commune de Chaponost. Ce bien rare sur le secteur comprend 58 m² de bureaux modernes et fonctionnels, ainsi que plusieurs places de parking. À quelques encablures de la route de Brignais, ce local bénéficie d'une excellente accessibilité. Le local industriel, construit avec des matériaux de qualité, offre des espaces de travail optimisés pour répondre aux besoins des entreprises modernes. Les bureaux, lumineux et bien aménagés, sont parfaits pour accueillir votre équipe dans un cadre confortable et professionnel. La zone industrielle de Taffignon est réputée pour son dynamisme et son environnement propice au développement des activités industrielles et commerciales. L'accessibilité est un atout majeur de ce bien. Situé à proximité immédiate des principaux axes routiers, notamment la route de Brignais, l'autoroute A450 et la rocade Est, ce local permet des déplacements faciles vers Lyon et les autres grandes villes de la région. De plus, la zone est bien desservie par les transports en commun, avec plusieurs lignes de bus à proximité, facilitant l'accès pour vos employés et visiteurs. Ce local industriel est une opportunité unique pour une entreprise souhaitant s'implanter dans une zone stratégique, offrant à la fois des espaces de production et des bureaux modernes et fonctionnels. Profitez de cette occasion rare pour développer votre activité dans un environnement propice à la croissance et à l'innovation. Ne manquez pas cette opportunité exceptionnelle de vous installer dans un local industriel de qualité à Chaponost. Contactez-nous dès aujourd'hui pour découvrir ce bien ! Bâtiment récent Contrôle d'accès Porte plain pied Portes sectionnelle Skydomes Dalle quartzée Ossature métallique Couverture bac acier Triphasée Aire de manoeuvre Parking VL Accueil Bureaux climatisés Eclairage LED Surface RDC : 240 m²
- Security Deposit: 3 months of rent
- Includes 334 SF of dedicated office space
- Space is in Excellent Condition
- 2 Drive Ins
- Central Air Conditioning
- Secure Storage
- Aire de manoeuvre
- Bureaux climatisés
- Contrôle d'accès
Property Overview
Cushman & Wakefield vous propose un local industriel neuf à la location de 271 m², situé dans la zone industrielle de Taffignon sur la commune de Chaponost. Ce bien rare sur le secteur comprend 58 m² de bureaux modernes et fonctionnels, ainsi que plusieurs places de parking. À quelques encablures de la route de Brignais, ce local bénéficie d'une excellente accessibilité. Le local industriel, construit avec des matériaux de qualité, offre des espaces de travail optimisés pour répondre aux besoins des entreprises modernes. Les bureaux, lumineux et bien aménagés, sont parfaits pour accueillir votre équipe dans un cadre confortable et professionnel. La zone industrielle de Taffignon est réputée pour son dynamisme et son environnement propice au développement des activités industrielles et commerciales. L'accessibilité est un atout majeur de ce bien. Situé à proximité immédiate des principaux axes routiers, notamment la route de Brignais, l'autoroute A450 et la rocade Est, ce local permet des déplacements faciles vers Lyon et les autres grandes villes de la région. De plus, la zone est bien desservie par les transports en commun, avec plusieurs lignes de bus à proximité, facilitant l'accès pour vos employés et visiteurs. Ce local industriel est une opportunité unique pour une entreprise souhaitant s'implanter dans une zone stratégique, offrant à la fois des espaces de production et des bureaux modernes et fonctionnels. Profitez de cette occasion rare pour développer votre activité dans un environnement propice à la croissance et à l'innovation. Ne manquez pas cette opportunité exceptionnelle de vous installer dans un local industriel de qualité à Chaponost. Contactez-nous dès aujourd'hui pour découvrir ce bien ! Bâtiment récent Contrôle d'accès Porte plain pied Portes sectionnelle Skydomes Dalle quartzée Ossature métallique Couverture bac acier Triphasée Aire de manoeuvre Parking VL Accueil Bureaux climatisés Eclairage LED Surface RDC : 240 m²
Property Facts
Presented by
"69630 Chaponost"
Hmm, there seems to have been an error sending your message. Please try again.
Thanks! Your message was sent.


