Your email has been sent.
Fitzroy House Crown St 3,186 SF of Office Space Available in Ipswich IP1 3LG



Highlights
- Entire third floor of prominent office building on edge of town centre.
- Onsite parking for 2 vehicles.
- Available on a new lease.
- 3,186 sq. ft. (296 sq. m.)
- Shared ground floor reception facilities available.
All Available Space(1)
Display Rental Rate as
- Space
- Size
- Term
- Rental Rate
- Space Use
- Build-Out
- Available
Location: Ipswich is the county town of Suffolk with a resident population of approximately 130,000. The A12 and A14 dual carriageways provide excellent road communications with the M25, London and the Midlands. Ipswich railway station provides a regular service to London (Liverpool Street) with a journey time of approximately 1 hour 10 minutes.Fitzroy House occupies a prominent position on the corner of Crown Street and High Street, the central retail and commercial districts being situated directly to the south. There are a number of public car parks within the immediate area and the town's northern bus station is just a short walk away.Description: Fitzroy House is a modern four storey office building, the ground to second floors being occupied by Scrutton Bland LLP.The third floor suite is accessed via stairs and an 8-person passenger lift from the ground floor reception. The suite provides predominantly open plan accommodation with high quality glazed partitioning creating four separate meeting rooms and private offices, kitchen and post room. The configuration of the partitioning can be adapted to meet the ingoing tenants requirements.The specification of the premises includes: Suspended ceilings with recessed lighting; Air conditioning; Raised floor with floor boxes; Double glazing and window blinds.Male and female WC facilities are situated adjacent to the entrance to the suite and two onsite parking spaces are available to the ingoing tenant.Accommodation: The premises provide a total net internal floor area of approximately 3,186 sq. ft. (296 sq. m.)Services:The premises are served by mains electricity, water and drainage.We have not tested any of the services and all interested parties should rely upon their own enquiries with the relevant utility companies in connection with the availability and capacity of all of those serving the property including IT and telecommunication links.Business Rates:The premises are currently assessed as follows:Rateable Value£44,750.00Rates Payable (2026/27)£19,332 p.a.All interested parties should make their own enquiries with the local rating authority in order to verify their rates liability. Local Authority:Ipswich Borough Council, Grafton House, 15-17 Russell Road, Ipswich, Suffolk, IP1 2DETelephone:[use Contact Agent Button]Terms:The premises are available upon a new full repairing and insuring business lease upon terms to be agreed and at an initial rent of £49,500 per annum exclusive. The rent will be subject to VAT at the standard rate.Energy Performance Certificate:EPC rating of 54(C) Legal Costs:Each party will be responsible for their own legal costs
- Use Class: E
- Mostly Open Floor Plan Layout
- Air conditioning
- Onsite parking for 2 vehicles
- Partially Built-Out as Standard Office
- Energy Performance Rating - C
- Suspended ceilings with recessed lighting
| Space | Size | Term | Rental Rate | Space Use | Build-Out | Available |
| 3rd Floor | 3,186 SF | Negotiable | $28.68 CAD/SF/YR $2.39 CAD/SF/MO $91,388 CAD/YR $7,616 CAD/MO | Office | Partial Build-Out | Now |
3rd Floor
| Size |
| 3,186 SF |
| Term |
| Negotiable |
| Rental Rate |
| $28.68 CAD/SF/YR $2.39 CAD/SF/MO $91,388 CAD/YR $7,616 CAD/MO |
| Space Use |
| Office |
| Build-Out |
| Partial Build-Out |
| Available |
| Now |
3rd Floor
| Size | 3,186 SF |
| Term | Negotiable |
| Rental Rate | $28.68 CAD/SF/YR |
| Space Use | Office |
| Build-Out | Partial Build-Out |
| Available | Now |
Location: Ipswich is the county town of Suffolk with a resident population of approximately 130,000. The A12 and A14 dual carriageways provide excellent road communications with the M25, London and the Midlands. Ipswich railway station provides a regular service to London (Liverpool Street) with a journey time of approximately 1 hour 10 minutes.Fitzroy House occupies a prominent position on the corner of Crown Street and High Street, the central retail and commercial districts being situated directly to the south. There are a number of public car parks within the immediate area and the town's northern bus station is just a short walk away.Description: Fitzroy House is a modern four storey office building, the ground to second floors being occupied by Scrutton Bland LLP.The third floor suite is accessed via stairs and an 8-person passenger lift from the ground floor reception. The suite provides predominantly open plan accommodation with high quality glazed partitioning creating four separate meeting rooms and private offices, kitchen and post room. The configuration of the partitioning can be adapted to meet the ingoing tenants requirements.The specification of the premises includes: Suspended ceilings with recessed lighting; Air conditioning; Raised floor with floor boxes; Double glazing and window blinds.Male and female WC facilities are situated adjacent to the entrance to the suite and two onsite parking spaces are available to the ingoing tenant.Accommodation: The premises provide a total net internal floor area of approximately 3,186 sq. ft. (296 sq. m.)Services:The premises are served by mains electricity, water and drainage.We have not tested any of the services and all interested parties should rely upon their own enquiries with the relevant utility companies in connection with the availability and capacity of all of those serving the property including IT and telecommunication links.Business Rates:The premises are currently assessed as follows:Rateable Value£44,750.00Rates Payable (2026/27)£19,332 p.a.All interested parties should make their own enquiries with the local rating authority in order to verify their rates liability. Local Authority:Ipswich Borough Council, Grafton House, 15-17 Russell Road, Ipswich, Suffolk, IP1 2DETelephone:[use Contact Agent Button]Terms:The premises are available upon a new full repairing and insuring business lease upon terms to be agreed and at an initial rent of £49,500 per annum exclusive. The rent will be subject to VAT at the standard rate.Energy Performance Certificate:EPC rating of 54(C) Legal Costs:Each party will be responsible for their own legal costs
- Use Class: E
- Partially Built-Out as Standard Office
- Mostly Open Floor Plan Layout
- Energy Performance Rating - C
- Air conditioning
- Suspended ceilings with recessed lighting
- Onsite parking for 2 vehicles
Property Overview
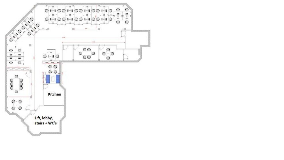
The third floor suite is accessed via stairs and an 8-person passenger lift from the ground floor reception. The suite provides predominantly open plan accommodation with high quality glazed partitioning creating four separate meeting rooms and private offices, kitchen and post room. The configuration of the partitioning can be adapted to meet the ingoing tenants requirements.
- 24 Hour Access
- Wheelchair Accessible
- Storage Space
- Smoke Detector
Property Facts
Presented by
Fitzroy House | Crown St
Hmm, there seems to have been an error sending your message. Please try again.
Thanks! Your message was sent.



