Log In/Sign Up
Your email has been sent.
DERBY OFFICE/WAREHOUSE + HOME 1 Industrial Properties Offered at $674,975 CAD in Derby, KS



Executive Summary
Tenant relocating.
Well-maintained office/warehouse building and home.
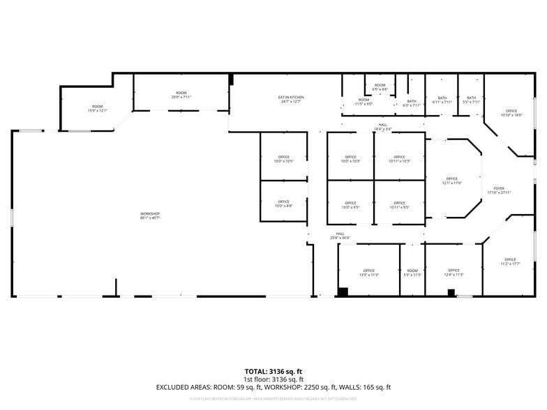
Office area is approximately 3,352 SF.
Five 10’ x 10’ drive-in overhead doors.
Quick access to Hwy. K-15.
Can be purchased separately or together, but home will not be sold separately prior to the commercial building.
Well-maintained office/warehouse building and home.
Office area is approximately 3,352 SF.
Five 10’ x 10’ drive-in overhead doors.
Quick access to Hwy. K-15.
Can be purchased separately or together, but home will not be sold separately prior to the commercial building.
Taxes & Operating Expenses (Actual - 2025) Click Here to Access |
Annual (CAD) |
|---|---|
| Taxes |
$99,999
|
| Operating Expenses |
-
|
| Total Expenses |
$99,999
|
Taxes & Operating Expenses (Actual - 2025) Click Here to Access
| Taxes (CAD) | |
|---|---|
| Annual | $99,999 |
| Operating Expenses (CAD) | |
|---|---|
| Annual | - |
| Total Expenses (CAD) | |
|---|---|
| Annual | $99,999 |
Property Facts
| Price | $674,975 CAD | Number of Properties | 2 |
| Price / SF | $124.83 CAD / SF | Individually For Sale | 0 |
| Sale Type | Investment | Total Building Size | 5,407 SF |
| Status | Active | Total Land Area | 0.32 AC |
| Price | $674,975 CAD |
| Price / SF | $124.83 CAD / SF |
| Sale Type | Investment |
| Status | Active |
| Number of Properties | 2 |
| Individually For Sale | 0 |
| Total Building Size | 5,407 SF |
| Total Land Area | 0.32 AC |
Properties
| Property Name / Address | Property Type | Size | Year Built | Individual Price |
|---|---|---|---|---|
| 219 S Water St, Derby, KS 67037 | Industrial | 5,407 SF | 1976 | - |
1 of 10
Videos
Matterport 3D Exterior
Matterport 3D Tour
Photos
Street View
Street
Map
Presented by
DERBY OFFICE/WAREHOUSE + HOME
Already a member? Log In
Hmm, there seems to have been an error sending your message. Please try again.
Thanks! Your message was sent.

