Your email has been sent.
Retail Premises at Redlands Dairy Walk 2,495 SF of Retail Space Available in Wanborough SN4 0AA



Highlights
- Could be occupied as a single entity for a convenience store
- Redlands forms part of the strategic New Eastern Villages area to the east of Swindon
- Capable of being used for other retail, administrative/leisure uses subject to planning
Space Availability (1)
Display Rental Rate as
- Space
- Size
- Term
- Rental Rate
- Type
| Space | Size | Term | Rental Rate | Rent Type | ||
| Ground | 2,495 SF | Negotiable | Upon Request Upon Request Upon Request Upon Request | TBD |
Ground
The property is offered for sale at a guide price of £400,000. Consideration will be given to leasing the completed building subject to agreeing satisfactory terms.
- Use Class: E
- Space is an outparcel at this property
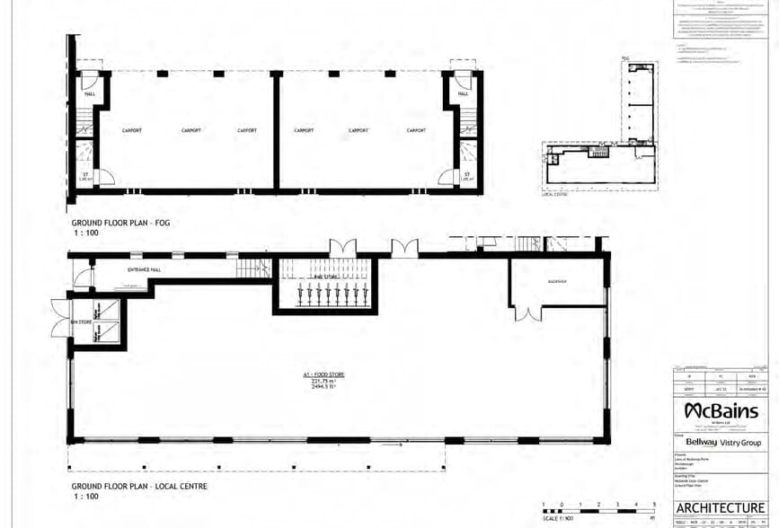
- Secure Storage
- Private Restrooms
- Yard
- Bin store
- Cycle parking
- Back of house area
Service Types
The rent amount and service type that the tenant (lessee) will be responsible to pay to the landlord (lessor) throughout the lease term is negotiated prior to both parties signing a lease agreement. The service type will vary depending upon the services provided. Contact the listing broker for a full understanding of any associated costs or additional expenses for each service type.
1. Fully Repairing & Insuring: All obligations for repairing and insuring the property (or their share of the property) both internally and externally.
2. Internal Repairing Only: The tenant is responsible for internal repairs only. The landlord is responsible for structural and external repairs.
3. Internal Repairing & Insuring: The tenant is responsible for internal repairs and insurance for internal parts of the property only. The landlord is responsible for structural and external repairs.
4. Negotiable or TBD: This is used when the leasing contact does not provide the service type.
Site Plan
Property Facts
| Total Space Available | 2,495 SF | Gross Leasable Area | 2,495 SF |
| Property Type | Retail | Year Built | 2027 |
| Property Subtype | Storefront Retail/Residential | Construction Status | Proposed |
| Total Space Available | 2,495 SF |
| Property Type | Retail |
| Property Subtype | Storefront Retail/Residential |
| Gross Leasable Area | 2,495 SF |
| Year Built | 2027 |
| Construction Status | Proposed |
About the Property
The site totalling 0.4 acres has been designed to offer a retail unit including a back of house area, bin store and cycle parking in addition to car parking to the front and residential units above. It is envisaged that the unit would be occupied as a single entity for a convenience store but it is capable of being used for other retail, administrative or leisure uses subject to planning. It could also be split to provide two separate units if desired.
Presented by
Retail Premises at Redlands | Dairy Walk
Hmm, there seems to have been an error sending your message. Please try again.
Thanks! Your message was sent.
