Log In/Sign Up
Your email has been sent.
Investment Highlights
- Highly visible location at Daniels Parkway and I-75 with superior regional access.
- Positioned in a fast-growing corridor with strong residential and commercial development trends.
- Surrounded by major demand drivers, including healthcare, retail destinations, and Florida Gulf Coast University.
- Significant infrastructure improvements underway, including interchange upgrades and road widening.
- Convenient access to Southwest Florida International Airport for seamless regional connectivity.
- Enhanced accessibility with the new Three Oaks Parkway extension connecting directly to Daniels Parkway.
Executive Summary
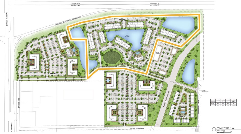
Positioned at the highly trafficked interchange of Daniels Parkway and I-75, this ±22-acre multifamily development site presents a rare opportunity within one of Southwest Florida’s most dynamic growth corridors. Fully approved and entitled for 400 units, the property offers a streamlined path to development in a market experiencing sustained population growth and strong housing demand.
The site benefits from exceptional regional connectivity, with direct access to I-75 and proximity to Southwest Florida International Airport, major healthcare systems, Florida Gulf Coast University, and prominent retail and entertainment destinations. Ongoing infrastructure improvements, including the complete redesign of the I-75 interchange into a diverging diamond and the widening of Daniels Parkway, are set to further enhance accessibility, traffic flow, and long-term value.
Surrounded by expanding residential communities, employment centers, and lifestyle amenities, this location is ideally suited to support continued multifamily absorption. With strong demographics, high household incomes, and consistent growth projections, the property is strategically positioned to capitalize on the region’s upward trajectory.
The site benefits from exceptional regional connectivity, with direct access to I-75 and proximity to Southwest Florida International Airport, major healthcare systems, Florida Gulf Coast University, and prominent retail and entertainment destinations. Ongoing infrastructure improvements, including the complete redesign of the I-75 interchange into a diverging diamond and the widening of Daniels Parkway, are set to further enhance accessibility, traffic flow, and long-term value.
Surrounded by expanding residential communities, employment centers, and lifestyle amenities, this location is ideally suited to support continued multifamily absorption. With strong demographics, high household incomes, and consistent growth projections, the property is strategically positioned to capitalize on the region’s upward trajectory.
Property Facts
| Sale Type | Investment | Property Subtype | Commercial |
| No. Lots | 1 | Total Lot Size | 22.00 AC |
| Property Type | Land | ||
| Zoning | CPD - Commercial Planned Development | ||
| Sale Type | Investment |
| No. Lots | 1 |
| Property Type | Land |
| Property Subtype | Commercial |
| Total Lot Size | 22.00 AC |
| Zoning | CPD - Commercial Planned Development |
1 Lot Available
Lot
| Lot Size | 22.00 AC |
| Lot Size | 22.00 AC |
1 1
Somewhat walkable
20/100
Exceptionally drivable
100/100
Minimal public transit
10/100
Fairly bikeable
40/100
1 of 7
Videos
Matterport 3D Exterior
Matterport 3D Tour
Photos
Street View
Street
Map
1 of 1
Presented by
Daniels & I-75 Interchange - Multifamily Parcel
Already a member? Log In
Hmm, there seems to have been an error sending your message. Please try again.
Thanks! Your message was sent.



