Log In/Sign Up
Your email has been sent.
Executive Summary
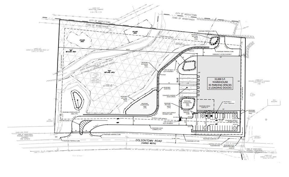
Fully approved site plans for construction of a 32,000 SF Industrial Building.
Property Facts
| Sale Type | Investment | Property Subtype | Industrial |
| No. Lots | 1 | Proposed Use | Industrial |
| Property Type | Land | Total Lot Size | 6.26 AC |
| Zoning | MC1 - Commercial | ||
| Sale Type | Investment |
| No. Lots | 1 |
| Property Type | Land |
| Property Subtype | Industrial |
| Proposed Use | Industrial |
| Total Lot Size | 6.26 AC |
| Zoning | MC1 - Commercial |
1 Lot Available
Lot
| Lot Size | 6.26 AC |
| Lot Size | 6.26 AC |
6.26 AC of land available for sale.
1 1
Fairly walkable
40/100
Exceptionally drivable
100/100
Not bikeable
10/100
Property Taxes
| Parcel Number | 335600-004-000-0001-050.200-0000 | Improvements Assessment | $0 CAD |
| Land Assessment | $207,729 CAD | Total Assessment | $207,729 CAD |
Property Taxes
Parcel Number
335600-004-000-0001-050.200-0000
Land Assessment
$207,729 CAD
Improvements Assessment
$0 CAD
Total Assessment
$207,729 CAD
1 of 4
Videos
Matterport 3D Exterior
Matterport 3D Tour
Photos
Street View
Street
Map
1 of 1
Presented by
Dolsontown Rd
Already a member? Log In
Hmm, there seems to have been an error sending your message. Please try again.
Thanks! Your message was sent.



