Log In/Sign Up
Your email has been sent.
E Fountain blvd - Cheyenne View 17.69 Acres of Residential Land Offered at $12,861,169 CAD in Colorado Springs, CO 80910



INVESTMENT HIGHLIGHTS
- Fully entitled for a 322-unit multifamily development
- Pristine location offering proximity to downtown, restaurants, parks, and more
- Highly sought-after land in Colorado Springs
EXECUTIVE SUMMARY
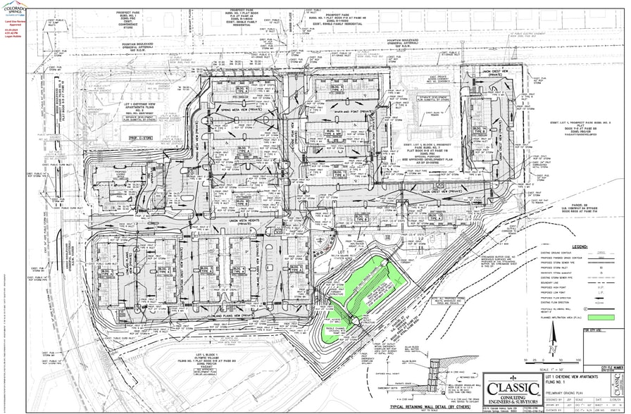
Cheyenne View is a beautiful property located in Colorado Springs, Colorado. With full entitlements secured for a garden-style multifamily development, the property will feature 322 units, including 182 one-bedroom, 122 two-bedroom, and 18 three-bedroom units, complemented by 401 parking spaces (221 garages and 180 surface stalls). Proposed amenities include a pool, basketball court, pickleball court, dog park, and tot lot.
Colorado Springs, home to over 488,000 residents, offers proximity to the Cheyenne Mountains, multiple state parks, Fort Carson, and the Colorado Springs Airport. The city offers rodeos, train rides through the mountains, and access to white water rafting. Colorado Springs' robust economy and infrastructure provide residents easy access to everything Colorado has to offer.
Cheyenne View is strategically located just off Highway 24, 5 minutes from downtown, and 6 minutes from Walmart. The property is also within minutes of local schools, Colorado College, Garden of the Gods, Memorial Park, golf courses, beautiful overlooks, and scenic hiking trails on Cheyenne Mountain. The property also boasts convenient public transportation access, providing residents with car-free mobility throughout the city.
Colorado Springs, home to over 488,000 residents, offers proximity to the Cheyenne Mountains, multiple state parks, Fort Carson, and the Colorado Springs Airport. The city offers rodeos, train rides through the mountains, and access to white water rafting. Colorado Springs' robust economy and infrastructure provide residents easy access to everything Colorado has to offer.
Cheyenne View is strategically located just off Highway 24, 5 minutes from downtown, and 6 minutes from Walmart. The property is also within minutes of local schools, Colorado College, Garden of the Gods, Memorial Park, golf courses, beautiful overlooks, and scenic hiking trails on Cheyenne Mountain. The property also boasts convenient public transportation access, providing residents with car-free mobility throughout the city.
PROPERTY FACTS
1 LOT AVAILABLE
Lot
| Price | $12,861,169 CAD | Lot Size | 17.69 AC |
| Price Per AC | $727,030.48 CAD |
| Price | $12,861,169 CAD |
| Price Per AC | $727,030.48 CAD |
| Lot Size | 17.69 AC |
Cheyenne View is a 17.69-acre development site in Colorado Springs, CO, fully entitled for a 322-unit multifamily project, offering an exceptional opportunity in a highly desirable and strategic location.
DESCRIPTION
Cheyenne View is a 17.69-acre property in Colorado Springs, with full entitlements for a 322-unit multifamily development. The property is located on E Fountain Blvd and S Union Blvd, just off Highway 24.
PROPERTY TAXES
| Parcel Numbers | Improvements Assessment | $0 CAD | |
| Land Assessment | $0 CAD | Total Assessment | $1,139,792 CAD |
PROPERTY TAXES
Parcel Numbers
Land Assessment
$0 CAD
Improvements Assessment
$0 CAD
Total Assessment
$1,139,792 CAD
1 of 15
VIDEOS
MATTERPORT 3D EXTERIOR
MATTERPORT 3D TOUR
PHOTOS
STREET VIEW
STREET
MAP
Presented by
E Fountain blvd - Cheyenne View
Already a member? Log In
Hmm, there seems to have been an error sending your message. Please try again.
Thanks! Your message was sent.

