Your email has been sent.
East Jewett Avenue 25.36 Acres of Residential Land in Bunn, NC 27508

Investment Highlights
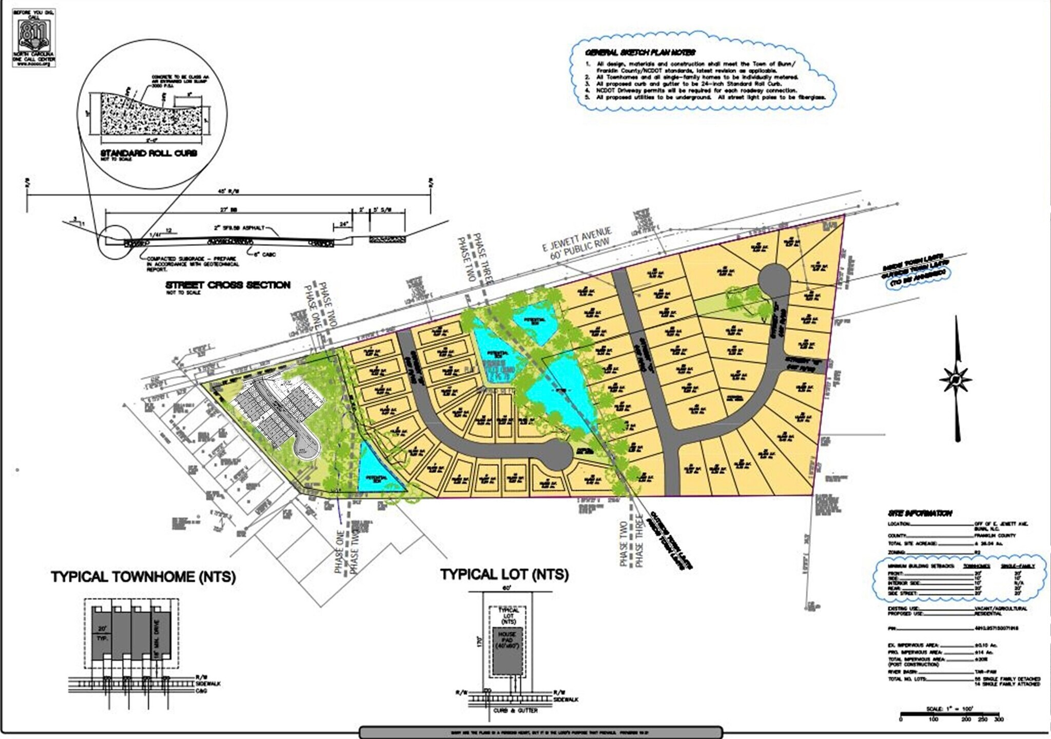
- 70 Total Lots - 15 Townhome Lots and 55 Single-Family Lots
- Flexible Build Options - Option to redesign townhomes into 7 single-family lots.
- No Sewer & Water Allotment Restriction - All water and Sewer permits will be issued for all lots. No limit on allocations.
Executive Summary
Property Facts
1 Lot Available
Lot
| Lot Size | 25.36 AC |
| Lot Size | 25.36 AC |
Presenting a prime mixed-use development opportunity featuring 15 townhome lots and 55 single-family lots located on Jewett Street, Bunn, NC.
Description
Mixed Cluster Development - Presenting a prime mixed-use development opportunity featuring 15 townhome lots and 55 single-family lotslocated on Jewett Street, Bunn, NC. This subdivision has been approved by the City of Bunn withannexation and zoning complete. Final entitlements will be completed within 60 days, making this a ready-to-build project with strong potential for immediate development and profitability. Project Highlights: ? 70 Total Lots – 15 townhomes + 55 single-family lots ? No Sewer & Water Allotment Restriction – All water and sewer permits will be issued for all lots. No limiton allocations. ? Flexible Build Options – Option to redesign townhomes into 7 single-family lots. ? Scalable Development – Project designed to allow development in 1 - 3 phases. Lot Specifications: Lot Dimensions: Minimum 60 ft. width x 170 ft. depth Impervious Surface Allowance: 3,500 sq. ft. per lot Townhome Width: 20 ft. Single Family Width: 60 ft. MinimumSingle-Family Lot Sizes: 10,000 to 27,000 sq. ft.This project offers a streamlined path to construction with city utilities secured and no delays for water orsewer allotments. The flexibility in design and lot configuration makes it an attractive opportunity forbuilders looking for a profitable and turnkey development.LakefarmsE. Jewett Ave. & Baptist Church Rd., Bunn, NC Parcel Details: Total Acreage: 25.36 acres
Presented by
Robertson & Eddins Realty
East Jewett Avenue
Hmm, there seems to have been an error sending your message. Please try again.
Thanks! Your message was sent.
