Your email has been sent.
Avenida Bulevar de el Ejido 2,088 SF Retail Condo Unit Offered at $250,095 CAD in El Ejido, Almería 04700
Some information has been automatically translated.
Investment Highlights
- Edificio residencial con locales comerciales en planta baja y excelente visibilidad en El Ejido.
- Construido en 1999, cuenta con seis plantas sobre rasante y se encuentra rodeado de todo tipo de servicios.
Executive Summary
Residential building with commercial spaces on the ground floor, located at Boulevard Street of El Ejido 160, El Ejido, Almería. Built in 1999, it has six above-ground floors and is situated in an area with all kinds of services nearby, also offering excellent commercial visibility.
1 Unit Available
Unit -
| Unit Size | 2,088 SF | Condo Use | Retail |
| Price | $250,095 CAD | Sale Type | Investment or Owner User |
| Price Per SF | $119.78 CAD |
| Unit Size | 2,088 SF |
| Price | $250,095 CAD |
| Price Per SF | $119.78 CAD |
| Condo Use | Retail |
| Sale Type | Investment or Owner User |
Description
Local comercial de 194 m2 en El Ejido, Almería, actualmente alquilado y no visitable, ideal para inversión en zona estratégica.
Sale Notes
Ref: 0034726459
Local comercial de 194 m2 ubicado en la Calle Boulevard de El Ejido, Almería. El inmueble actualmente se encuentra alquilado con indecencias, por lo que no es visitable en este momento. Este local representa una oportunidad interesante para inversores o empresas que busquen una ubicación estratégica en una zona de tránsito destacado dentro de El Ejido, con un espacio amplio y versátil que permite múltiples usos comerciales.
Foto fachada
Foto interior
Foto interior
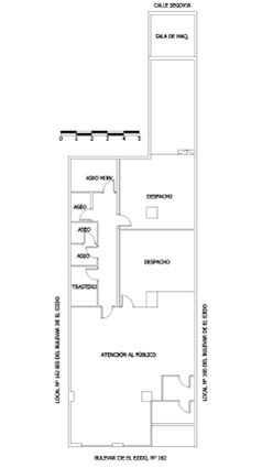
Plano Alquilujo Internacional
Property Facts
| Total Building Size | 10,000 - 60,000 SF | Building Class | C |
| Property Type | Multifamily (Condo) | Floors | 6 |
| Property Subtype | Year Built/Renovated | 1990 - 1999/2000 - 2009 |
| Total Building Size | 10,000 - 60,000 SF |
| Property Type | Multifamily (Condo) |
| Property Subtype | |
| Building Class | C |
| Floors | 6 |
| Year Built/Renovated | 1990 - 1999/2000 - 2009 |
Amenities
Site Amenities
- Public Transportation
Unit Mix Information
| Description | No. Units | Avg. Rent/Mo | SF |
|---|---|---|---|
| Studios | 30 | - | 1,087 |
Presented by
Avenida Bulevar de el Ejido
Hmm, there seems to have been an error sending your message. Please try again.
Thanks! Your message was sent.
