Log In/Sign Up
Your email has been sent.
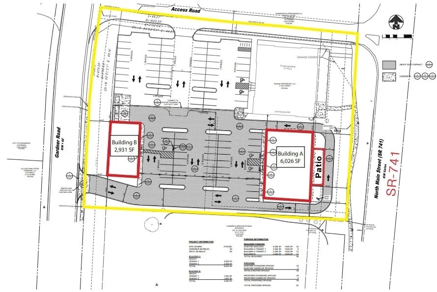
Gardner Rd
Springboro, OH 45066
Building B · Retail Property For Lease
·
2,930 SF


Property Facts
| Total Space Available | 2,930 SF | Gross Leasable Area | 2,930 SF |
| Property Type | Retail | Year Built | 2025 |
| Property Subtype | Storefront |
| Total Space Available | 2,930 SF |
| Property Type | Retail |
| Property Subtype | Storefront |
| Gross Leasable Area | 2,930 SF |
| Year Built | 2025 |
1 of 5
Videos
Matterport 3D Exterior
Matterport 3D Tour
Photos
Street View
Street
Map
