Your email has been sent.
Grange Way 3,875 SF of Industrial Space Available in Colchester CO2 8HF

Highlights
- Well Presented Throughout
- High Quality Offices On Ground & First Floors
- Established Business Location
- Warehouse Area With Large Loading Door
- Ample On Site Car Parking & Yard Area
Features
All Available Space(1)
Display Rental Rate as
- Space
- Size
- Term
- Rental Rate
- Space Use
- Condition
- Available
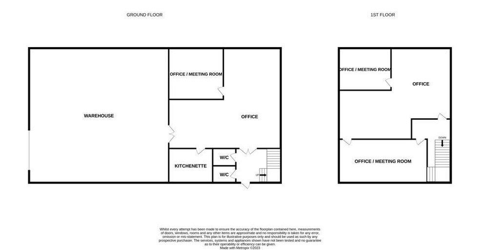
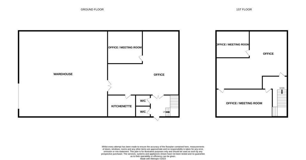
This detached unit is of steel portal frame construction with brick/block and part steel profile clad elevations under a pitched and insulated roof incorporating translucent roof lights.A full height up and over door (approx. 3.4m wide x 4m high), and personnel door, on the side elevation provide access to the main industrial area, which has an eaves height of approx. 4.8m, a central apex height of approx. 6.2m, fluorescent lighting, three phase power and a gas warm air heater (not tested).A personnel door on the front elevation leads to an entrance lobby with two W/C's, with a second personnel door leading to an open plan office area with additional storage / meeting room, and a tea point. On the first floor there is a large open plan office area, with two additional offices / meeting rooms, with LED lighting. Gas radiators provide heating with wall mounted Heating/Cooing units also present in part of the offices.Externally there is a self-contained, fenced and gated, concreted yard area to the side / front and a forecourt providing ample loading / unloading facilities and on-site car parking.LOCATIONThe unit is situated on the popular Whitehall Industrial Estate which is located approximately two miles to the South of Colchester City Centre. Easy access is available to the inner ring road system which leads directly to the A12/A120 providing fast links to the national motorway network.ACCOMMODATION [Approximate Net Internal Floor Areas] Warehouse: 1,495 sq ft [138.9 sq m] approx. GF Office/Facilities: 1,196 sq ft [111.1 sq m] approx. FF Offices: 1,184 sq ft [110.0 sq m] approx. Total: 3,875 sq ft [360.0 sq m] approx.TERMS The premises are available to let on a new full repairing and insuring lease, with lease length and terms to be agreed, at a rent of £48,500 per annum plus VAT.SERVICE CHARGEThere is a service charge to cover the costs of repairs and maintenance to the shared access roadway.. Approx. cost for the current year £1,857 plus VAT.BUILDINGS INSURANCEThe landlord is to arrange the buildings insurance with the cost to be recovered from the tenant. Approx. cost for the current year £737 plus VAT.BUSINESS RATES We are advised that the premises have a rateable value, with effect from the 1st April 2023, of £33,750.We therefore estimate rates payable are likely to be in the region of £16,850 for the current year. Interested parties are advised to make their own enquiries direct with the local rating authority.ENERGY PERFORMANCE CERTIFICATE [EPC] We have been advised that the premises falls within class C (69) of the energy performance assessment scale. VATAll rents and prices are exclusive of VAT under the Finance Act 1989. We are advised that VAT is applicable on the rent. Interested parties are advised to consult their professional advisors as to their liabilities, if any, in this direction.LEGAL COSTSPrior to the instruction of solicitors, the tenant will be required to pay a non-refundable administration fee of £750.00 plus VAT. Each party will otherwise bear their own legal costs. ANTI-MONEY LAUNDERING REGULATIONSAnti-Money Laundering Regulations require Fenn Wright to formally verify a prospective tenants identity prior to the instruction of solicitors.VIEWINGS STRICTLY BY APPOINTMENT VIA SOLE LETTING AGENTS:Fenn WrightT:[use Contact Agent Button]E: [use Contact Agent Button]
| Space | Size | Term | Rental Rate | Space Use | Condition | Available |
| - | 3,875 SF | Negotiable | Upon Request Upon Request Upon Request Upon Request | Industrial | - | 30 Days |
-
| Size |
| 3,875 SF |
| Term |
| Negotiable |
| Rental Rate |
| Upon Request Upon Request Upon Request Upon Request |
| Space Use |
| Industrial |
| Condition |
| - |
| Available |
| 30 Days |
-
| Size | 3,875 SF |
| Term | Negotiable |
| Rental Rate | Upon Request |
| Space Use | Industrial |
| Condition | - |
| Available | 30 Days |
This detached unit is of steel portal frame construction with brick/block and part steel profile clad elevations under a pitched and insulated roof incorporating translucent roof lights.A full height up and over door (approx. 3.4m wide x 4m high), and personnel door, on the side elevation provide access to the main industrial area, which has an eaves height of approx. 4.8m, a central apex height of approx. 6.2m, fluorescent lighting, three phase power and a gas warm air heater (not tested).A personnel door on the front elevation leads to an entrance lobby with two W/C's, with a second personnel door leading to an open plan office area with additional storage / meeting room, and a tea point. On the first floor there is a large open plan office area, with two additional offices / meeting rooms, with LED lighting. Gas radiators provide heating with wall mounted Heating/Cooing units also present in part of the offices.Externally there is a self-contained, fenced and gated, concreted yard area to the side / front and a forecourt providing ample loading / unloading facilities and on-site car parking.LOCATIONThe unit is situated on the popular Whitehall Industrial Estate which is located approximately two miles to the South of Colchester City Centre. Easy access is available to the inner ring road system which leads directly to the A12/A120 providing fast links to the national motorway network.ACCOMMODATION [Approximate Net Internal Floor Areas] Warehouse: 1,495 sq ft [138.9 sq m] approx. GF Office/Facilities: 1,196 sq ft [111.1 sq m] approx. FF Offices: 1,184 sq ft [110.0 sq m] approx. Total: 3,875 sq ft [360.0 sq m] approx.TERMS The premises are available to let on a new full repairing and insuring lease, with lease length and terms to be agreed, at a rent of £48,500 per annum plus VAT.SERVICE CHARGEThere is a service charge to cover the costs of repairs and maintenance to the shared access roadway.. Approx. cost for the current year £1,857 plus VAT.BUILDINGS INSURANCEThe landlord is to arrange the buildings insurance with the cost to be recovered from the tenant. Approx. cost for the current year £737 plus VAT.BUSINESS RATES We are advised that the premises have a rateable value, with effect from the 1st April 2023, of £33,750.We therefore estimate rates payable are likely to be in the region of £16,850 for the current year. Interested parties are advised to make their own enquiries direct with the local rating authority.ENERGY PERFORMANCE CERTIFICATE [EPC] We have been advised that the premises falls within class C (69) of the energy performance assessment scale. VATAll rents and prices are exclusive of VAT under the Finance Act 1989. We are advised that VAT is applicable on the rent. Interested parties are advised to consult their professional advisors as to their liabilities, if any, in this direction.LEGAL COSTSPrior to the instruction of solicitors, the tenant will be required to pay a non-refundable administration fee of £750.00 plus VAT. Each party will otherwise bear their own legal costs. ANTI-MONEY LAUNDERING REGULATIONSAnti-Money Laundering Regulations require Fenn Wright to formally verify a prospective tenants identity prior to the instruction of solicitors.VIEWINGS STRICTLY BY APPOINTMENT VIA SOLE LETTING AGENTS:Fenn WrightT:[use Contact Agent Button]E: [use Contact Agent Button]
Service Facility Facts
Select Tenants
- Floor
- Tenant Name
- GRND
- Imofa UK
Presented by
Grange Way
Hmm, there seems to have been an error sending your message. Please try again.
Thanks! Your message was sent.
