Your email has been sent.
Investment Highlights
- Ideally situated at between Exits 69 and 71 on the Long Island Expressway (LIE)
Executive Summary
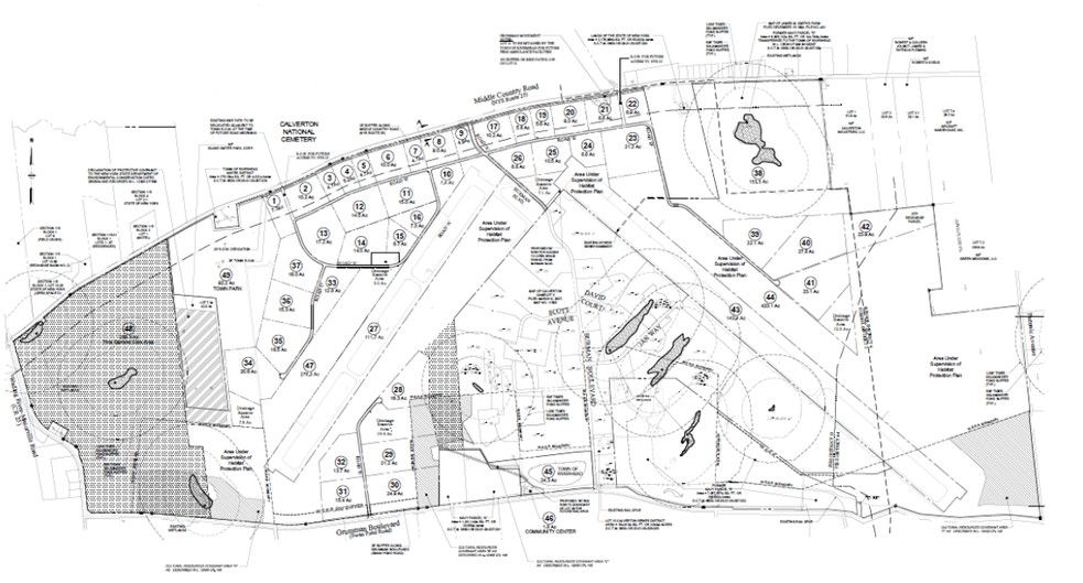
The Enterprise Park at Calverton is part of a planned redevelopment of a 2,900 acre property. The property is owned by the Town of Riverhead Community Development Agency and, as a result of the Comprehensive Reuse Development Plan, is now slated for economic development.
Today, the Town has streamlined the acquisition and development process to 90 days, eager to attract new and existing businesses to the area. In addition, EPCAL offers the unique ability to utilize rail access through the existing and currently active New York & Atlantic Rail Terminal and offers the EPCAL occupants use of the 10,000 foot runway.
Property Facts Under Contract
| Sale Type | Investment | Property Subtype | Industrial |
| Sale Condition | Redevelopment Project | Proposed Use | Industrial |
| No. Lots | 1 | Total Lot Size | 1,643.00 AC |
| Property Type | Land | Opportunity Zone |
Yes
|
| Zoning | PD - Planned Development | ||
| Sale Type | Investment |
| Sale Condition | Redevelopment Project |
| No. Lots | 1 |
| Property Type | Land |
| Property Subtype | Industrial |
| Proposed Use | Industrial |
| Total Lot Size | 1,643.00 AC |
| Opportunity Zone |
Yes |
| Zoning | PD - Planned Development |
1 Lot Available
Lot EPCAL
| Lot Size | 1,643.00 AC |
| Lot Size | 1,643.00 AC |
This 680+ acre parcel is ideally situated at between Exits 69 and 71 on the Long Island Expressway (LIE) and offers a streamlined 90-day approval process.
Description
This 680+ acre parcel is ideally situated at between Exits 69 and 71 on the Long Island Expressway (LIE) and offers a streamlined 90-day approval process, an environmental impact study and parcels of land subdivided and varying in size from 5 acres and larger. The Enterprise Park at Calverton is part of a planned redevelopment of a 2,900 acre property. The property is owned by the Town of Riverhead Community Development Agency and, as a result of the Comprehensive Reuse Development Plan, is now slated for economic development. Today, the Town has streamlined the acquisition and development process to 90 days, eager to attract new and existing businesses to the area. In addition, EPCAL offers the unique ability to utilize rail access through the existing and currently active New York & Atlantic Rail Terminal and offers the EPCAL occupants use of the 10,000 foot runway.
Property Taxes
| Parcel Numbers | Improvements Assessment | $7,105,686 CAD | |
| Land Assessment | $16,369,197 CAD | Total Assessment | $23,474,883 CAD |
Property Taxes
Presented by
Grumman Blvd - EPCAL
Hmm, there seems to have been an error sending your message. Please try again.
Thanks! Your message was sent.




