Log In/Sign Up
Your email has been sent.
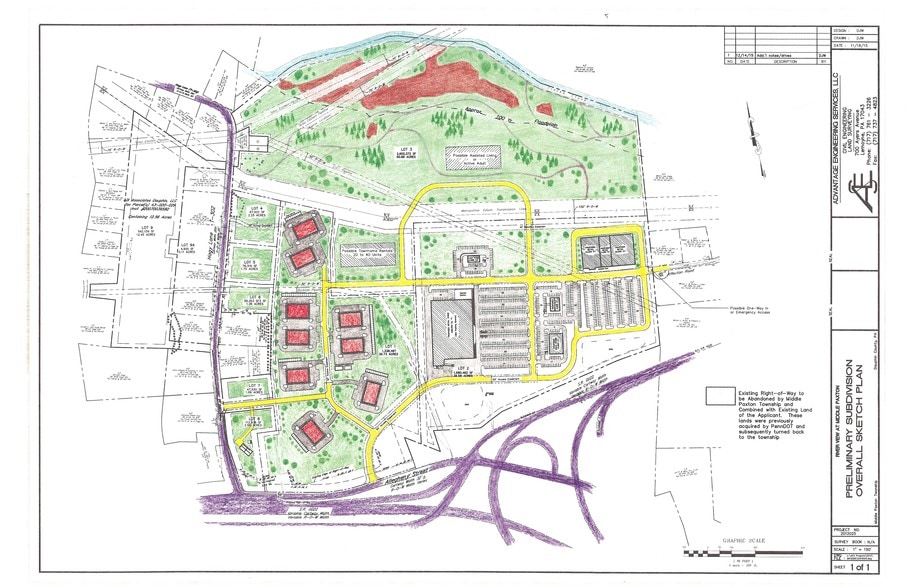
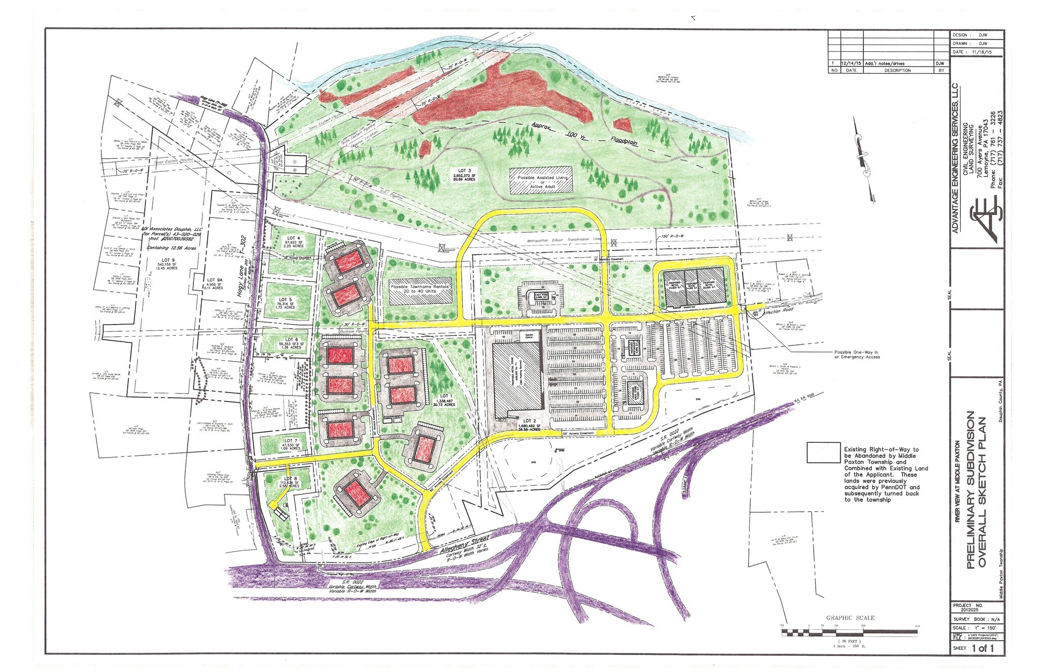
Hagy Ln - River View at Middle Paxton 60.31 Acres of Residential Land Offered at $4,285,606 CAD in Middle Paxton, PA 17018



Investment Highlights
- This property is located near a major commuter route in the Harrisburg Metro market.
Executive Summary
For Sale: 60.31 acres, R-3 zoned $3,150,000
· Site is located at an existing interchange from PA Route 322 (a major commuter route in and out of the Harrisburg Metro market, north and west)
· Annual Average Daily Traffic (AADT) is 56,000 on Route 322 and 9,700 on Route 225
· Site is 9.4 miles from the Pennsylvania Capitol dome in Harrisburg’s central business district
· Close proximity to Dauphin- Route 22/322 Park & Ride. CAT and Carpool Parking
· Site is located at an existing interchange from PA Route 322 (a major commuter route in and out of the Harrisburg Metro market, north and west)
· Annual Average Daily Traffic (AADT) is 56,000 on Route 322 and 9,700 on Route 225
· Site is 9.4 miles from the Pennsylvania Capitol dome in Harrisburg’s central business district
· Close proximity to Dauphin- Route 22/322 Park & Ride. CAT and Carpool Parking
Property Facts
| Price | $4,285,606 CAD | Property Subtype | Residential |
| Sale Type | Investment | Proposed Use | |
| No. Lots | 1 | Total Lot Size | 60.31 AC |
| Property Type | Land | ||
| Zoning | R3- High Density - Residential - R3 | ||
| Price | $4,285,606 CAD |
| Sale Type | Investment |
| No. Lots | 1 |
| Property Type | Land |
| Property Subtype | Residential |
| Proposed Use | |
| Total Lot Size | 60.31 AC |
| Zoning | R3- High Density - Residential - R3 |
1 Lot Available
Lot
| Price | $4,285,606 CAD | Lot Size | 60.31 AC |
| Price Per AC | $71,059.63 CAD |
| Price | $4,285,606 CAD |
| Price Per AC | $71,059.63 CAD |
| Lot Size | 60.31 AC |
High traffic corridor on North approach to Greater Harrisburg Metro. Water and sewer service are being extended to the site.
1 1
Somewhat walkable
20/100
Exceptionally drivable
100/100
Somewhat bikeable
30/100
Property Taxes
| Parcel Numbers | Improvements Assessment | $0 CAD | |
| Land Assessment | $208,566 CAD | Total Assessment | $208,566 CAD |
Property Taxes
Parcel Numbers
Land Assessment
$208,566 CAD
Improvements Assessment
$0 CAD
Total Assessment
$208,566 CAD
1 of 7
Videos
Matterport 3D Exterior
Matterport 3D Tour
Photos
Street View
Street
Map
1 of 1
Presented by
Hagy Ln - River View at Middle Paxton
Already a member? Log In
Hmm, there seems to have been an error sending your message. Please try again.
Thanks! Your message was sent.
