Your email has been sent.
Heath Rd - The Courtyard 819 - 931 SF Retail Condo Units Offered at $465,749 CAD Per Unit in Petersfield GU31 4DX



Investment Highlights
- Attractive market town
- Situated in a busy area near public transport and carpark
- Strategically located on the A3
Executive Summary
This schemes comprises 4 townhouses, 4 apartments and 2 commercial/retail units. Petersfield is an attractive market town strategically located on the A3 London to Portsmouth trunk road approximately 18 miles to the north of Portsmouth and 25 miles to the south of Guildford. Road communications are excellent and in addition Petersfield benefits from a fast frequent train service to London Waterloo and to Portsmouth and the South Coast. The property is situated on The Courtyard, opposite the open air swimming pool and Petersfield festival theatre, a short walk into the town centre. The town offers a wide range of retail and food & beverage including Waitrose, Gails Bakery, Mint Velvet, Crew Clothing, Cafe Nero and Annie Jones.
2 Units Available
Unit Left
| Unit Size | 931 SF | Condo Use | Retail |
| Price | $465,749 CAD | Sale Type | Owner User |
| Price Per SF | $500.27 CAD | Tenure | Freehold |
| Unit Size | 931 SF |
| Price | $465,749 CAD |
| Price Per SF | $500.27 CAD |
| Condo Use | Retail |
| Sale Type | Owner User |
| Tenure | Freehold |
Description
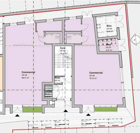
Upon completion, the development will comprise two newly constructed ground floor commercial retail units finished to a shell condition with services capped. Practical completion is anticipated in Spring 2027.
Sale Notes
There is the option to purchase with vacant possession and quote a price of £250,000, per unit, subject to contract.
Floor Plan
Unit Right
| Unit Size | 819 SF | Condo Use | Retail |
| Price | $465,749 CAD | Sale Type | Owner User |
| Price Per SF | $568.68 CAD | Tenure | Freehold |
| Unit Size | 819 SF |
| Price | $465,749 CAD |
| Price Per SF | $568.68 CAD |
| Condo Use | Retail |
| Sale Type | Owner User |
| Tenure | Freehold |
Description
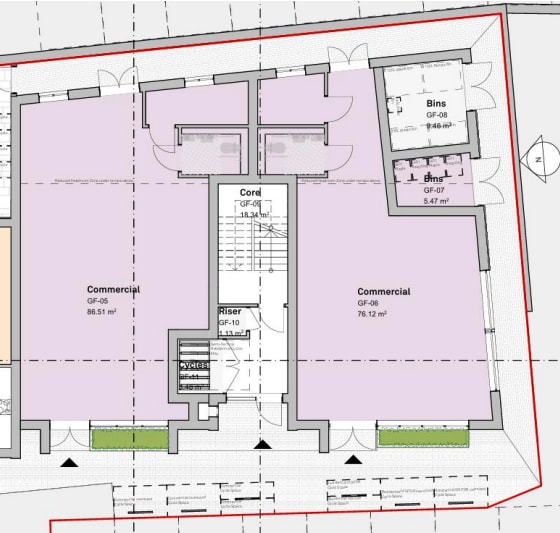
Upon completion, the development will comprise two newly constructed ground floor commercial retail units finished to a shell condition with services capped. Practical completion is anticipated in Spring 2027.
Sale Notes
There is the option to purchase with vacant possession and quote a price of £250,000, per unit, subject to contract.
Floor Plan
Property Facts
| Total Building Size | 1,750 SF | Floors | 3 |
| Property Type | Retail | Typical Floor Size | 1,750 SF |
| Property Subtype | Storefront Retail/Residential | Year Built | 2027 |
| Building Class | B | Lot Size | 0.16 AC |
| Total Building Size | 1,750 SF |
| Property Type | Retail |
| Property Subtype | Storefront Retail/Residential |
| Building Class | B |
| Floors | 3 |
| Typical Floor Size | 1,750 SF |
| Year Built | 2027 |
| Lot Size | 0.16 AC |
Amenities
- Bus Line
- Security System
Nearby Major Retailers
Presented by
Heath Rd - The Courtyard
Hmm, there seems to have been an error sending your message. Please try again.
Thanks! Your message was sent.

