Log In/Sign Up
Your email has been sent.
Highlights
- Approx. 1 mile to Junction 4 M61
- Accessed via Manchester Road West (A6
- Suitable for a variety of uses
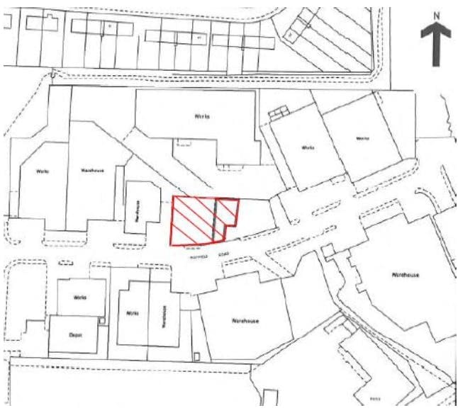
- Situated on Highfield Road Industrial Estate
- Secure plot
LOT Available
Display Rental Rate as
| Rental Rate |
|
Lot Size | 0.18 AC |
| Lease Term | Negotiable |
| Rental Rate | |
| Lease Term | Negotiable |
| Lot Size | 0.18 AC |
The property comprises a secure open storage / yard plot which is fully fenced and gated. The plot is ideal for: Open storage, Trailer parking, Vehicle parking, Container storage, Caravan storage and a Yard area
Property Overview
The property comprises a secure open storage / yard plot which is fully fenced and gated. The plot is ideal for: • Open storage • Trailer parking • Vehicle parking • Container storage • Caravan storage • Yard area The site is situated on Highfield Road Industrial Estate and is accessed via Manchester Road West (A6) which provides direct access to Junction 4 of the M61 which is approximately 1 mile to the north west of the property.
Property Facts
| Total Space Available | 0.18 AC | Property Subtype | Commercial |
| Property Type | Land | Proposed Use | Commercial |
| Total Space Available | 0.18 AC |
| Property Type | Land |
| Property Subtype | Commercial |
| Proposed Use | Commercial |
Features and Amenities
- Fenced Lot
1 1
1 of 7
Videos
Matterport 3D Exterior
Matterport 3D Tour
Photos
Street View
Street
Map
1 of 1
Presented by
Open Storage Site | Highfield Rd
Already a member? Log In
Hmm, there seems to have been an error sending your message. Please try again.
Thanks! Your message was sent.



