Your email has been sent.
Highlands Ln - Office Development 0.89 Acres of Commercial Land Offered at $2,794,496 CAD in Rotherfield Greys RG9 4PR



Investment Highlights
- Freehold development site within Crest Nicholson’s masterplan
- 37 dedicated parking spaces in a landscaped rural setting
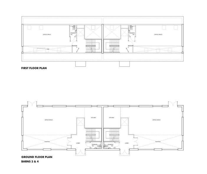
- Outline planning for six self-contained commercial buildings
Executive Summary
Property Facts
| Price | $2,794,496 CAD | Property Type | Land |
| Sale Type | Investment | Property Subtype | Commercial |
| Sale Condition | Redevelopment Project | Proposed Use | |
| Tenure | Freehold | Total Lot Size | 0.89 AC |
| No. Lots | 1 |
| Price | $2,794,496 CAD |
| Sale Type | Investment |
| Sale Condition | Redevelopment Project |
| Tenure | Freehold |
| No. Lots | 1 |
| Property Type | Land |
| Property Subtype | Commercial |
| Proposed Use | |
| Total Lot Size | 0.89 AC |
1 Lot Available
Lot
| Price | $2,794,496 CAD | Lot Size | 0.89 AC |
| Price Per AC | $3,139,882.63 CAD |
| Price | $2,794,496 CAD |
| Price Per AC | $3,139,882.63 CAD |
| Lot Size | 0.89 AC |
Extending to 0.905 acres, the lot comprises a proposed scheme for a small business park with 6 commercial office spaces and 37 car parking spaces.
Description
Located approximately 1.5 miles from Henley-on-Thames town centre, Highlands Park forms part of the Crest Nicholson master-planned residential scheme, benefiting from high-quality surroundings and strong environmental appeal. Henley-on-Thames is one of the region’s most established Thames Valley towns, famed for its leisure and cultural events and supported by strong retail and commercial activity. Excellent road access to both the M40 and M4 corridors, along with proximity to Reading’s mainline rail links, enhances connectivity to London, Heathrow Airport, and wider economic hubs. The 0.905-acre site benefits from rural character while maintaining accessibility to urban amenities, offering a unique blend of tranquillity and practical commercial viability. With an estimated GDV of approximately £5.9 million when fully let, the development presents compelling potential for long-term value creation.
Presented by
Highlands Ln - Office Development
Hmm, there seems to have been an error sending your message. Please try again.
Thanks! Your message was sent.
