Log In/Sign Up
Your email has been sent.
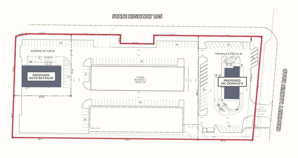
Highway 105 & Crockett Martin Rd
Conroe, TX 77306
±4.94 Acres | Conroe, TX · Land For Lease


Highlights
- Pre-leasing multi-tenant retail
- Hard corner at lighted intersection
- Detention provided off-site with utilities to the site
- Access to both Highway 105 & Crockett Martin Rd
Property Facts
| Total Space Available | 4.94 AC | Property Subtype | Commercial |
| Min. Divisible | 1.00 AC | Proposed Use | Commercial |
| Property Type | Land |
| Total Space Available | 4.94 AC |
| Min. Divisible | 1.00 AC |
| Property Type | Land |
| Property Subtype | Commercial |
| Proposed Use | Commercial |
1 of 4
Videos
Matterport 3D Exterior
Matterport 3D Tour
Photos
Street View
Street
Map
