Log In/Sign Up
Your email has been sent.
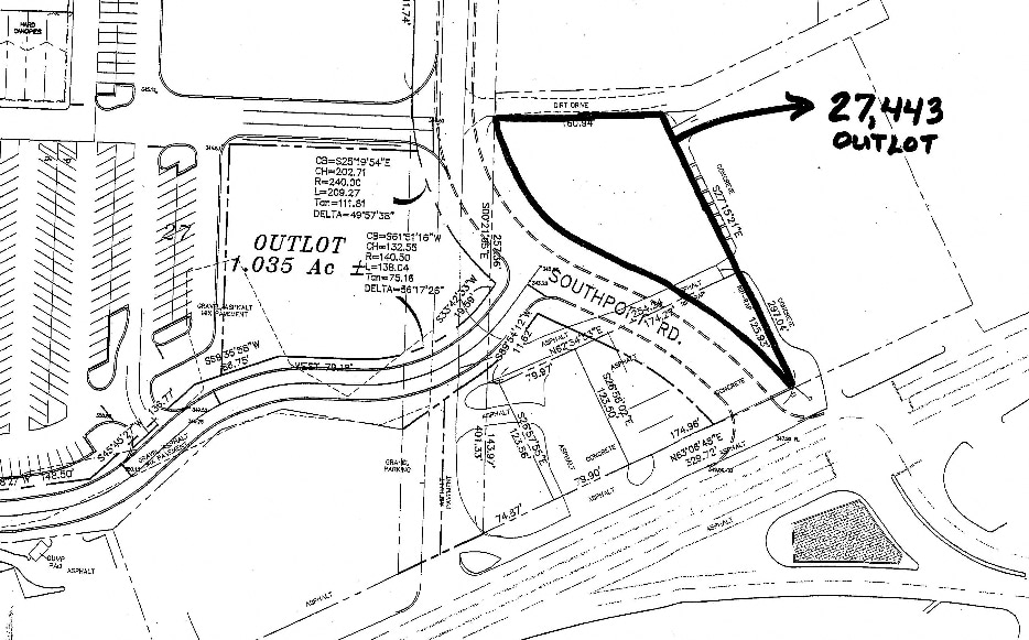
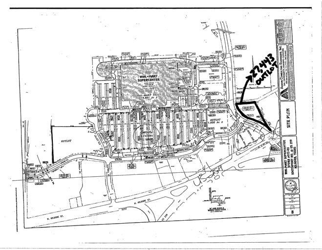
Wal-Mart Kilgore Out Lot Highway 259 0.5 Acres of Commercial Land for Lease in Kilgore, TX 75662



Highlights
- 13,000 VPD
LOT Available
Display Rental Rate as
| Rental Rate |
|
Lot Size | 0.50 AC |
| Lease Term | Negotiable |
| Rental Rate | |
| Lease Term | Negotiable |
| Lot Size | 0.50 AC |
Walmart Supercenter Outparcel Pad Site, ½ acre Pad For Sale, Ground Lease or BTS
Property Overview
Signalized Hard Corner on main Walmart Entrance
Property Facts
1 1
Fairly walkable
40/100
Exceptionally drivable
100/100
Somewhat bikeable
20/100
1 of 5
Videos
Matterport 3D Exterior
Matterport 3D Tour
Photos
Street View
Street
Map
1 of 1
Presented by
Wal-Mart Kilgore Out Lot | Highway 259
Already a member? Log In
Hmm, there seems to have been an error sending your message. Please try again.
Thanks! Your message was sent.
