Log In/Sign Up
Your email has been sent.
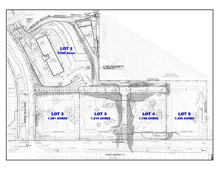
Property Facts
| Sale Type | Investment or Owner User | Property Subtype | Commercial |
| No. Lots | 1 | Proposed Use | Retail |
| Property Type | Land | Total Lot Size | 1.13 AC |
| Sale Type | Investment or Owner User |
| No. Lots | 1 |
| Property Type | Land |
| Property Subtype | Commercial |
| Proposed Use | Retail |
| Total Lot Size | 1.13 AC |
1 Lot Available
Lot Lot 4
| Lot Size | 1.13 AC |
| Lot Size | 1.13 AC |
1 1
Somewhat walkable
20/100
Exceptionally drivable
100/100
Somewhat bikeable
20/100
1 of 3
Videos
Matterport 3D Exterior
Matterport 3D Tour
Photos
Street View
Street
Map
1 of 1
Presented by
Highway 71 Serene Hills Drive - Lot 4
Already a member? Log In
Hmm, there seems to have been an error sending your message. Please try again.
Thanks! Your message was sent.


