Share This Listing

Message

955 characters remaining

Hmm, there seems to have been an error sending your message. Please try again.

Your email has been sent.

Still interested?

Contact the broker for more information about this property

Investment Highlights

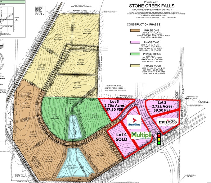
  • Lot 5: 2.76± Acres / 120,226± SF available at $7.50 PSF

Executive Summary

Commercial lot for sale in 92 acre Stone Creek Falls Development in Republic, MO. Stone Creek Falls is a mixed-use subdivision with 16 multi-family housing lots and 5 commercial lots. The development will incorporate the realignment of the US Hwy 60 and State Hwy MM intersection which will support traffic counts of up to 55,000 cars per day. The lots will feature man-made lakes with fountains and trails. Brought to you by the same development team that built Golden Pond, Old Stone, and 60 West, this project will bring jobs and housing to the City of Republic. Contact listing agent for more information.
Commercial lot in mixed-use Stone Creek Falls Development
Will be anchored by new US 60 and State Hwy MM intersection
Regional detention will be in place
New intersection will support traffic counts of 30,000 cars per day on Hwy MM & 55,000 per day on Hwy 60
Zoned PDD - Planned Development District
Lot 1: 2.5± Acres / 108,900± SF - SOLD
Lot 2: 2.72± Acres / 118,483± SF - SOLD
Lot 3: 4.07± Acres / 177,289± SF - SOLD
Lot 4: 3.49± Acres / 152,024± SF - SOLD
Lot 5: 2.76± Acres / 120,226± SF available at $7.50 PSF
*Each lot owner responsible for $250/mo. common area & storm-water basin maintenance expense
https://vimeo.com/656858526/d4e03b2b22

Attachments

Brochure

Property Facts

Sale Type Investment
No. Lots 1
Property Type Land
Property Subtype Commercial
Proposed Use Mixed Use
Total Lot Size 2.76 AC
Zoning PDD

1 Lot Available

Lot

Lot Size 2.76 AC

Description

The development will incorporate the realignment of the US Hwy 60 and State Hwy MM intersection which will support traffic counts of up to 55,000 cars per day. The lots will feature man-made lakes with fountains and trails. Brought to you by the same development team that built Golden Pond, Old Stone, and 60 West, this project will bring jobs and housing to the City of Republic. Contact listing agent for more information.

Not walkable
10/100
Exceptionally drivable
90/100
Somewhat bikeable
30/100
  • Listing ID: 26279258

  • Date on Market: 2022-07-28

  • Last Updated:

  • Address: Hwy 60 at Farm Road 101, Republic, MO 65738

Link copied
Your LoopNet account has been created!

Please Share Your Feedback

We welcome any feedback on how we can improve LoopNet to better serve your needs.
X
{{ getErrorText(feedbackForm.starRating, "rating") }}
255 character limit ({{ remainingChars() }} charactercharacters remainingover)
{{ getErrorText(feedbackForm.msg, "rating") }}
{{ getErrorText(feedbackForm.fname, "first name") }}
{{ getErrorText(feedbackForm.lname, "last name") }}
{{ getErrorText(feedbackForm.phone, "phone number") }}
{{ getErrorText(feedbackForm.phonex, "phone extension") }}
{{ getErrorText(feedbackForm.email, "email address") }}