Log In/Sign Up
Your email has been sent.
Land at Park Road - Consented Mixed-Use Development Opportunity 0.94 Acres of Commercial Land in Faringdon SN7 7FU


INVESTMENT HIGHLIGHTS
- The site is approximately 0.94acres comprising of grassland
- The site benefits from planning permission (P17/V2407/FUL)
- Offers invited on an Unconditional or Subject to Planning offers basis
- Bought to the market on behalf of Ede Holdings Limited and Howard Tenens Distribution Limited
EXECUTIVE SUMMARY
The Site is approximately 0.94 acres (0.38 ha) of grassland which is broadly
rectangular in shape.
The north-west part of the site was previously occupied by two houses
(numbers. 33 and 35 Park Road) which were demolished a number of years
ago to enable the redevelopment of the site. The site is therefore considered
to be previously developed (or brownfield) land.
The site is accessed off Park Road, off the access that was constructed as
part of the residential Ede Homes scheme on adjoining land to the south-east.
To the north and west of the site there is a well established industrial park,
which can be accessed via Pioneer Road. Occupiers of these industrial units
include: Toolstation Faringdon, Protyre Faringdon, DMW Landscapes and
Aspect Woodworking.
To the south of the site is the Bloor Homes residential development ‘Oriel
Gardens’. Whilst part of this development is still under construction, there are
some units now available for purchase. Included within the wider outline
application for the Bloor Homes scheme was an extra care facility. This is 60
apartment Extra Care facility is currently under construction by Housing 21.
rectangular in shape.
The north-west part of the site was previously occupied by two houses
(numbers. 33 and 35 Park Road) which were demolished a number of years
ago to enable the redevelopment of the site. The site is therefore considered
to be previously developed (or brownfield) land.
The site is accessed off Park Road, off the access that was constructed as
part of the residential Ede Homes scheme on adjoining land to the south-east.
To the north and west of the site there is a well established industrial park,
which can be accessed via Pioneer Road. Occupiers of these industrial units
include: Toolstation Faringdon, Protyre Faringdon, DMW Landscapes and
Aspect Woodworking.
To the south of the site is the Bloor Homes residential development ‘Oriel
Gardens’. Whilst part of this development is still under construction, there are
some units now available for purchase. Included within the wider outline
application for the Bloor Homes scheme was an extra care facility. This is 60
apartment Extra Care facility is currently under construction by Housing 21.
PROPERTY FACTS
| Sale Type | Investment | Property Subtype | Commercial |
| Tenure | Freehold | Proposed Use | Office |
| No. Lots | 1 | Total Lot Size | 0.94 AC |
| Property Type | Land |
| Sale Type | Investment |
| Tenure | Freehold |
| No. Lots | 1 |
| Property Type | Land |
| Property Subtype | Commercial |
| Proposed Use | Office |
| Total Lot Size | 0.94 AC |
1 LOT AVAILABLE
Lot
| Lot Size | 0.94 AC |
| Lot Size | 0.94 AC |
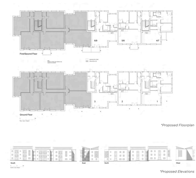
The site benefits from planning permission (P17/V2407/FUL) for the development of 9 apartments and an office. No affordable housing requirements within the existing consent.
DESCRIPTION
This lot comprises 0.94 acres with planning permission for a development of 9 apartments and an office building.
1 1
1 of 3
VIDEOS
MATTERPORT 3D EXTERIOR
MATTERPORT 3D TOUR
PHOTOS
STREET VIEW
STREET
MAP
1 of 1
Presented by
Land at Park Road - Consented Mixed-Use Development Opportunity
Already a member? Log In
Hmm, there seems to have been an error sending your message. Please try again.
Thanks! Your message was sent.
