Log In/Sign Up
Your email has been sent.
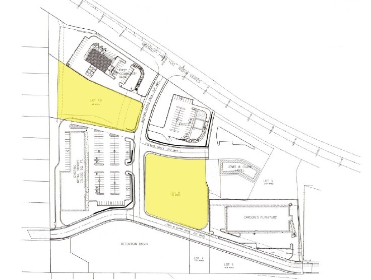
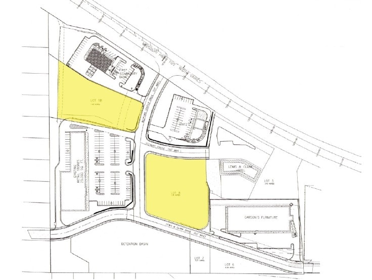
Bedford Center Lewis And Clark Dr 1.43 - 2.89 Acres of Commercial Land for Lease in Washington, MO 63090

LOT Available
Display Rental Rate as
| Rental Rate |
|
Lot Size | 1.43 - 2.89 AC |
| Lease Term | Negotiable |
| Rental Rate | |
| Lease Term | Negotiable |
| Lot Size | 1.43 - 2.89 AC |
Lot - 1.43 AC Lot - 1.46 AC FOR SALE OR FOR LEASE
Property Facts
1 1
Fairly walkable
40/100
Exceptionally drivable
100/100
Somewhat bikeable
30/100
1 of 2
Videos
Matterport 3D Exterior
Matterport 3D Tour
Photos
Street View
Street
Map
1 of 1
Presented by
Bedford Center | Lewis And Clark Dr
Already a member? Log In
Hmm, there seems to have been an error sending your message. Please try again.
Thanks! Your message was sent.
