Log In/Sign Up
Your email has been sent.
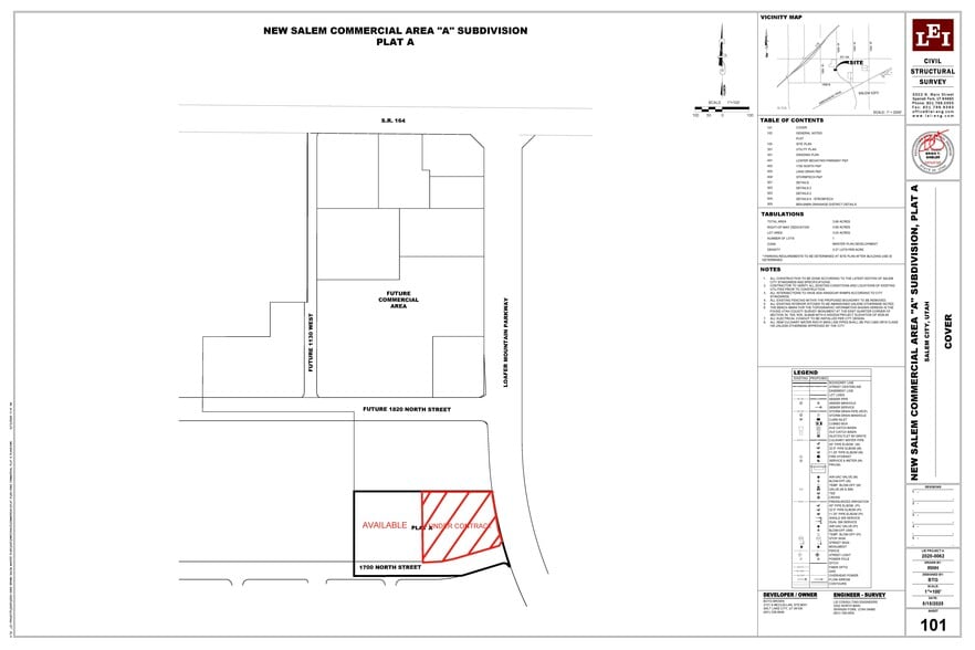
Loafer Mountain Parkway SR-164 - Lot 11 - New Salem - Lot 11 3.01 Acres of Commercial Land Offered at $3,593,642 CAD in Spanish Fork, UT 84660



Investment Highlights
- Large Arterial Parkway frontage
- 29,500 estimated trips per day produced from New Salem
- 1900+ Unit residential development neighboring the lot.
Executive Summary
*West half is still available!* East portion is under contract
Right off the I-15 Benjamin Exit into Salem! This site has frontage on a main arterial road, Loafer Mountain Parkway, and 17th North which is currently under construction. Traffic Report estimates 29,500 trips per day will be produced from the New Salem Masterplan. A great location for commercial/retail right at the entrance of Salem, Woodland Hills, and Elk Ridge. Just south of New Salem will be the brand new Arrowhead Park, which will host 5 Baseball/Softball diamonds and soccer fields for large sporting events. New Salem, the newest master planned community in Salem, UT, is strategically positioned on the corner of 8000 South (SR-164) and the newly completed Loafer Mountain Parkway. New Salem is a large mixed use masterplan with 1,900+ residential units planned. Lot 9 can be included, if buyer requests, totaling 6 acres +/-.
- All pads, with exception to those sold, can be sized/subdivided to fit.
- Lot 11 can include lot 9 for an additional 3 acres +/- if needed.
- Seller to deliver super pads to Buyer with perimeter roads installed and utilities stubbed to the lot.
- Buyer will be responsible for all onsite development.
- Zoning - New Salem master plan with development agreement allows for the C1, C2, and C3 commercial zoning to be utilized in our commercial/retail center.
Right off the I-15 Benjamin Exit into Salem! This site has frontage on a main arterial road, Loafer Mountain Parkway, and 17th North which is currently under construction. Traffic Report estimates 29,500 trips per day will be produced from the New Salem Masterplan. A great location for commercial/retail right at the entrance of Salem, Woodland Hills, and Elk Ridge. Just south of New Salem will be the brand new Arrowhead Park, which will host 5 Baseball/Softball diamonds and soccer fields for large sporting events. New Salem, the newest master planned community in Salem, UT, is strategically positioned on the corner of 8000 South (SR-164) and the newly completed Loafer Mountain Parkway. New Salem is a large mixed use masterplan with 1,900+ residential units planned. Lot 9 can be included, if buyer requests, totaling 6 acres +/-.
- All pads, with exception to those sold, can be sized/subdivided to fit.
- Lot 11 can include lot 9 for an additional 3 acres +/- if needed.
- Seller to deliver super pads to Buyer with perimeter roads installed and utilities stubbed to the lot.
- Buyer will be responsible for all onsite development.
- Zoning - New Salem master plan with development agreement allows for the C1, C2, and C3 commercial zoning to be utilized in our commercial/retail center.
Property Facts
1 Lot Available
Lot 11
| Price | $3,593,642 CAD | Lot Size | 3.01 AC |
| Price Per AC | $1,193,901.16 CAD |
| Price | $3,593,642 CAD |
| Price Per AC | $1,193,901.16 CAD |
| Lot Size | 3.01 AC |
Lot 11 - 3.01 acre lot on the corner of Loafer Mountain Parkway and SR-164.
Description
Large lot fronting Loafer Mountain Parkway and has access from SR-164.
1 1
Not walkable
10/100
Exceptionally drivable
100/100
Somewhat bikeable
20/100
1 of 5
Videos
Matterport 3D Exterior
Matterport 3D Tour
Photos
Street View
Street
Map
1 of 1
Presented by
Loafer Mountain Parkway SR-164 - Lot 11 - New Salem - Lot 11
Already a member? Log In
Hmm, there seems to have been an error sending your message. Please try again.
Thanks! Your message was sent.
