Your email has been sent.
Lot #38 James Burr blvd 5,100 - 10,200 SF of Flex Space Available in Kearneysville, WV 25430



Highlights
- Situated within Burr Business Park
- Located in Jefferson County, WV, offering lower operating costs, favorable zoning, and proximity to a skilled regional labor pool
- Immediate access to I-81 via WV Route 9, providing efficient connectivity to Washington, D.C., Baltimore
All Available Spaces(2)
Display Rental Rate as
- Space
- Size
- Term
- Rental Rate
- Space Use
- Condition
- Available
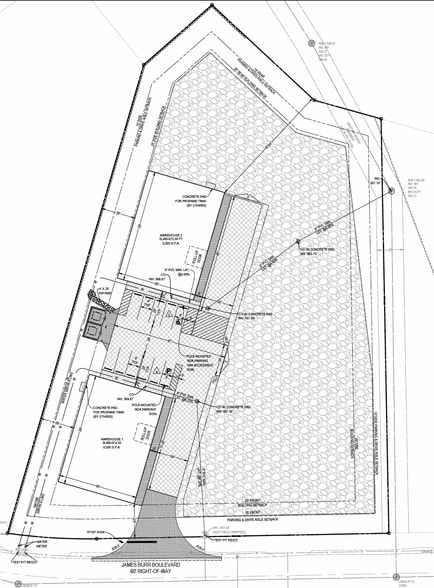
Burr Business Park – Lot 38 is a new industrial development consisting of two ±5,000 square foot warehouse/office buildings located within the Mid-Atlantic I-81 Logistics Corridor. The project is designed to accommodate light manufacturing, contractor services, warehousing, and flex industrial users seeking efficient, small-bay space, with approximately ±1 acre of secured, fenced outdoor storage available on site. The property is strategically located in Burr Business Park in Jefferson County, West Virginia, with direct access to Interstate 81 via WV Route 9, providing seamless north–south connectivity throughout the Mid-Atlantic region. The site is approximately 70 miles from Washington, D.C., 80 miles from Baltimore. The development offers modern construction, flexible layouts, dedicated parking, and yard access, making it well-suited for contractors, logistics users, and industrial tenants requiring both indoor warehouse space and outdoor storage capacity. Both buildings are available for lease or owner occupancy, providing a rare opportunity to secure small-bay industrial space with fenced yard area in a supply-constrained market.
- Lease rate does not include utilities, property expenses or building services
- Can be combined with additional space(s) for up to 10,200 SF of adjacent space
- Reception Area
- Emergency Lighting
- Space is in Excellent Condition
- Central Air and Heating
- Private Restrooms
- DDA Compliant
- Space is in Excellent Condition
- Central Air and Heating
- Emergency Lighting
- DDA Compliant
- Can be combined with additional space(s) for up to 10,200 SF of adjacent space
- Private Restrooms
- Recessed Lighting
- Wheelchair Accessible
| Space | Size | Term | Rental Rate | Space Use | Condition | Available |
| 1st Floor | 5,100 SF | Negotiable | Upon Request Upon Request Upon Request Upon Request | Flex | Full Build-Out | TBD |
| 1st Floor | 5,100 SF | Negotiable | Upon Request Upon Request Upon Request Upon Request | Flex | Full Build-Out | TBD |
1st Floor
| Size |
| 5,100 SF |
| Term |
| Negotiable |
| Rental Rate |
| Upon Request Upon Request Upon Request Upon Request |
| Space Use |
| Flex |
| Condition |
| Full Build-Out |
| Available |
| TBD |
1st Floor
| Size |
| 5,100 SF |
| Term |
| Negotiable |
| Rental Rate |
| Upon Request Upon Request Upon Request Upon Request |
| Space Use |
| Flex |
| Condition |
| Full Build-Out |
| Available |
| TBD |
1st Floor
| Size | 5,100 SF |
| Term | Negotiable |
| Rental Rate | Upon Request |
| Space Use | Flex |
| Condition | Full Build-Out |
| Available | TBD |
Burr Business Park – Lot 38 is a new industrial development consisting of two ±5,000 square foot warehouse/office buildings located within the Mid-Atlantic I-81 Logistics Corridor. The project is designed to accommodate light manufacturing, contractor services, warehousing, and flex industrial users seeking efficient, small-bay space, with approximately ±1 acre of secured, fenced outdoor storage available on site. The property is strategically located in Burr Business Park in Jefferson County, West Virginia, with direct access to Interstate 81 via WV Route 9, providing seamless north–south connectivity throughout the Mid-Atlantic region. The site is approximately 70 miles from Washington, D.C., 80 miles from Baltimore. The development offers modern construction, flexible layouts, dedicated parking, and yard access, making it well-suited for contractors, logistics users, and industrial tenants requiring both indoor warehouse space and outdoor storage capacity. Both buildings are available for lease or owner occupancy, providing a rare opportunity to secure small-bay industrial space with fenced yard area in a supply-constrained market.
- Lease rate does not include utilities, property expenses or building services
- Space is in Excellent Condition
- Can be combined with additional space(s) for up to 10,200 SF of adjacent space
- Central Air and Heating
- Reception Area
- Private Restrooms
- Emergency Lighting
- DDA Compliant
1st Floor
| Size | 5,100 SF |
| Term | Negotiable |
| Rental Rate | Upon Request |
| Space Use | Flex |
| Condition | Full Build-Out |
| Available | TBD |
- Space is in Excellent Condition
- Can be combined with additional space(s) for up to 10,200 SF of adjacent space
- Central Air and Heating
- Private Restrooms
- Emergency Lighting
- Recessed Lighting
- DDA Compliant
- Wheelchair Accessible
Property Overview
Burr Business Park – Lot 38 is a new industrial development consisting of two ±5,000 square foot warehouse/office buildings located within the Mid-Atlantic I-81 Logistics Corridor. The project is designed to accommodate light manufacturing, contractor services, warehousing, and flex industrial users seeking efficient, small-bay space, with approximately ±1 acre of secured, fenced outdoor storage available on site. The property is strategically located in Burr Business Park in Jefferson County, West Virginia, with direct access to Interstate 81 via WV Route 9, providing seamless north–south connectivity throughout the Mid-Atlantic region. The site is approximately 70 miles from Washington, D.C., 80 miles from Baltimore. The development offers modern construction, flexible layouts, dedicated parking, and yard access, making it well-suited for contractors, logistics users, and industrial tenants requiring both indoor warehouse space and outdoor storage capacity. Both buildings are available for lease or owner occupancy, providing a rare opportunity to secure small-bay industrial space with fenced yard area in a supply-constrained market.
Property Facts
Presented by
Shubha LLC
Lot #38 James Burr blvd
Hmm, there seems to have been an error sending your message. Please try again.
Thanks! Your message was sent.
