Log In/Sign Up
Your email has been sent.
Investment Highlights
- Direct proximity to Rt. 234 Bus (Sudley Road) and convenient access to Prince William Pkwy and I-66.
Executive Summary
SALE PRICE $370.00 / SF
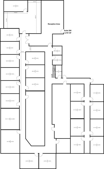
Four adjoining office condos available for sale, comprising a larger combined suite totaling 5,701 SF (Suites 200 & 201) and a second combined suite totaling 3,779 SF (Suites 203 & 204). Both spaces feature efficient, corridor-style layouts with a strong mix of private offices, support rooms, and dedicated reception areas. The larger suite includes an expansive reception and numerous private offices suitable for medical, professional services, or administrative users, while the smaller suite offers a functional reception area and wellproportioned offices ideal for a growing professional practice. The suites may be utilized independently or in tandem to accommodate owner-users, multi-tenant occupancy, or investment strategies. Located within the Sudley South Business Center, an established office condo park in Manassas, the property benefits from a professional business setting with direct proximity to Rt. 234 Bus (Sudley Road) and convenient access to Prince William Pkwy and I-66. This strategic positioning provides efficient connectivity throughout PWC and the broader NOVA region. The surrounding area offers a strong mix of office, retail, and service amenities, supporting ease of access for employees and clients alike.
Four adjoining office condos available for sale, comprising a larger combined suite totaling 5,701 SF (Suites 200 & 201) and a second combined suite totaling 3,779 SF (Suites 203 & 204). Both spaces feature efficient, corridor-style layouts with a strong mix of private offices, support rooms, and dedicated reception areas. The larger suite includes an expansive reception and numerous private offices suitable for medical, professional services, or administrative users, while the smaller suite offers a functional reception area and wellproportioned offices ideal for a growing professional practice. The suites may be utilized independently or in tandem to accommodate owner-users, multi-tenant occupancy, or investment strategies. Located within the Sudley South Business Center, an established office condo park in Manassas, the property benefits from a professional business setting with direct proximity to Rt. 234 Bus (Sudley Road) and convenient access to Prince William Pkwy and I-66. This strategic positioning provides efficient connectivity throughout PWC and the broader NOVA region. The surrounding area offers a strong mix of office, retail, and service amenities, supporting ease of access for employees and clients alike.
Property Facts
| Price | $4,428,310 CAD | Number of Properties | 2 |
| Price / SF | $503.39 CAD / SF | Individually For Sale | 0 |
| Sale Type | Investment or Owner User | Total Building Size | 8,797 SF |
| Status | Active |
| Price | $4,428,310 CAD |
| Price / SF | $503.39 CAD / SF |
| Sale Type | Investment or Owner User |
| Status | Active |
| Number of Properties | 2 |
| Individually For Sale | 0 |
| Total Building Size | 8,797 SF |
Properties
| Property Name / Address | Property Type | Size | Year Built | Individual Price |
|---|---|---|---|---|
| 8140 Ashton Ave, 2nd Floor - Unit 200, Manassas, VA 20109 | Office Condo | 5,701 SF | 2007 | - |
| 8140 Ashton Ave, 2nd Floor - Unit 203, Manassas, VA 20109 | Office Condo | 3,096 SF | 2007 | - |
1 1
1 of 4
Videos
Matterport 3D Exterior
Matterport 3D Tour
Photos
Street View
Street
Map
1 of 1
Presented by
MEDICAL OFFICE CONDOS
Already a member? Log In
Hmm, there seems to have been an error sending your message. Please try again.
Thanks! Your message was sent.



