Log In/Sign Up
Your email has been sent.
Investment Highlights
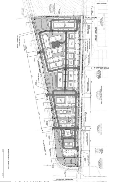
- Planned 26 acre mixed use development on the Northeast corner of Hwy 75 & CR 375 in Van Alstyne, pads available / build-to-suit lease opportunities
- Phase 1 includes 7-11 and emergency room/urgent care
- Surrounded by high growth residential – Mantua 3000 acre master planned community (6,000 lots), Driscoll Hill (142 lots), Remington Ridge (410 lots)
- 1.57 acre pad site available adjacent to the new ER/urgent care as shown on the attached site plan as lot 5
- Utilities available – water, sewer and detention on site
- Great Visibility/Accessibility – Hard corner of Highway 75 and County Road 375 (future Panther Pkwy)
Executive Summary
Planned 26 acre mixed use development on the Northeast corner of Hwy 75 & CR 375 in Van Alstyne. This is part of the 3000 acre Mantua residential development(6000 lots) currently under construction. Phase 1 includes 7-11 and and ER/urgent care. Utilities available - water, sewer on site and detention on site. Zoning is Northern Business District. Pads available for sale / build-to-suit lease opportunities. Great Visibility/Accessibility – Hard corner of Highway 75 and County Road 375 (future Panther Pkwy). Surrounded by high growth residential – Mantua 3000 acre master planned community (6,000 lots), Driscoll Hill (142 lots), Remington Ridge (410 lots), North Pointe Crossing (764 lots). 1.57 acre pad site available adjacent to the new ER/urgent care as shown on the attached site plan as lot 5. Curb cut of Hwy 75 and Kelly Lane.
Property Facts
1 Lot Available
Lot
| Lot Size | 1.57 AC |
| Lot Size | 1.57 AC |
Planned 26 acre mixed use development on the Northeast corner of Hwy 75 & CR 375 in Van Alstyne. Utilities available - water, sewer on site and detention on site. 1.57 acre pad site available adjacent to the new ER/urgent care
1 1
Somewhat walkable
20/100
Exceptionally drivable
100/100
Not bikeable
10/100
Property Taxes
| Parcel Number | 135574 | Improvements Assessment | $0 CAD |
| Land Assessment | $5,983 CAD | Total Assessment | $5,983 CAD |
Property Taxes
Parcel Number
135574
Land Assessment
$5,983 CAD
Improvements Assessment
$0 CAD
Total Assessment
$5,983 CAD
1 of 2
Videos
Matterport 3D Exterior
Matterport 3D Tour
Photos
Street View
Street
Map
1 of 1
Presented by
Manatua Crossing - Pad-Site 4
Already a member? Log In
Hmm, there seems to have been an error sending your message. Please try again.
Thanks! Your message was sent.

