Your email has been sent.
The Market Shopping Centre Market St 1,401 - 62,024 SF of Retail Space Available in Crewe CW1 2NG



Highlights
- Car park facing retail warehouse.
Space Availability (8)
Display Rental Rate as
- Space
- Size
- Term
- Rental Rate
- Type
| Space | Size | Term | Rental Rate | Rent Type | ||
| - | 2,860 SF | Negotiable | Upon Request Upon Request Upon Request Upon Request | TBD | ||
| - | 1,401 SF | Negotiable | Upon Request Upon Request Upon Request Upon Request | TBD | ||
| Ground, Ste 10-11 | 4,055 SF | 5 Years | $30.78 CAD/SF/YR $2.57 CAD/SF/MO $124,821 CAD/YR $10,402 CAD/MO | Fully Repairing & Insuring | ||
| Ground, Ste 18-20 | 3,796 SF | Negotiable | $49.08 CAD/SF/YR $4.09 CAD/SF/MO $186,300 CAD/YR $15,525 CAD/MO | Fully Repairing & Insuring | ||
| Ground, Ste 26-29 | 5,832 SF | Negotiable | Upon Request Upon Request Upon Request Upon Request | Fully Repairing & Insuring | ||
| Ground, Ste 4-5 | 5,596 SF | Negotiable | $28.30 CAD/SF/YR $2.36 CAD/SF/MO $158,355 CAD/YR $13,196 CAD/MO | Fully Repairing & Insuring | ||
| Ground, Ste 8-9 | 2,367 SF | Negotiable | Upon Request Upon Request Upon Request Upon Request | Fully Repairing & Insuring | ||
| Ground, Ste D | 36,117 SF | 5 Years | $1.03 CAD/SF/YR $0.09 CAD/SF/MO $37,260 CAD/YR $3,105 CAD/MO | Fully Repairing & Insuring |
-
-
Ground, Ste 10-11
The property comprises a large imposing double fronted two storey commercial property, which extends to a total of 7,786 sq. ft. ( 723.60 sq m) over ground and rst oors.
- Use Class: E
- Partially Built-Out as Standard Retail Space
- Highly Desirable End Cap Space
- Security System
- Secure Storage
- Energy Performance Rating - D
- Wide range of uses
- Glass Window Frontage
- Heavy daytime footfall
Ground, Ste 18-20
Ground Floor
- Use Class: E
- Fully Built-Out as Standard Retail Space
- Located in-line with other retail
- Wide range of uses
- Heavy Daytime Footfall
- Glass Window Frontage
Ground, Ste 26-29
The premises are available by way of a new effectively full repairing and insuring lease for a term of years to be agreed.
- Use Class: E
- Fully Built-Out as Standard Retail Space
- Located in-line with other retail
- Wide range of uses
- Heavy Daytime Footfall
- Glass Window Frontage
Ground, Ste 4-5
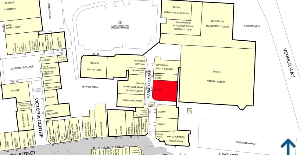
The Market Centre comprises 25 retail units with an average annual footfall of approximately 4M. The scheme can be accessed from both the town centres high street retailing pitch and also via a surface car park entrance. This unit comprises a prominent corner unit fronting the 170 space car park and sits close the location of the new Burger King drive-thru, which will open soon.
- Use Class: E
- Partially Built-Out as Standard Retail Space
- Highly Desirable End Cap Space
- Security System
- Secure Storage
- Wide range of uses
- Glass Window Frontage
- Heavy daytime footfall
Ground, Ste 8-9
The Market Centre comprises 25 retail units with an average annual footfall of approximately 4M. The scheme can be accessed from both the town centres high street retailing pitch and also via a surface car park entrance. This unit comprises a prominent corner unit fronting the 170 space car park and sits close the location of the new Burger King drive-thru, which will open soon.
- Use Class: E
- Partially Built-Out as Standard Retail Space
- Highly Desirable End Cap Space
- Security System
- Secure Storage
- Wide range of uses
- Glass Window Frontage
- Heavy daytime footfall
Ground, Ste D
Ground Floor
- Use Class: E
- Partially Built-Out as Standard Retail Space
- Highly Desirable End Cap Space
- Security System
- Secure Storage
- Energy Performance Rating - D
- Wide range of uses
- Glass Window Frontage
- Heavy daytime footfall
Service Types
The rent amount and service type that the tenant (lessee) will be responsible to pay to the landlord (lessor) throughout the lease term is negotiated prior to both parties signing a lease agreement. The service type will vary depending upon the services provided. Contact the listing broker for a full understanding of any associated costs or additional expenses for each service type.
1. Fully Repairing & Insuring: All obligations for repairing and insuring the property (or their share of the property) both internally and externally.
2. Internal Repairing Only: The tenant is responsible for internal repairs only. The landlord is responsible for structural and external repairs.
3. Internal Repairing & Insuring: The tenant is responsible for internal repairs and insurance for internal parts of the property only. The landlord is responsible for structural and external repairs.
4. Negotiable or TBD: This is used when the leasing contact does not provide the service type.
Select Tenants at The Market Shopping Centre
- Tenant
- Description
- UK Locations
- Reach
- B & M
- Discount Store
- 961
- International
- Iceland
- Supermarket
- 1,051
- International
- Peacocks
- Unisex Apparel
- 477
- National
- River Island
- Unisex Apparel
- 159
- International
- Superdrug
- Health & Beauty Aids
- 876
- International
- Wilko
- Dept Store
- 154
- International
| Tenant | Description | UK Locations | Reach |
| B & M | Discount Store | 961 | International |
| Iceland | Supermarket | 1,051 | International |
| Peacocks | Unisex Apparel | 477 | National |
| River Island | Unisex Apparel | 159 | International |
| Superdrug | Health & Beauty Aids | 876 | International |
| Wilko | Dept Store | 154 | International |
Property Facts
| Total Space Available | 62,024 SF | Total Land Area | 5.91 AC |
| Property Type | Retail | Year Built | 1985 |
| Property Subtype | Storefront | Parking Ratio | 1.8/1,000 SF |
| Gross Leasable Area | 185,000 SF |
| Total Space Available | 62,024 SF |
| Property Type | Retail |
| Property Subtype | Storefront |
| Gross Leasable Area | 185,000 SF |
| Total Land Area | 5.91 AC |
| Year Built | 1985 |
| Parking Ratio | 1.8/1,000 SF |
About the Property
Crewe is an affluent market town situated in the District of Crewe and Nantwich and the County of Cheshire. The Market Centre is situated within the core retail area of Crewe Town Centre, fronting the junction of the prime pedestrianised retail thorough fares of Victoria Street and Market Street.
- Property Manager on Site
- Security System
- Automatic Blinds
Nearby Major Retailers
Presented by
The Market Shopping Centre | Market St
Hmm, there seems to have been an error sending your message. Please try again.
Thanks! Your message was sent.



