Log In/Sign Up
Your email has been sent.
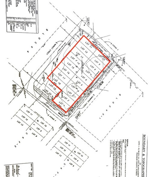
Market Street - Paddlewheel 1 Acre of Commercial Land Offered at $2,791,840 CAD in Apalachicola, FL 32320



EXECUTIVE SUMMARY
These premier properties offer an incredible investment opportunity for retail, dining, office, event, or mixed-use development with residential units above.
PROPERTY FACTS
1 LOT AVAILABLE
Lot
| Price | $2,791,840 CAD | Lot Size | 1.00 AC |
| Price Per AC | $2,791,840.08 CAD |
| Price | $2,791,840 CAD |
| Price Per AC | $2,791,840.08 CAD |
| Lot Size | 1.00 AC |
Seize this rare opportunity to own 18 commercially zoned lots in the heart of historic downtown Apalachicola!
Bike Score®
Very Bikeable (72)
PROPERTY TAXES
| Parcel Number | 01-09S-08W-8330-00G2-0010 | Improvements Assessment | $0 CAD |
| Land Assessment | $1,892,268 CAD | Total Assessment | $1,892,268 CAD |
PROPERTY TAXES
Parcel Number
01-09S-08W-8330-00G2-0010
Land Assessment
$1,892,268 CAD
Improvements Assessment
$0 CAD
Total Assessment
$1,892,268 CAD
1 of 5
VIDEOS
MATTERPORT 3D EXTERIOR
MATTERPORT 3D TOUR
PHOTOS
STREET VIEW
STREET
MAP
Presented by
Market Street - Paddlewheel
Already a member? Log In
Hmm, there seems to have been an error sending your message. Please try again.
Thanks! Your message was sent.

