Your email has been sent.
13002 Marseille 4,144 - 10,871 SF of Office Space Available



Some information has been automatically translated.
Highlights
- Quartier Euroméditerranée
- Immeuble certifié Breeam
- Accès transports variés
All Available Spaces(2)
Display Rental Rate as
- Space
- Size
- Term
-
Rental Rate
- Space Use
- Condition
- Available
Cet espace situé en rez-de-chaussée au sein de l’Espace Gaymard bénéficie d’un aménagement cloisonné, idéal pour des bureaux privatifs. Il dispose d’un câblage informatique RJ45, d’un faux plancher technique et d’un éclairage encastré pour un confort optimal. Les sanitaires sont privatifs et un espace cuisine peut être créé. La sécurité est assurée par un PC sécurité et un système d’alarme. Deux places de parking intérieures sont disponibles en option. L’ensemble est climatisé et rénové, offrant un cadre fonctionnel et agréable pour vos équipes.
- Agency Fee: 15.00% of annual rent
- Bureaux cloisonnés rénovés
- 2 parkings intérieurs disponibles
- Can be combined with additional space(s) for up to 10,872 SF of adjacent space
- Climatisation réversible
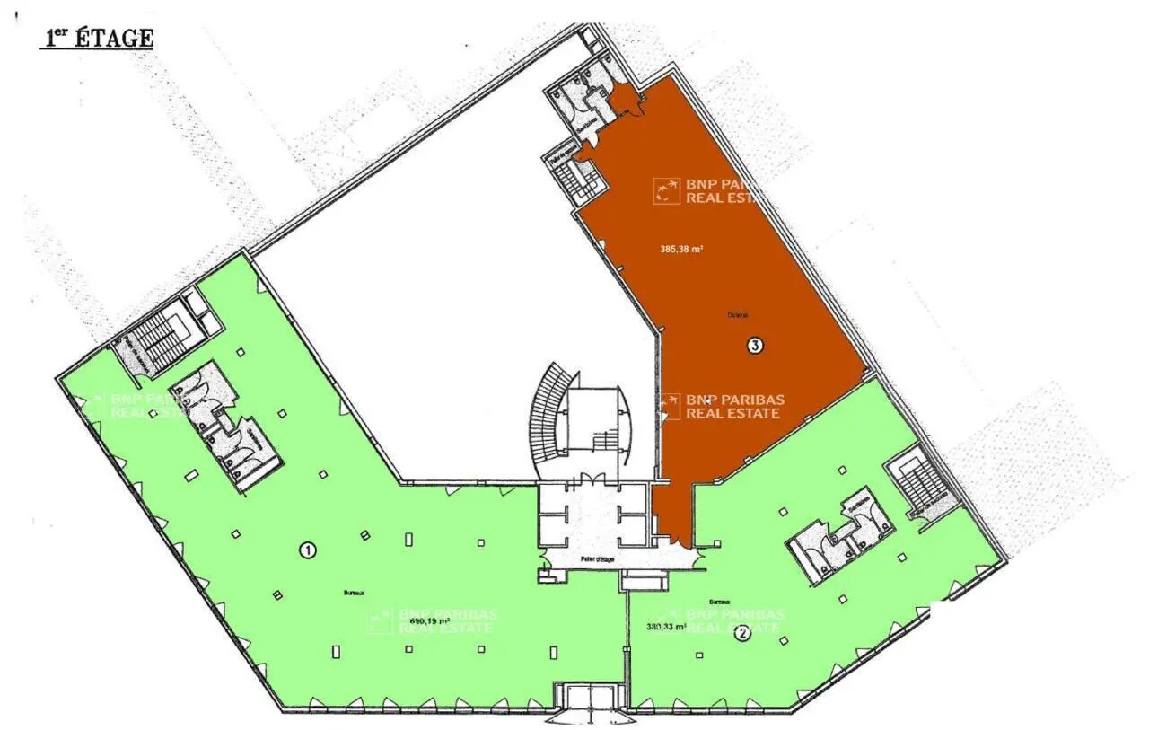
Cet espace situé au premier étage de l’Espace Gaymard bénéficie d’un aménagement cloisonné, idéal pour des bureaux privatifs. Il dispose d’un câblage informatique RJ45, d’un faux plancher technique et d’un éclairage encastré pour un confort optimal. Les sanitaires sont privatifs et un espace cuisine peut être créé. La sécurité est assurée par un PC sécurité et un système d’alarme. Deux places de parking intérieures sont disponibles en option. L’ensemble est climatisé et rénové, offrant un cadre fonctionnel et agréable pour vos équipes.
- Agency Fee: 15.00% of annual rent
- Open Floor Plan Layout
- Central Air Conditioning
- Fully Carpeted
- Drop Ceilings
- Open space lumineux
- Bureaux rénovés
- Fully Built-Out as Standard Office
- Can be combined with additional space(s) for up to 10,872 SF of adjacent space
- Private Restrooms
- Security System
- Open-Plan
- 2 parkings disponibles
| Space | Size | Term | Rental Rate | Space Use | Condition | Available |
| Ground | 6,727 SF | Negotiable | $22.30 /SF/YR HT-HC $1.86 /SF/MO HT-HC $150,000 /YR HT-HC $12,500 /MO HT-HC | Office | - | Now |
| 1st Floor | 4,144 SF | Negotiable | $22.30 /SF/YR HT-HC $1.86 /SF/MO HT-HC $92,400 /YR HT-HC $7,700 /MO HT-HC | Office | Full Build-Out | Now |
Ground
| Size |
| 6,727 SF |
| Term |
| Negotiable |
|
Rental Rate
|
| $22.30 /SF/YR HT-HC $1.86 /SF/MO HT-HC $150,000 /YR HT-HC $12,500 /MO HT-HC |
| Space Use |
| Office |
| Condition |
| - |
| Available |
| Now |
1st Floor
| Size |
| 4,144 SF |
| Term |
| Negotiable |
|
Rental Rate
|
| $22.30 /SF/YR HT-HC $1.86 /SF/MO HT-HC $92,400 /YR HT-HC $7,700 /MO HT-HC |
| Space Use |
| Office |
| Condition |
| Full Build-Out |
| Available |
| Now |
Ground
| Size | 6,727 SF |
| Term | Negotiable |
|
Rental Rate
|
$22.30 /SF/YR HT-HC |
| Space Use | Office |
| Condition | - |
| Available | Now |
Cet espace situé en rez-de-chaussée au sein de l’Espace Gaymard bénéficie d’un aménagement cloisonné, idéal pour des bureaux privatifs. Il dispose d’un câblage informatique RJ45, d’un faux plancher technique et d’un éclairage encastré pour un confort optimal. Les sanitaires sont privatifs et un espace cuisine peut être créé. La sécurité est assurée par un PC sécurité et un système d’alarme. Deux places de parking intérieures sont disponibles en option. L’ensemble est climatisé et rénové, offrant un cadre fonctionnel et agréable pour vos équipes.
- Agency Fee: 15.00% of annual rent
- Can be combined with additional space(s) for up to 10,872 SF of adjacent space
- Bureaux cloisonnés rénovés
- Climatisation réversible
- 2 parkings intérieurs disponibles
1st Floor
| Size | 4,144 SF |
| Term | Negotiable |
|
Rental Rate
|
$22.30 /SF/YR HT-HC |
| Space Use | Office |
| Condition | Full Build-Out |
| Available | Now |
Cet espace situé au premier étage de l’Espace Gaymard bénéficie d’un aménagement cloisonné, idéal pour des bureaux privatifs. Il dispose d’un câblage informatique RJ45, d’un faux plancher technique et d’un éclairage encastré pour un confort optimal. Les sanitaires sont privatifs et un espace cuisine peut être créé. La sécurité est assurée par un PC sécurité et un système d’alarme. Deux places de parking intérieures sont disponibles en option. L’ensemble est climatisé et rénové, offrant un cadre fonctionnel et agréable pour vos équipes.
- Agency Fee: 15.00% of annual rent
- Fully Built-Out as Standard Office
- Open Floor Plan Layout
- Can be combined with additional space(s) for up to 10,872 SF of adjacent space
- Central Air Conditioning
- Private Restrooms
- Fully Carpeted
- Security System
- Drop Ceilings
- Open-Plan
- Open space lumineux
- 2 parkings disponibles
- Bureaux rénovés
Property Overview
MARSEILLE 2nd OFFICES FOR RENT In the heart of Euromediterranee, in the business district of Joliette, we offer a ground floor of 625 m² as well as a 1st floor of 385 m². OLBUR2418957 OFFICE RENTAL — MARSEILLE 13002 — ESPACE GAYMARD We offer offices located in the 2nd arrondissement of Marseille for rent. Located in the heart of one of the oldest cities in France, these offices are in an important district of the city, Joliette and more specifically within the Euromediterranean 1 business district. The offer includes partitioned offices, the possibility of creating a kitchen space, secure access with security, two parking spaces available at €1,700/unit/year excluding VAT. Building services: Reversible air conditioning Open space offices Private sanitary facilities Common outdoor space Inner garden PC security RJ 45 computer cabling Breeam Very Good certification Indoor parking (2 spaces available) This business district offers a pleasant and dynamic working environment with restaurant services, shops, sports activities, hotels... This setting is easily accessible thanks to public transport (M2, T2, T2, T3, 35, 45...) and nearby roads (A55 and A7). With quick access possible to the SNCF train station, the Airport or even cultural places such as the Mucem and the Major Cathedral. Accessibility: A7 and A55 motorways Marseille Provence SNCF station 7 mins away Marseille Provence bus station 7 mins away Marseille Provence airport 22 mins away Metro 2 Tramway T2 and T3 Bus 35, 45, 55, 49, 82...
- Banking
- Security System
- Wheelchair Accessible
- Reception
Property Facts
Presented by
"13002 Marseille"
Hmm, there seems to have been an error sending your message. Please try again.
Thanks! Your message was sent.


