Your email has been sent.
Mearns Rd - INDUSTRIAL LAND - Stover Industrial Park 4.28 - 4.39 Acre Industrial Land Lots Offered at $1,036,152 - $1,355,712 CAD Per Lot in Warminster, PA 18974



INVESTMENT HIGHLIGHTS
- Located In Stover Industrial Park
- Great Central Location
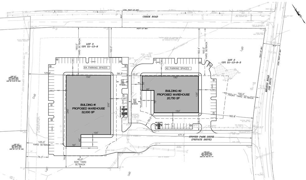
- Potential to Build Two 30,000+ SF Buildings on Two Lots or Combine Lots for One Larger Building
EXECUTIVE SUMMARY
PROPERTY FACTS
2 LOTS AVAILABLE
Lot Lot 2
| Price | $1,036,152 CAD | Lot Size | 4.39 AC |
| Price Per AC | $236,025.44 CAD |
| Price | $1,036,152 CAD |
| Price Per AC | $236,025.44 CAD |
| Lot Size | 4.39 AC |
Potential Industrial Building Size: 20,750; Water: Public water available; Sewer: Private (sand mound is required); Electric: PECO Electric & Gas at Site; Municipality: Warwick Township; The lot has frontage on Mearns Road and Creek Road.
Lot Lot 3
| Price | $1,355,712 CAD | Lot Size | 4.28 AC |
| Price Per AC | $316,755.25 CAD |
| Price | $1,355,712 CAD |
| Price Per AC | $316,755.25 CAD |
| Lot Size | 4.28 AC |
Proposed Industrial Building Size: 32,000; Water: Public water available; Sewer: Private (sand mound is required); Electric: PECO Electric & Gas at Site; Municipality: Warwick Township; The lot has frontage on Mearns Road and Creek Road.
DESCRIPTION
Located In Stover Industrial Park; Potential Opportunity to Build Two 30,000+ SF Buildings on Two Lots or Combine Lots for One Larger Building; Limited Industrial Zoning - Large Selection of Permitted Uses; Great Central Location: Easy Access to York Road (Route 263), 15 Minutes to PA Turnpike I-276, 20 Minutes to I-95, 1/2 Hour to New Jersey /Pennsylvania Border, Less Than One Hour to Philadelphia, Less Than Two Hours to New York City
PROPERTY TAXES
| Parcel Numbers | Improvements Assessment | $0 CAD | |
| Land Assessment | $55,113 CAD | Total Assessment | $55,113 CAD |
PROPERTY TAXES
Presented by
Mearns Rd - INDUSTRIAL LAND - Stover Industrial Park
Hmm, there seems to have been an error sending your message. Please try again.
Thanks! Your message was sent.
