Your email has been sent.
Mink Livsey Rd - 18.9 Acres Zoned OSC Gwinnett County 18.9 Acres of Residential Land Offered at $2,394,000 CAD in Snellville, GA 30039



Investment Highlights
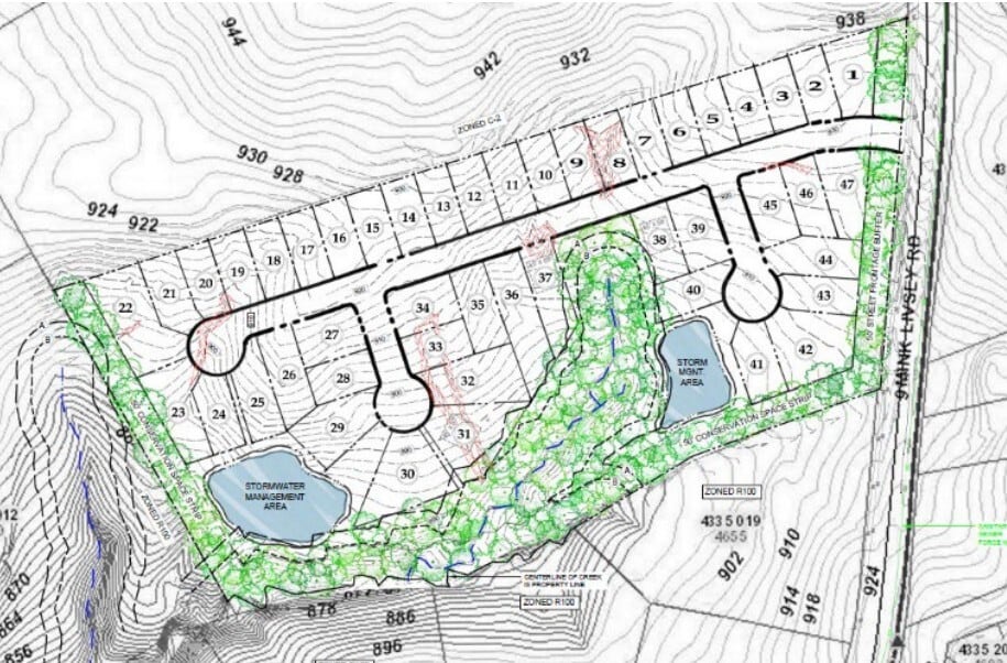
- Size: 18.9 acres of prime real estate approved for 45 single family detached homes
- Location: Ideally situated in a growing commercial corridor, with easy access to major highways and local amenities.
- Zoning: Open Space Community (OSC), providing flexibility for diverse developments.
- Accessibility: Excellent road frontage and proximity to public transport.
Executive Summary
Property Facts
1 Lot Available
Lot
| Price | $2,394,000 CAD | Lot Size | 18.90 AC |
| Price Per AC | $126,666.67 CAD |
| Price | $2,394,000 CAD |
| Price Per AC | $126,666.67 CAD |
| Lot Size | 18.90 AC |
This level parcel provides great access from Mink Livsey Rd. Adjoins new Crofton Place development being built by Chafin Communities.
Description
Located in the heart of Gwinnett County, this expansive 18.9-acre parcel offers a unique investment opportunity. Zoned Open Space Community (OSC), the land is approved for a 45-lot detached residential subdivision. Recently appraised for $2M. Ideally located in a growing commercial corridor in Snellville, with easy access to major highways and local amenities. Excellent road frontage and proximity to public transport. The subject has approximately 650 feet of frontage on Mink Livsey Road. The accessibility of the subject is good with access from one street, with the main entrance and primary point of ingress/egress being Mink Livsey Road. State Route 124 is a major transportation arterial with close proximity to the parcel, providing linkage to the surrounding area.
Presented by
Mink Livsey Rd - 18.9 Acres Zoned OSC Gwinnett County
Hmm, there seems to have been an error sending your message. Please try again.
Thanks! Your message was sent.

