Your email has been sent.
34090 Montpellier Flex Condo Units Offered at $503,991 CAD Per Unit



Some information has been automatically translated.
Description
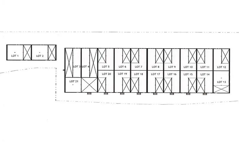
NOUVEAU ! À vendre : Locaux d'activités sur Lattes/Montpellier Sud Nous vous proposons des locaux d'activités à la vente dans un ensemble immobilier exceptionnel, idéalement situé à proximité de l'autoroute. Détails des lots : - Surface : À partir de 200 m², avec une surface totale disponible de 5 200 m². - Hauteur sous plafond (HSP) : 7 m (4 m sous mezzanine et 3 m au-dessus de la mezzanine). - Accès : Accès semi-remorque pour faciliter les opérations de chargement et déchargement. - Équipements : - Quai de déchargement mutualisé - Porte sectionnelle de 3,50 m x 3,50 m - 3 places de parking privatives par lotFlexibilité : Possibilité de division à partir de 200 m² avec option de fusion de plusieurs lots pour une superficie plus grande. Emplacement : Autoroute à seulement 3 minutes. Parking aérien devant les locaux Quelques lots encore disponibles ! Ne manquez pas cette opportunité unique. Contactez-nous pour plus d'informations ou pour organiser une visite. www.normantaylor.fr - Équipements : - Quai de déchargement mutualisé - Porte sectionnelle de 3,50 m x 3,50 m - 3 places de parking privatives par lot
9 Units Available
- Unit
- Unit Size
- Condo Use
- Price
- NOI
| Sale Type | Owner User | Agency Fee | 4.00% of sale price |
| Sale Type | Owner User |
| Agency Fee | 4.00% of sale price |
| Sale Type | Owner User | Agency Fee | 4.00% of sale price |
| Sale Type | Owner User |
| Agency Fee | 4.00% of sale price |
| Sale Type | Owner User | Agency Fee | 4.00% of sale price |
| Sale Type | Owner User |
| Agency Fee | 4.00% of sale price |
| Sale Type | Owner User | Agency Fee | 4.00% of sale price |
| Sale Type | Owner User |
| Agency Fee | 4.00% of sale price |
| Sale Type | Owner User | Agency Fee | 4.00% of sale price |
| Sale Type | Owner User |
| Agency Fee | 4.00% of sale price |
| Sale Type | Owner User | Agency Fee | 4.00% of sale price |
| Sale Type | Owner User |
| Agency Fee | 4.00% of sale price |
| Sale Type | Owner User | Agency Fee | 4.00% of sale price |
| Sale Type | Owner User |
| Agency Fee | 4.00% of sale price |
| Sale Type | Owner User | Agency Fee | 4.00% of sale price |
| Sale Type | Owner User |
| Agency Fee | 4.00% of sale price |
| Sale Type | Owner User | Agency Fee | 4.00% of sale price |
| Sale Type | Owner User |
| Agency Fee | 4.00% of sale price |
| Unit | Unit Size | Condo Use | Price | NOI |
| Unit 1 | 3,116 SF | Flex | $749,762 CAD ($240.62 CAD/SF) | - |
| Unit 4 | 2,587 SF | Flex | $630,788 CAD ($243.83 CAD/SF) | - |
| Unit 5 | 2,566 SF | Flex | $622,347 CAD ($242.54 CAD/SF) | - |
| Unit 7 | 2,622 SF | Flex | $630,788 CAD ($240.58 CAD/SF) | - |
| Unit 8 | 2,587 SF | Flex | $630,788 CAD ($243.83 CAD/SF) | - |
| Unit 9 | 2,587 SF | Flex | $630,788 CAD ($243.83 CAD/SF) | - |
| Unit 12 | 2,587 SF | Flex | $637,096 CAD ($246.27 CAD/SF) | - |
| Unit 16 | 2,579 SF | Flex | $628,571 CAD ($243.73 CAD/SF) | - |
| Unit 19 | 3,114 SF | Flex | $756,791 CAD ($243.03 CAD/SF) | - |
Unit 1
| Unit Size |
| 3,116 SF |
| Condo Use |
| Flex |
| Price |
| $749,762 CAD ($240.62 CAD/SF) |
| NOI |
| - |
Unit 4
| Unit Size |
| 2,587 SF |
| Condo Use |
| Flex |
| Price |
| $630,788 CAD ($243.83 CAD/SF) |
| NOI |
| - |
Unit 5
| Unit Size |
| 2,566 SF |
| Condo Use |
| Flex |
| Price |
| $622,347 CAD ($242.54 CAD/SF) |
| NOI |
| - |
Unit 7
| Unit Size |
| 2,622 SF |
| Condo Use |
| Flex |
| Price |
| $630,788 CAD ($240.58 CAD/SF) |
| NOI |
| - |
Unit 8
| Unit Size |
| 2,587 SF |
| Condo Use |
| Flex |
| Price |
| $630,788 CAD ($243.83 CAD/SF) |
| NOI |
| - |
Unit 9
| Unit Size |
| 2,587 SF |
| Condo Use |
| Flex |
| Price |
| $630,788 CAD ($243.83 CAD/SF) |
| NOI |
| - |
Unit 12
| Unit Size |
| 2,587 SF |
| Condo Use |
| Flex |
| Price |
| $637,096 CAD ($246.27 CAD/SF) |
| NOI |
| - |
Unit 16
| Unit Size |
| 2,579 SF |
| Condo Use |
| Flex |
| Price |
| $628,571 CAD ($243.73 CAD/SF) |
| NOI |
| - |
Unit 19
| Unit Size |
| 3,114 SF |
| Condo Use |
| Flex |
| Price |
| $756,791 CAD ($243.03 CAD/SF) |
| NOI |
| - |
Unit 1
| Unit Size | 3,116 SF |
| Condo Use | Flex |
| Price | $749,762 CAD ($240.62 CAD/SF) |
| NOI | - |
| Sale Type | Owner User |
| Agency Fee | 4.00% of sale price |
Unit 4
| Unit Size | 2,587 SF |
| Condo Use | Flex |
| Price | $630,788 CAD ($243.83 CAD/SF) |
| NOI | - |
| Sale Type | Owner User |
| Agency Fee | 4.00% of sale price |
Unit 5
| Unit Size | 2,566 SF |
| Condo Use | Flex |
| Price | $622,347 CAD ($242.54 CAD/SF) |
| NOI | - |
| Sale Type | Owner User |
| Agency Fee | 4.00% of sale price |
Unit 7
| Unit Size | 2,622 SF |
| Condo Use | Flex |
| Price | $630,788 CAD ($240.58 CAD/SF) |
| NOI | - |
| Sale Type | Owner User |
| Agency Fee | 4.00% of sale price |
Unit 8
| Unit Size | 2,587 SF |
| Condo Use | Flex |
| Price | $630,788 CAD ($243.83 CAD/SF) |
| NOI | - |
| Sale Type | Owner User |
| Agency Fee | 4.00% of sale price |
Unit 9
| Unit Size | 2,587 SF |
| Condo Use | Flex |
| Price | $630,788 CAD ($243.83 CAD/SF) |
| NOI | - |
| Sale Type | Owner User |
| Agency Fee | 4.00% of sale price |
Unit 12
| Unit Size | 2,587 SF |
| Condo Use | Flex |
| Price | $637,096 CAD ($246.27 CAD/SF) |
| NOI | - |
| Sale Type | Owner User |
| Agency Fee | 4.00% of sale price |
Unit 16
| Unit Size | 2,579 SF |
| Condo Use | Flex |
| Price | $628,571 CAD ($243.73 CAD/SF) |
| NOI | - |
| Sale Type | Owner User |
| Agency Fee | 4.00% of sale price |
Unit 19
| Unit Size | 3,114 SF |
| Condo Use | Flex |
| Price | $756,791 CAD ($243.03 CAD/SF) |
| NOI | - |
| Sale Type | Owner User |
| Agency Fee | 4.00% of sale price |
Property Facts
| Price | $503,991 CAD | Total Building Size | 55,951 SF |
| Unit Size | 2,566 - 3,116 SF | Property Type | Flex |
| No. Units | 9 |
| Price | $503,991 CAD |
| Unit Size | 2,566 - 3,116 SF |
| No. Units | 9 |
| Total Building Size | 55,951 SF |
| Property Type | Flex |
Presented by
"34090 Montpellier"
Hmm, there seems to have been an error sending your message. Please try again.
Thanks! Your message was sent.
