Log In/Sign Up
Your email has been sent.
Mount Holly Road Rd
Charlotte, NC 28214
Riverside Townhome Land · Land For Sale
·
32.25 AC


INVESTMENT HIGHLIGHTS
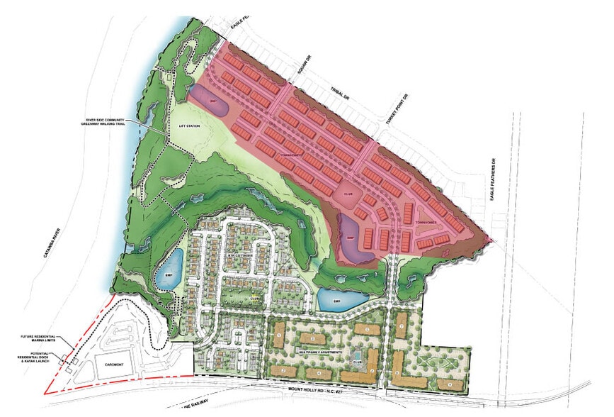
- Entitled- Approved for up to 258 TH Lots.
- Portion of larger master-planned community.
EXECUTIVE SUMMARY
Approx. 32.25 acres available for - approved TH development of up to 258 units. Represents a portion of the larger master-planned community with trails and Catawba River frontage.
PROPERTY FACTS Under Contract
| Sale Type | Investment or Owner User | Property Subtype | Residential |
| No. Lots | 1 | Proposed Use | |
| Property Type | Land | Total Lot Size | 32.25 AC |
| Zoning | I-1 - Mixed use | ||
| Sale Type | Investment or Owner User |
| No. Lots | 1 |
| Property Type | Land |
| Property Subtype | Residential |
| Proposed Use | |
| Total Lot Size | 32.25 AC |
| Zoning | I-1 - Mixed use |
1 LOT AVAILABLE
Lot
| Lot Size | 32.25 AC |
| Lot Size | 32.25 AC |
1 of 3
VIDEOS
MATTERPORT 3D EXTERIOR
MATTERPORT 3D TOUR
PHOTOS
STREET VIEW
STREET
MAP
