Log In/Sign Up
Your email has been sent.
INVESTMENT HIGHLIGHTS
- Freeway frontage, Fully Leased Industrial Portfolio
EXECUTIVE SUMMARY
Located directly adjacent between Highway 58 and East Brundage Lane. This property provides excellent freeway visibility and convenient access to Highway 99 which has recently been connected to Interstate 5. This industrial multi-tenant project creates excellent accessibility & freeway exposure for tenants and in turn resilient demand for investors. Additionally, the available yard space creates opportunity for further development or industrial outdoor storage capabilities. Priced competitively below replacement cost, 8%+ CAP Rate and exemplary exposure, makes this one of the most attractive industrial investment opportunities in the market!
DATA ROOM Click Here to Access
- Offering Memorandum
TAXES & OPERATING EXPENSES (ACTUAL - 2024) |
ANNUAL (CAD) |
|---|---|
| Gross Rental Income |
$981,276
|
| Other Income |
-
|
| Vacancy Loss |
-
|
| Effective Gross Income |
$981,276
|
| Taxes |
$106,729
|
| Operating Expenses |
$40,541
|
| Total Expenses |
$147,270
|
| Net Operating Income |
$834,006
|
TAXES & OPERATING EXPENSES (ACTUAL - 2024)
| Gross Rental Income (CAD) | |
|---|---|
| Annual | $981,276 |
| Other Income (CAD) | |
|---|---|
| Annual | - |
| Vacancy Loss (CAD) | |
|---|---|
| Annual | - |
| Effective Gross Income (CAD) | |
|---|---|
| Annual | $981,276 |
| Taxes (CAD) | |
|---|---|
| Annual | $106,729 |
| Operating Expenses (CAD) | |
|---|---|
| Annual | $40,541 |
| Total Expenses (CAD) | |
|---|---|
| Annual | $147,270 |
| Net Operating Income (CAD) | |
|---|---|
| Annual | $834,006 |
PROPERTY FACTS
| Price | $8,894,098 CAD | Number of Properties | 2 |
| Price / SF | $137.10 CAD / SF | Individually For Sale | 0 |
| Cap Rate | 9.38% | Total Building Size | 64,875 SF |
| Sale Type | Investment | Total Land Area | 3.85 AC |
| Status | Active |
| Price | $8,894,098 CAD |
| Price / SF | $137.10 CAD / SF |
| Cap Rate | 9.38% |
| Sale Type | Investment |
| Status | Active |
| Number of Properties | 2 |
| Individually For Sale | 0 |
| Total Building Size | 64,875 SF |
| Total Land Area | 3.85 AC |
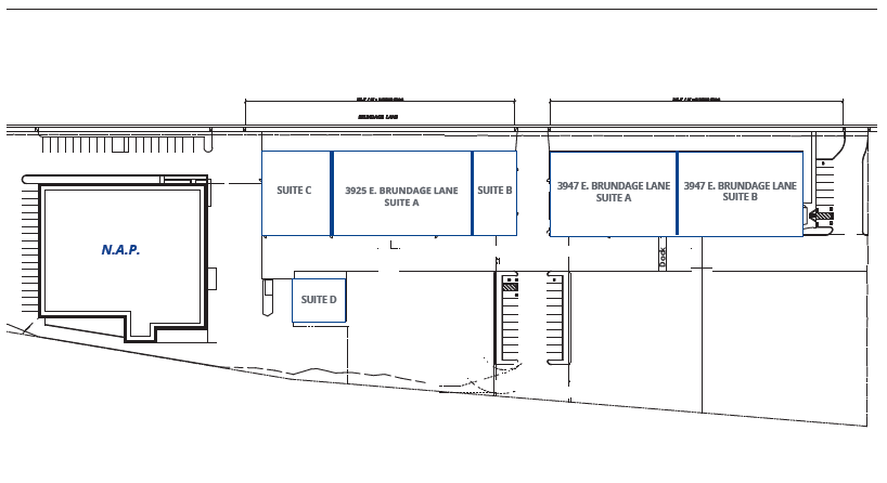
PROPERTIES
| PROPERTY NAME / ADDRESS | PROPERTY TYPE | SIZE | YEAR BUILT | INDIVIDUAL PRICE |
|---|---|---|---|---|
| 3925 E Brundage Ln, Bakersfield, CA 93307 | Industrial | 33,000 SF | 1986 | - |
| 3947 E Brundage Ln, Bakersfield, CA 93307 | Industrial | 31,875 SF | 1986 | - |
1 of 6
VIDEOS
MATTERPORT 3D EXTERIOR
MATTERPORT 3D TOUR
PHOTOS
STREET VIEW
STREET
MAP
Presented by
Multi-Tenant Office/Warehouse
Already a member? Log In
Hmm, there seems to have been an error sending your message. Please try again.
Thanks! Your message was sent.




