Log In/Sign Up
Your email has been sent.
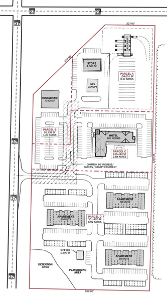
ND Highway 37 & ND Highway 23 - Parshall, ND 14.24 Acres 14.24 Acres of Commercial Land Offered at $784,438 CAD in Parshall, ND 58770



Investment Highlights
- On the corner of 2 State Highways
Executive Summary
14.24 acres (620,294.4 SF); $575,000; prime development land; mixed uses; utilities installed on ND State Highway 37 to ND State Highway 23; great visibility
Property Facts
1 Lot Available
Lot
| Price | $784,438 CAD | Lot Size | 14.24 AC |
| Price Per AC | $55,086.94 CAD |
| Price | $784,438 CAD |
| Price Per AC | $55,086.94 CAD |
| Lot Size | 14.24 AC |
Prime Development at the Intersection of ND Highways 23 & 37
Not walkable
10/100
Exceptionally drivable
100/100
Not bikeable
10/100
Property Taxes
| Parcel Number | 44-0011400 | Improvements Assessment | $0 CAD |
| Land Assessment | $63,233 CAD | Total Assessment | $63,233 CAD |
Property Taxes
Parcel Number
44-0011400
Land Assessment
$63,233 CAD
Improvements Assessment
$0 CAD
Total Assessment
$63,233 CAD
1 of 4
Videos
Matterport 3D Exterior
Matterport 3D Tour
Photos
Street View
Street
Map
Presented by
ND Highway 37 & ND Highway 23 - Parshall, ND 14.24 Acres
Already a member? Log In
Hmm, there seems to have been an error sending your message. Please try again.
Thanks! Your message was sent.

