Log In/Sign Up
Your email has been sent.
NW 27th Ave 8.77 Acres of Commercial Land Offered at $6,145,470 CAD in Ocala, FL 34475



Investment Highlights
- Wash Station
- Security Cameras
- Automatic Entrance Gate
- Fully Fenced Property
Executive Summary
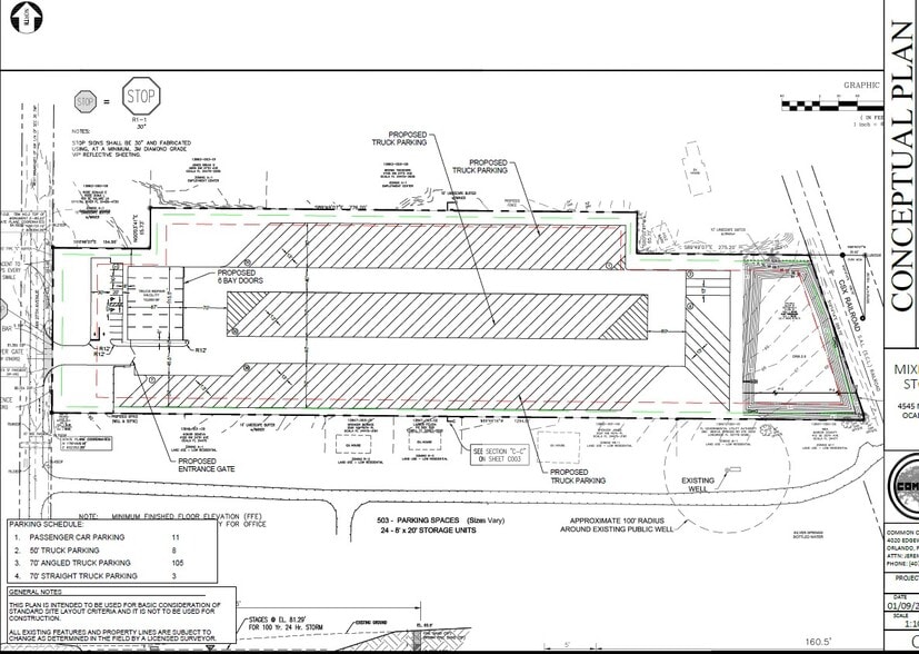
±8.77-Acre Income-Producing IOS | Owner-User Opportunity | Ocala, FL
Active industrial outdoor storage operation available for sale in a high-visibility Ocala location, just one mile from the new I-75 interchange. The ±8.77-acre M-1 zoned site is currently generating income through month-to-month RV, boat, and industrial outdoor storage tenants — all with 30-day termination clauses, giving a new owner immediate flexibility to expand operations or transition to owner-user occupancy.
The site features gated access, perimeter fencing, a wash station, and lighting — the core infrastructure for a turnkey IOS operation. Conceptual plans for a ±10,000 SF owner-user building are included, providing a clear path for a contractor, fleet operator, or industrial user looking to establish a permanent presence with significant yard capacity.
M-1 zoning supports a wide range of uses including warehousing, trucking terminals, storage yards, light manufacturing, contractor facilities, and more.
Rent roll and supporting documents available upon request.
Active industrial outdoor storage operation available for sale in a high-visibility Ocala location, just one mile from the new I-75 interchange. The ±8.77-acre M-1 zoned site is currently generating income through month-to-month RV, boat, and industrial outdoor storage tenants — all with 30-day termination clauses, giving a new owner immediate flexibility to expand operations or transition to owner-user occupancy.
The site features gated access, perimeter fencing, a wash station, and lighting — the core infrastructure for a turnkey IOS operation. Conceptual plans for a ±10,000 SF owner-user building are included, providing a clear path for a contractor, fleet operator, or industrial user looking to establish a permanent presence with significant yard capacity.
M-1 zoning supports a wide range of uses including warehousing, trucking terminals, storage yards, light manufacturing, contractor facilities, and more.
Rent roll and supporting documents available upon request.
Property Facts
1 Lot Available
Lot
| Price | $6,145,470 CAD | Lot Size | 8.77 AC |
| Price Per AC | $700,737.72 CAD |
| Price | $6,145,470 CAD |
| Price Per AC | $700,737.72 CAD |
| Lot Size | 8.77 AC |
Wash Station, Automatic Gate, and Security Cameras. Fully Fenced | ±8.77-AC M-1 zoned IOS site | 1 mile from new I-75 interchange | Active RV, boat & industrial storage income |
1 1
Somewhat walkable
20/100
Exceptionally drivable
90/100
Fairly bikeable
40/100
Property Taxes
| Parcel Number | 13829-000-00 | Improvements Assessment | $2,081,559 CAD |
| Land Assessment | $782,567 CAD | Total Assessment | $2,864,126 CAD |
Property Taxes
Parcel Number
13829-000-00
Land Assessment
$782,567 CAD
Improvements Assessment
$2,081,559 CAD
Total Assessment
$2,864,126 CAD
1 of 4
Videos
Matterport 3D Exterior
Matterport 3D Tour
Photos
Street View
Street
Map
1 of 1
Presented by
NW 27th Ave
Already a member? Log In
Hmm, there seems to have been an error sending your message. Please try again.
Thanks! Your message was sent.
