Your email has been sent.
92200 Neuilly-sur-Seine 1,937 SF Office Condo Unit Offered at $2,876,262 CAD

Some information has been automatically translated.
Description
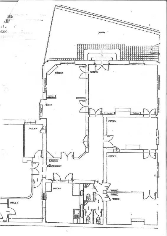
Ce que l'on aime : La proximité immédiate des transports en commun et des commerces. A 20 mètres de la ligne 1 (Porte Maillot) Le bel immeuble haussmannien sécurisé avec gardien Les deux entrées dont une indépendante La surface très lumineuse, et en bon état Le jardin privatif Possibilité profession libérale Ce que l'on aime : La proximité immédiate des transports en commun et des commerces. A 20 mètres de la ligne 1 (Porte Maillot) Le bel immeuble haussmannien sécurisé avec gardien Les deux entrées dont une indépendante La surface très lumineuse, et en bon état Le jardin privatif Possibilité profession libérale Ce que l'on aime : La proximité immédiate des transports en commun et des commerces. A 20 mètres de la ligne 1 (Porte Maillot) Le bel immeuble haussmannien sécurisé avec gardien Les deux entrées dont une indépendante La surface très lumineuse, et en bon état Le jardin privatif Possibilité profession libérale GROUPE BABYLONE vous propose : PRESTATION IMMEUBLE : Immeuble haussmannien Interphone Belles parties communes Double accès dont un accès indépendant Chauffage collectif Fibre optique Cave PRESTATIONS LOT : Surface en bon état Très belle hauteur sous plafond Moulures, cheminées Parquet Climatisation Baie de brassage Câblage RJ45 CONFIGURATION LOT : Nombreux bureaux cloisonnés Cuisine 3 sanitaires Petit jardinet privatif Surface RDC : 180 m²
Property Facts
| Price | $2,876,262 CAD | Property Type | Office (Condo) |
| Unit Size | 1,937 SF | Sale Type | Owner User |
| No. Units | 1 |
| Price | $2,876,262 CAD |
| Unit Size | 1,937 SF |
| No. Units | 1 |
| Property Type | Office (Condo) |
| Sale Type | Owner User |
1 Unit Available
| Unit Size | 1,937 SF | Condo Use | Office |
| Price | $2,876,262 CAD | Sale Type | Owner User |
| Price Per SF | $1,484.91 CAD |
| Unit Size | 1,937 SF |
| Price | $2,876,262 CAD |
| Price Per SF | $1,484.91 CAD |
| Condo Use | Office |
| Sale Type | Owner User |
Presented by
"92200 Neuilly-sur-Seine"
Hmm, there seems to have been an error sending your message. Please try again.
Thanks! Your message was sent.
