Your email has been sent.
Norwich Cmn 2,745 - 5,490 SF of Medical Space Available in Wymondham NR18 0SW



Highlights
- Newly built site
- Great road connectivity
- Plentiful parking
All Available Spaces(2)
Display Rental Rate as
- Space
- Size
- Term
- Rental Rate
- Space Use
- Build-Out
- Available
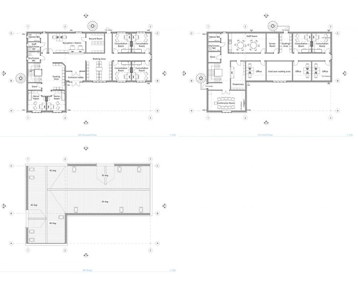
Elm Farm Business Park is an attractive, mixeduse business park with existing offices, 2 new terraces of small light industrial units (currently under construction) and a new doctors’ surgery. The new Medical Centre/Health Services building is currently under construction and will be Available from Q2 2024.
- Use Class: E
- Can be combined with additional space(s) for up to 5,490 SF of adjacent space
- Private Restrooms
- Nurses rooms
- Space is in Excellent Condition
- Reception Area
- Consultation rooms
- Staff admin and amenity facilities
Elm Farm Business Park is an attractive, mixeduse business park with existing offices, 2 new terraces of small light industrial units (currently under construction) and a new doctors’ surgery. The new Medical Centre/Health Services building is currently under construction and will be Available from Q2 2024.
- Use Class: E
- Can be combined with additional space(s) for up to 5,490 SF of adjacent space
- Private Restrooms
- Nurses rooms
- Space is in Excellent Condition
- Reception Area
- Consultation rooms
- Staff admin and amenity facilities
| Space | Size | Term | Rental Rate | Space Use | Build-Out | Available |
| Ground | 2,745 SF | Negotiable | Upon Request Upon Request Upon Request Upon Request | Medical | Shell Space | Now |
| 1st Floor | 2,745 SF | Negotiable | Upon Request Upon Request Upon Request Upon Request | Medical | Shell Space | Now |
Ground
| Size |
| 2,745 SF |
| Term |
| Negotiable |
| Rental Rate |
| Upon Request Upon Request Upon Request Upon Request |
| Space Use |
| Medical |
| Build-Out |
| Shell Space |
| Available |
| Now |
1st Floor
| Size |
| 2,745 SF |
| Term |
| Negotiable |
| Rental Rate |
| Upon Request Upon Request Upon Request Upon Request |
| Space Use |
| Medical |
| Build-Out |
| Shell Space |
| Available |
| Now |
Ground
| Size | 2,745 SF |
| Term | Negotiable |
| Rental Rate | Upon Request |
| Space Use | Medical |
| Build-Out | Shell Space |
| Available | Now |
Elm Farm Business Park is an attractive, mixeduse business park with existing offices, 2 new terraces of small light industrial units (currently under construction) and a new doctors’ surgery. The new Medical Centre/Health Services building is currently under construction and will be Available from Q2 2024.
- Use Class: E
- Space is in Excellent Condition
- Can be combined with additional space(s) for up to 5,490 SF of adjacent space
- Reception Area
- Private Restrooms
- Consultation rooms
- Nurses rooms
- Staff admin and amenity facilities
1st Floor
| Size | 2,745 SF |
| Term | Negotiable |
| Rental Rate | Upon Request |
| Space Use | Medical |
| Build-Out | Shell Space |
| Available | Now |
Elm Farm Business Park is an attractive, mixeduse business park with existing offices, 2 new terraces of small light industrial units (currently under construction) and a new doctors’ surgery. The new Medical Centre/Health Services building is currently under construction and will be Available from Q2 2024.
- Use Class: E
- Space is in Excellent Condition
- Can be combined with additional space(s) for up to 5,490 SF of adjacent space
- Reception Area
- Private Restrooms
- Consultation rooms
- Nurses rooms
- Staff admin and amenity facilities
About the Property
The Property is situated on the old A11 between Hethersett and Wymondham, approximately 6 miles west of Norwich and within 1.5 miles of the main trunk road (at Wymondham). The property therefore provides excellent access to the main A11 and from there to the Norwich southern Bypass.
Property Facts
| Total Space Available | 5,490 SF | Building Size | 5,490 SF |
| Property Type | Health Care | Year Built | 2024 |
| Property Subtype | Hospital |
| Total Space Available | 5,490 SF |
| Property Type | Health Care |
| Property Subtype | Hospital |
| Building Size | 5,490 SF |
| Year Built | 2024 |
Presented by
Norwich Cmn
Hmm, there seems to have been an error sending your message. Please try again.
Thanks! Your message was sent.



