Your email has been sent.
Highlights
- PENN 1 at One Penn Plaza presents a dramatic lobby with double-height ceilings surrounded by new landscaped plazas.
- 80,000-square-feet of flexible workspace, 20,000-square-feet of conference space, and 35,000-square-feet of wellness and fitness center.
- All new ground floor retail, including a curated grab & go, coffee bar, and multiple restaurant offerings.
- In the center of the PENN District, an environment where all types of professional and creative collaboration are not only possible but abundant.
- There is a full-service restaurant, bar, private dining rooms, a grand social staircase and bleacher seats, a tenant library, and work lounges.
All Available Spaces(23)
Display Rental Rate as
- Space
- Size
- Term
- Rental Rate
- Space Use
- Build-Out
- Available
Penn 1: Overview - https://vno.app.box.com/s/y6pwee1icu1shdklrbufbx7dq9wf0ko2 Punctuating the Manhattan skyline, PENN 1 is a Class A, 55-story tower of over 2.5 million square feet, providing breathtaking 360-degree views of the entire city and direct access to Penn Station and Moynihan Train Hall. We have completed a building-wide redevelopment of PENN 1 that includes over 140,000 square feet of amenities and all new retail, featuring a dramatic lobby with double-height ceilings surrounded by new landscaped plazas, a grand social stair and bleacher seats, a full-service restaurant, bar, and private dining rooms, all new ground floor retail including a curated grab & go, coffee bar and multiple restaurant offerings, a tenant library and work lounges, 80,000 square feet of flexible workspace, 20,000 square feet of conference space, a 53,000-square-foot Lifetime Fitness, and a pickleball center.
- Open Floor Plan Layout
- Central Air Conditioning
- Space is in Excellent Condition
- Space is raw.
- Listed rate may not include certain utilities, building services and property expenses
- Open Floor Plan Layout
- Partially Built-Out as Standard Office
- Listed rate may not include certain utilities, building services and property expenses
- 12 Workstations
- Partially Built-Out as Standard Office
- Listed rate may not include certain utilities, building services and property expenses
- 3 Private Offices
- 4 Workstations
- Fully Built-Out as Standard Office
- 1 Conference Room
Penn 1: Overview - https://vno.app.box.com/s/y6pwee1icu1shdklrbufbx7dq9wf0ko2 Punctuating the Manhattan skyline, PENN 1 is a Class A, 55-story tower of over 2.5 million square feet, providing breathtaking 360-degree views of the entire city and direct access to Penn Station and Moynihan Train Hall. We have completed a building-wide redevelopment of PENN 1 that includes over 140,000 square feet of amenities and all new retail, featuring a dramatic lobby with double-height ceilings surrounded by new landscaped plazas, a grand social stair and bleacher seats, a full-service restaurant, bar, and private dining rooms, all new ground floor retail including a curated grab & go, coffee bar and multiple restaurant offerings, a tenant library and work lounges, 80,000 square feet of flexible workspace, 20,000 square feet of conference space, a 53,000-square-foot Lifetime Fitness, and a pickleball center.
Penn 1: Overview - https://vno.app.box.com/s/y6pwee1icu1shdklrbufbx7dq9wf0ko2 Punctuating the Manhattan skyline, PENN 1 is a Class A, 55-story tower of over 2.5 million square feet, providing breathtaking 360-degree views of the entire city and direct access to Penn Station and Moynihan Train Hall. We have completed a building-wide redevelopment of PENN 1 that includes over 140,000 square feet of amenities and all new retail, featuring a dramatic lobby with double-height ceilings surrounded by new landscaped plazas, a grand social stair and bleacher seats, a full-service restaurant, bar, and private dining rooms, all new ground floor retail including a curated grab & go, coffee bar and multiple restaurant offerings, a tenant library and work lounges, 80,000 square feet of flexible workspace, 20,000 square feet of conference space, a 53,000-square-foot Lifetime Fitness, and a pickleball center.
- Partially Built-Out as Standard Office
- 2 Conference Rooms
- Private Restrooms
- 2 Private Offices
- 16 Workstations
- Listed rate may not include certain utilities, building services and property expenses
- Partially Built-Out as Standard Office
The 31st floor is partially available. Penn 1: Overview - https://vno.app.box.com/s/y6pwee1icu1shdklrbufbx7dq9wf0ko2 Punctuating the Manhattan skyline, PENN 1 is a Class A, 55-story tower of over 2.5 million square feet, providing breathtaking 360-degree views of the entire city and direct access to Penn Station and Moynihan Train Hall. We have completed a building-wide redevelopment of PENN 1 that includes over 140,000 square feet of amenities and all new retail, featuring a dramatic lobby with double-height ceilings surrounded by new landscaped plazas, a grand social stair and bleacher seats, a full-service restaurant, bar, and private dining rooms, all new ground floor retail including a curated grab & go, coffee bar and multiple restaurant offerings, a tenant library and work lounges, 80,000 square feet of flexible workspace, 20,000 square feet of conference space, a 53,000-square-foot Lifetime Fitness, and a pickleball center.
- Fully Built-Out as Standard Office
- Space is in Excellent Condition
- Mostly Open Floor Plan Layout
- Central Air Conditioning
Penn 1: Overview - https://vno.app.box.com/s/y6pwee1icu1shdklrbufbx7dq9wf0ko2 Punctuating the Manhattan skyline, PENN 1 is a Class A, 55-story tower of over 2.5 million square feet, providing breathtaking 360-degree views of the entire city and direct access to Penn Station and Moynihan Train Hall. We have completed a building-wide redevelopment of PENN 1 that includes over 140,000 square feet of amenities and all new retail, featuring a dramatic lobby with double-height ceilings surrounded by new landscaped plazas, a grand social stair and bleacher seats, a full-service restaurant, bar, and private dining rooms, all new ground floor retail including a curated grab & go, coffee bar and multiple restaurant offerings, a tenant library and work lounges, 80,000 square feet of flexible workspace, 20,000 square feet of conference space, a 53,000-square-foot Lifetime Fitness, and a pickleball center.
- Listed rate may not include certain utilities, building services and property expenses
Penn 1: Overview - https://vno.app.box.com/s/y6pwee1icu1shdklrbufbx7dq9wf0ko2 Punctuating the Manhattan skyline, PENN 1 is a Class A, 55-story tower of over 2.5 million square feet, providing breathtaking 360-degree views of the entire city and direct access to Penn Station and Moynihan Train Hall. We have completed a building-wide redevelopment of PENN 1 that includes over 140,000 square feet of amenities and all new retail, featuring a dramatic lobby with double-height ceilings surrounded by new landscaped plazas, a grand social stair and bleacher seats, a full-service restaurant, bar, and private dining rooms, all new ground floor retail including a curated grab & go, coffee bar and multiple restaurant offerings, a tenant library and work lounges, 80,000 square feet of flexible workspace, 20,000 square feet of conference space, a 53,000-square-foot Lifetime Fitness, and a pickleball center.
- Partially Built-Out as Standard Office
- Space is in Excellent Condition
- Central Air Conditioning
- Mostly Open Floor Plan Layout
- Can be combined with additional space(s) for up to 24,950 SF of adjacent space
- Partially built out space
Penn 1: Overview - https://vno.app.box.com/s/y6pwee1icu1shdklrbufbx7dq9wf0ko2 Punctuating the Manhattan skyline, PENN 1 is a Class A, 55-story tower of over 2.5 million square feet, providing breathtaking 360-degree views of the entire city and direct access to Penn Station and Moynihan Train Hall. We have completed a building-wide redevelopment of PENN 1 that includes over 140,000 square feet of amenities and all new retail, featuring a dramatic lobby with double-height ceilings surrounded by new landscaped plazas, a grand social stair and bleacher seats, a full-service restaurant, bar, and private dining rooms, all new ground floor retail including a curated grab & go, coffee bar and multiple restaurant offerings, a tenant library and work lounges, 80,000 square feet of flexible workspace, 20,000 square feet of conference space, a 53,000-square-foot Lifetime Fitness, and a pickleball center.
- Partially Built-Out as Standard Office
- Space is in Excellent Condition
- Central Air Conditioning
- Mostly Open Floor Plan Layout
- Can be combined with additional space(s) for up to 24,950 SF of adjacent space
Penn 1: Overview - https://vno.app.box.com/s/y6pwee1icu1shdklrbufbx7dq9wf0ko2 Punctuating the Manhattan skyline, PENN 1 is a Class A, 55-story tower of over 2.5 million square feet, providing breathtaking 360-degree views of the entire city and direct access to Penn Station and Moynihan Train Hall. We have completed a building-wide redevelopment of PENN 1 that includes over 140,000 square feet of amenities and all new retail, featuring a dramatic lobby with double-height ceilings surrounded by new landscaped plazas, a grand social stair and bleacher seats, a full-service restaurant, bar, and private dining rooms, all new ground floor retail including a curated grab & go, coffee bar and multiple restaurant offerings, a tenant library and work lounges, 80,000 square feet of flexible workspace, 20,000 square feet of conference space, a 53,000-square-foot Lifetime Fitness, and a pickleball center.
- Listed rate may not include certain utilities, building services and property expenses
- Can be combined with additional space(s) for up to 24,950 SF of adjacent space
Penn 1: Overview - https://vno.app.box.com/s/y6pwee1icu1shdklrbufbx7dq9wf0ko2 Punctuating the Manhattan skyline, PENN 1 is a Class A, 55-story tower of over 2.5 million square feet, providing breathtaking 360-degree views of the entire city and direct access to Penn Station and Moynihan Train Hall. We have completed a building-wide redevelopment of PENN 1 that includes over 140,000 square feet of amenities and all new retail, featuring a dramatic lobby with double-height ceilings surrounded by new landscaped plazas, a grand social stair and bleacher seats, a full-service restaurant, bar, and private dining rooms, all new ground floor retail including a curated grab & go, coffee bar and multiple restaurant offerings, a tenant library and work lounges, 80,000 square feet of flexible workspace, 20,000 square feet of conference space, a 53,000-square-foot Lifetime Fitness, and a pickleball center.
- Listed rate may not include certain utilities, building services and property expenses
Penn 1: Overview - https://vno.app.box.com/s/y6pwee1icu1shdklrbufbx7dq9wf0ko2 Punctuating the Manhattan skyline, PENN 1 is a Class A, 55-story tower of over 2.5 million square feet, providing breathtaking 360-degree views of the entire city and direct access to Penn Station and Moynihan Train Hall. We have completed a building-wide redevelopment of PENN 1 that includes over 140,000 square feet of amenities and all new retail, featuring a dramatic lobby with double-height ceilings surrounded by new landscaped plazas, a grand social stair and bleacher seats, a full-service restaurant, bar, and private dining rooms, all new ground floor retail including a curated grab & go, coffee bar and multiple restaurant offerings, a tenant library and work lounges, 80,000 square feet of flexible workspace, 20,000 square feet of conference space, a 53,000-square-foot Lifetime Fitness, and a pickleball center.
- Mostly Open Floor Plan Layout
- 2 Conference Rooms
- Space is in Excellent Condition
- 3 Private Offices
- 16 Workstations
- Listed rate may not include certain utilities, building services and property expenses
- 2 Private Offices
- 8 Workstations
- Fully Built-Out as Standard Office
- 2 Conference Rooms
- Listed rate may not include certain utilities, building services and property expenses
- Partially Built-Out as Standard Office
The 42nd floor is partially available. Penn 1: Overview - https://vno.app.box.com/s/y6pwee1icu1shdklrbufbx7dq9wf0ko2 Punctuating the Manhattan skyline, PENN 1 is a Class A, 55-story tower of over 2.5 million square feet, providing breathtaking 360-degree views of the entire city and direct access to Penn Station and Moynihan Train Hall. We have completed a building-wide redevelopment of PENN 1 that includes over 140,000 square feet of amenities and all new retail, featuring a dramatic lobby with double-height ceilings surrounded by new landscaped plazas, a grand social stair and bleacher seats, a full-service restaurant, bar, and private dining rooms, all new ground floor retail including a curated grab & go, coffee bar and multiple restaurant offerings, a tenant library and work lounges, 80,000 square feet of flexible workspace, 20,000 square feet of conference space, a 53,000-square-foot Lifetime Fitness, and a pickleball center.
- Partially Built-Out as Standard Office
- Space is in Excellent Condition
- Corner offices give natural light
- Mostly Open Floor Plan Layout
- Central Air Conditioning
Penn 1: Overview - https://vno.app.box.com/s/y6pwee1icu1shdklrbufbx7dq9wf0ko2 Punctuating the Manhattan skyline, PENN 1 is a Class A, 55-story tower of over 2.5 million square feet, providing breathtaking 360-degree views of the entire city and direct access to Penn Station and Moynihan Train Hall. We have completed a building-wide redevelopment of PENN 1 that includes over 140,000 square feet of amenities and all new retail, featuring a dramatic lobby with double-height ceilings surrounded by new landscaped plazas, a grand social stair and bleacher seats, a full-service restaurant, bar, and private dining rooms, all new ground floor retail including a curated grab & go, coffee bar and multiple restaurant offerings, a tenant library and work lounges, 80,000 square feet of flexible workspace, 20,000 square feet of conference space, a 53,000-square-foot Lifetime Fitness, and a pickleball center.
- Listed rate may not include certain utilities, building services and property expenses
This space is raw. Penn 1: Overview - https://vno.app.box.com/s/y6pwee1icu1shdklrbufbx7dq9wf0ko2 Punctuating the Manhattan skyline, PENN 1 is a Class A, 55-story tower of over 2.5 million square feet, providing breathtaking 360-degree views of the entire city and direct access to Penn Station and Moynihan Train Hall. We have completed a building-wide redevelopment of PENN 1 that includes over 140,000 square feet of amenities and all new retail, featuring a dramatic lobby with double-height ceilings surrounded by new landscaped plazas, a grand social stair and bleacher seats, a full-service restaurant, bar, and private dining rooms, all new ground floor retail including a curated grab & go, coffee bar and multiple restaurant offerings, a tenant library and work lounges, 80,000 square feet of flexible workspace, 20,000 square feet of conference space, a 53,000-square-foot Lifetime Fitness, and a pickleball center.
- Open Floor Plan Layout
- Can be combined with additional space(s) for up to 24,632 SF of adjacent space
- Space is raw.
- Space is in Excellent Condition
- Central Air Conditioning
This space is raw. Penn 1: Overview - https://vno.app.box.com/s/y6pwee1icu1shdklrbufbx7dq9wf0ko2 Punctuating the Manhattan skyline, PENN 1 is a Class A, 55-story tower of over 2.5 million square feet, providing breathtaking 360-degree views of the entire city and direct access to Penn Station and Moynihan Train Hall. We have completed a building-wide redevelopment of PENN 1 that includes over 140,000 square feet of amenities and all new retail, featuring a dramatic lobby with double-height ceilings surrounded by new landscaped plazas, a grand social stair and bleacher seats, a full-service restaurant, bar, and private dining rooms, all new ground floor retail including a curated grab & go, coffee bar and multiple restaurant offerings, a tenant library and work lounges, 80,000 square feet of flexible workspace, 20,000 square feet of conference space, a 53,000-square-foot Lifetime Fitness, and a pickleball center.
- Open Floor Plan Layout
- Can be combined with additional space(s) for up to 24,632 SF of adjacent space
- Space is raw.
- Space is in Excellent Condition
- Central Air Conditioning
This space is raw. Penn 1: Overview - https://vno.app.box.com/s/y6pwee1icu1shdklrbufbx7dq9wf0ko2 Punctuating the Manhattan skyline, PENN 1 is a Class A, 55-story tower of over 2.5 million square feet, providing breathtaking 360-degree views of the entire city and direct access to Penn Station and Moynihan Train Hall. We have completed a building-wide redevelopment of PENN 1 that includes over 140,000 square feet of amenities and all new retail, featuring a dramatic lobby with double-height ceilings surrounded by new landscaped plazas, a grand social stair and bleacher seats, a full-service restaurant, bar, and private dining rooms, all new ground floor retail including a curated grab & go, coffee bar and multiple restaurant offerings, a tenant library and work lounges, 80,000 square feet of flexible workspace, 20,000 square feet of conference space, a 53,000-square-foot Lifetime Fitness, and a pickleball center.
- Open Floor Plan Layout
- Can be combined with additional space(s) for up to 24,632 SF of adjacent space
- Space is raw.
- Space is in Excellent Condition
- Central Air Conditioning
This space is raw. Penn 1: Overview - https://vno.app.box.com/s/y6pwee1icu1shdklrbufbx7dq9wf0ko2 Punctuating the Manhattan skyline, PENN 1 is a Class A, 55-story tower of over 2.5 million square feet, providing breathtaking 360-degree views of the entire city and direct access to Penn Station and Moynihan Train Hall. We have completed a building-wide redevelopment of PENN 1 that includes over 140,000 square feet of amenities and all new retail, featuring a dramatic lobby with double-height ceilings surrounded by new landscaped plazas, a grand social stair and bleacher seats, a full-service restaurant, bar, and private dining rooms, all new ground floor retail including a curated grab & go, coffee bar and multiple restaurant offerings, a tenant library and work lounges, 80,000 square feet of flexible workspace, 20,000 square feet of conference space, a 53,000-square-foot Lifetime Fitness, and a pickleball center.
- Open Floor Plan Layout
- Central Air Conditioning
- Space is in Excellent Condition
- Space is raw.
Penn 1: Overview - https://vno.app.box.com/s/y6pwee1icu1shdklrbufbx7dq9wf0ko2 Punctuating the Manhattan skyline, PENN 1 is a Class A, 55-story tower of over 2.5 million square feet, providing breathtaking 360-degree views of the entire city and direct access to Penn Station and Moynihan Train Hall. We have completed a building-wide redevelopment of PENN 1 that includes over 140,000 square feet of amenities and all new retail, featuring a dramatic lobby with double-height ceilings surrounded by new landscaped plazas, a grand social stair and bleacher seats, a full-service restaurant, bar, and private dining rooms, all new ground floor retail including a curated grab & go, coffee bar and multiple restaurant offerings, a tenant library and work lounges, 80,000 square feet of flexible workspace, 20,000 square feet of conference space, a 53,000-square-foot Lifetime Fitness, and a pickleball center.
- Listed rate may not include certain utilities, building services and property expenses
| Space | Size | Term | Rental Rate | Space Use | Build-Out | Available |
| 6th Floor | 8,699 SF | Negotiable | Upon Request Upon Request Upon Request Upon Request | Office | Full Build-Out | Now |
| 8th Floor | 61,346 SF | Negotiable | Upon Request Upon Request Upon Request Upon Request | Office | Partial Build-Out | 30 Days |
| 14th Floor | 1,361 SF | Negotiable | Upon Request Upon Request Upon Request Upon Request | Office | Partial Build-Out | 30 Days |
| 16th Floor | 2,762 SF | Negotiable | Upon Request Upon Request Upon Request Upon Request | Office | Full Build-Out | 2026-12-01 |
| 18th Floor | 5,537 SF | Negotiable | Upon Request Upon Request Upon Request Upon Request | Office | - | Now |
| 18th Floor | 4,104 SF | Negotiable | Upon Request Upon Request Upon Request Upon Request | Office | Partial Build-Out | Now |
| 22nd Floor | 3,470 SF | Negotiable | Upon Request Upon Request Upon Request Upon Request | Office | Partial Build-Out | 30 Days |
| 31st Floor | 4,734 SF | Negotiable | Upon Request Upon Request Upon Request Upon Request | Office | Full Build-Out | Now |
| 31st Floor | 17,665 SF | Negotiable | Upon Request Upon Request Upon Request Upon Request | Office | - | Now |
| 32nd Floor | 12,142 SF | Negotiable | Upon Request Upon Request Upon Request Upon Request | Office | Partial Build-Out | Now |
| 32nd Floor | 8,114 SF | Negotiable | Upon Request Upon Request Upon Request Upon Request | Office | Partial Build-Out | Now |
| 32nd Floor | 4,694 SF | Negotiable | Upon Request Upon Request Upon Request Upon Request | Office | - | Now |
| 33rd Floor | 7,234 SF | Negotiable | Upon Request Upon Request Upon Request Upon Request | Office | - | Now |
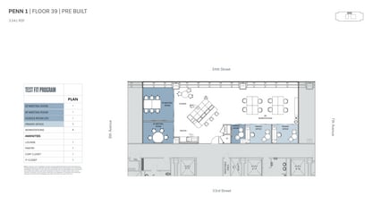
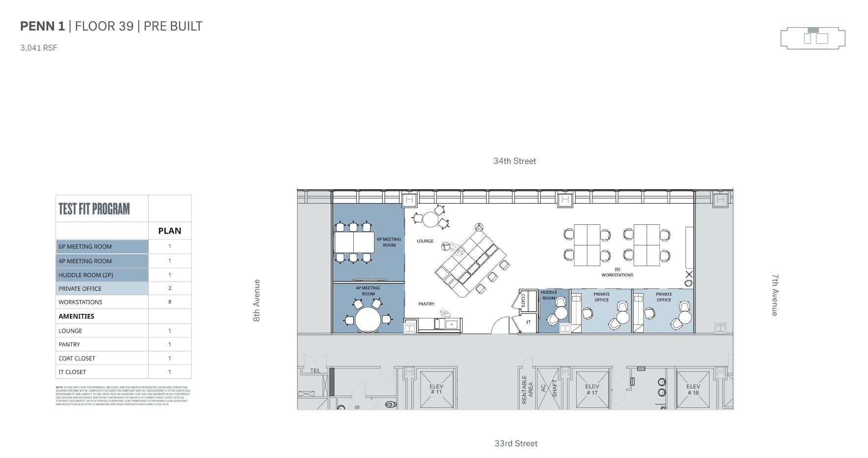
| 39th Floor | 3,948 SF | Negotiable | Upon Request Upon Request Upon Request Upon Request | Office | - | Now |
| 39th Floor, Ste 3911 | 3,075 SF | Negotiable | Upon Request Upon Request Upon Request Upon Request | Office | Full Build-Out | 2026-11-01 |
| 40th Floor | 20,069 SF | Negotiable | Upon Request Upon Request Upon Request Upon Request | Office | Partial Build-Out | 30 Days |
| 42nd Floor | 12,315 SF | Negotiable | Upon Request Upon Request Upon Request Upon Request | Office | Partial Build-Out | Now |
| 44th Floor | 15,437 SF | Negotiable | Upon Request Upon Request Upon Request Upon Request | Office | - | Now |
| 47th Floor | 7,744 SF | Negotiable | Upon Request Upon Request Upon Request Upon Request | Office | Shell Space | Now |
| 47th Floor | 9,392 SF | Negotiable | Upon Request Upon Request Upon Request Upon Request | Office | Shell Space | Now |
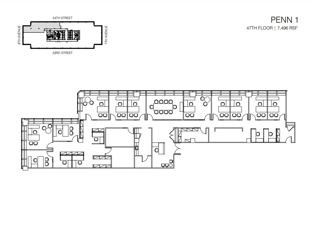
| 47th Floor | 7,496 SF | Negotiable | Upon Request Upon Request Upon Request Upon Request | Office | Shell Space | Now |
| 51st Floor | 19,004 SF | Negotiable | Upon Request Upon Request Upon Request Upon Request | Office | Shell Space | Now |
| 53rd Floor | 2,077 SF | Negotiable | Upon Request Upon Request Upon Request Upon Request | Office | - | Now |
6th Floor
| Size |
| 8,699 SF |
| Term |
| Negotiable |
| Rental Rate |
| Upon Request Upon Request Upon Request Upon Request |
| Space Use |
| Office |
| Build-Out |
| Full Build-Out |
| Available |
| Now |
8th Floor
| Size |
| 61,346 SF |
| Term |
| Negotiable |
| Rental Rate |
| Upon Request Upon Request Upon Request Upon Request |
| Space Use |
| Office |
| Build-Out |
| Partial Build-Out |
| Available |
| 30 Days |
14th Floor
| Size |
| 1,361 SF |
| Term |
| Negotiable |
| Rental Rate |
| Upon Request Upon Request Upon Request Upon Request |
| Space Use |
| Office |
| Build-Out |
| Partial Build-Out |
| Available |
| 30 Days |
16th Floor
| Size |
| 2,762 SF |
| Term |
| Negotiable |
| Rental Rate |
| Upon Request Upon Request Upon Request Upon Request |
| Space Use |
| Office |
| Build-Out |
| Full Build-Out |
| Available |
| 2026-12-01 |
18th Floor
| Size |
| 5,537 SF |
| Term |
| Negotiable |
| Rental Rate |
| Upon Request Upon Request Upon Request Upon Request |
| Space Use |
| Office |
| Build-Out |
| - |
| Available |
| Now |
18th Floor
| Size |
| 4,104 SF |
| Term |
| Negotiable |
| Rental Rate |
| Upon Request Upon Request Upon Request Upon Request |
| Space Use |
| Office |
| Build-Out |
| Partial Build-Out |
| Available |
| Now |
22nd Floor
| Size |
| 3,470 SF |
| Term |
| Negotiable |
| Rental Rate |
| Upon Request Upon Request Upon Request Upon Request |
| Space Use |
| Office |
| Build-Out |
| Partial Build-Out |
| Available |
| 30 Days |
31st Floor
| Size |
| 4,734 SF |
| Term |
| Negotiable |
| Rental Rate |
| Upon Request Upon Request Upon Request Upon Request |
| Space Use |
| Office |
| Build-Out |
| Full Build-Out |
| Available |
| Now |
31st Floor
| Size |
| 17,665 SF |
| Term |
| Negotiable |
| Rental Rate |
| Upon Request Upon Request Upon Request Upon Request |
| Space Use |
| Office |
| Build-Out |
| - |
| Available |
| Now |
32nd Floor
| Size |
| 12,142 SF |
| Term |
| Negotiable |
| Rental Rate |
| Upon Request Upon Request Upon Request Upon Request |
| Space Use |
| Office |
| Build-Out |
| Partial Build-Out |
| Available |
| Now |
32nd Floor
| Size |
| 8,114 SF |
| Term |
| Negotiable |
| Rental Rate |
| Upon Request Upon Request Upon Request Upon Request |
| Space Use |
| Office |
| Build-Out |
| Partial Build-Out |
| Available |
| Now |
32nd Floor
| Size |
| 4,694 SF |
| Term |
| Negotiable |
| Rental Rate |
| Upon Request Upon Request Upon Request Upon Request |
| Space Use |
| Office |
| Build-Out |
| - |
| Available |
| Now |
33rd Floor
| Size |
| 7,234 SF |
| Term |
| Negotiable |
| Rental Rate |
| Upon Request Upon Request Upon Request Upon Request |
| Space Use |
| Office |
| Build-Out |
| - |
| Available |
| Now |
39th Floor
| Size |
| 3,948 SF |
| Term |
| Negotiable |
| Rental Rate |
| Upon Request Upon Request Upon Request Upon Request |
| Space Use |
| Office |
| Build-Out |
| - |
| Available |
| Now |
39th Floor, Ste 3911
| Size |
| 3,075 SF |
| Term |
| Negotiable |
| Rental Rate |
| Upon Request Upon Request Upon Request Upon Request |
| Space Use |
| Office |
| Build-Out |
| Full Build-Out |
| Available |
| 2026-11-01 |
40th Floor
| Size |
| 20,069 SF |
| Term |
| Negotiable |
| Rental Rate |
| Upon Request Upon Request Upon Request Upon Request |
| Space Use |
| Office |
| Build-Out |
| Partial Build-Out |
| Available |
| 30 Days |
42nd Floor
| Size |
| 12,315 SF |
| Term |
| Negotiable |
| Rental Rate |
| Upon Request Upon Request Upon Request Upon Request |
| Space Use |
| Office |
| Build-Out |
| Partial Build-Out |
| Available |
| Now |
44th Floor
| Size |
| 15,437 SF |
| Term |
| Negotiable |
| Rental Rate |
| Upon Request Upon Request Upon Request Upon Request |
| Space Use |
| Office |
| Build-Out |
| - |
| Available |
| Now |
47th Floor
| Size |
| 7,744 SF |
| Term |
| Negotiable |
| Rental Rate |
| Upon Request Upon Request Upon Request Upon Request |
| Space Use |
| Office |
| Build-Out |
| Shell Space |
| Available |
| Now |
47th Floor
| Size |
| 9,392 SF |
| Term |
| Negotiable |
| Rental Rate |
| Upon Request Upon Request Upon Request Upon Request |
| Space Use |
| Office |
| Build-Out |
| Shell Space |
| Available |
| Now |
47th Floor
| Size |
| 7,496 SF |
| Term |
| Negotiable |
| Rental Rate |
| Upon Request Upon Request Upon Request Upon Request |
| Space Use |
| Office |
| Build-Out |
| Shell Space |
| Available |
| Now |
51st Floor
| Size |
| 19,004 SF |
| Term |
| Negotiable |
| Rental Rate |
| Upon Request Upon Request Upon Request Upon Request |
| Space Use |
| Office |
| Build-Out |
| Shell Space |
| Available |
| Now |
53rd Floor
| Size |
| 2,077 SF |
| Term |
| Negotiable |
| Rental Rate |
| Upon Request Upon Request Upon Request Upon Request |
| Space Use |
| Office |
| Build-Out |
| - |
| Available |
| Now |
6th Floor
| Size | 8,699 SF |
| Term | Negotiable |
| Rental Rate | Upon Request |
| Space Use | Office |
| Build-Out | Full Build-Out |
| Available | Now |
Penn 1: Overview - https://vno.app.box.com/s/y6pwee1icu1shdklrbufbx7dq9wf0ko2 Punctuating the Manhattan skyline, PENN 1 is a Class A, 55-story tower of over 2.5 million square feet, providing breathtaking 360-degree views of the entire city and direct access to Penn Station and Moynihan Train Hall. We have completed a building-wide redevelopment of PENN 1 that includes over 140,000 square feet of amenities and all new retail, featuring a dramatic lobby with double-height ceilings surrounded by new landscaped plazas, a grand social stair and bleacher seats, a full-service restaurant, bar, and private dining rooms, all new ground floor retail including a curated grab & go, coffee bar and multiple restaurant offerings, a tenant library and work lounges, 80,000 square feet of flexible workspace, 20,000 square feet of conference space, a 53,000-square-foot Lifetime Fitness, and a pickleball center.
- Open Floor Plan Layout
- Space is in Excellent Condition
- Central Air Conditioning
- Space is raw.
8th Floor
| Size | 61,346 SF |
| Term | Negotiable |
| Rental Rate | Upon Request |
| Space Use | Office |
| Build-Out | Partial Build-Out |
| Available | 30 Days |
- Listed rate may not include certain utilities, building services and property expenses
- Partially Built-Out as Standard Office
- Open Floor Plan Layout
14th Floor
| Size | 1,361 SF |
| Term | Negotiable |
| Rental Rate | Upon Request |
| Space Use | Office |
| Build-Out | Partial Build-Out |
| Available | 30 Days |
- Listed rate may not include certain utilities, building services and property expenses
- Partially Built-Out as Standard Office
- 12 Workstations
16th Floor
| Size | 2,762 SF |
| Term | Negotiable |
| Rental Rate | Upon Request |
| Space Use | Office |
| Build-Out | Full Build-Out |
| Available | 2026-12-01 |
- Listed rate may not include certain utilities, building services and property expenses
- Fully Built-Out as Standard Office
- 3 Private Offices
- 1 Conference Room
- 4 Workstations
18th Floor
| Size | 5,537 SF |
| Term | Negotiable |
| Rental Rate | Upon Request |
| Space Use | Office |
| Build-Out | - |
| Available | Now |
Penn 1: Overview - https://vno.app.box.com/s/y6pwee1icu1shdklrbufbx7dq9wf0ko2 Punctuating the Manhattan skyline, PENN 1 is a Class A, 55-story tower of over 2.5 million square feet, providing breathtaking 360-degree views of the entire city and direct access to Penn Station and Moynihan Train Hall. We have completed a building-wide redevelopment of PENN 1 that includes over 140,000 square feet of amenities and all new retail, featuring a dramatic lobby with double-height ceilings surrounded by new landscaped plazas, a grand social stair and bleacher seats, a full-service restaurant, bar, and private dining rooms, all new ground floor retail including a curated grab & go, coffee bar and multiple restaurant offerings, a tenant library and work lounges, 80,000 square feet of flexible workspace, 20,000 square feet of conference space, a 53,000-square-foot Lifetime Fitness, and a pickleball center.
18th Floor
| Size | 4,104 SF |
| Term | Negotiable |
| Rental Rate | Upon Request |
| Space Use | Office |
| Build-Out | Partial Build-Out |
| Available | Now |
Penn 1: Overview - https://vno.app.box.com/s/y6pwee1icu1shdklrbufbx7dq9wf0ko2 Punctuating the Manhattan skyline, PENN 1 is a Class A, 55-story tower of over 2.5 million square feet, providing breathtaking 360-degree views of the entire city and direct access to Penn Station and Moynihan Train Hall. We have completed a building-wide redevelopment of PENN 1 that includes over 140,000 square feet of amenities and all new retail, featuring a dramatic lobby with double-height ceilings surrounded by new landscaped plazas, a grand social stair and bleacher seats, a full-service restaurant, bar, and private dining rooms, all new ground floor retail including a curated grab & go, coffee bar and multiple restaurant offerings, a tenant library and work lounges, 80,000 square feet of flexible workspace, 20,000 square feet of conference space, a 53,000-square-foot Lifetime Fitness, and a pickleball center.
- Partially Built-Out as Standard Office
- 2 Private Offices
- 2 Conference Rooms
- 16 Workstations
- Private Restrooms
22nd Floor
| Size | 3,470 SF |
| Term | Negotiable |
| Rental Rate | Upon Request |
| Space Use | Office |
| Build-Out | Partial Build-Out |
| Available | 30 Days |
- Listed rate may not include certain utilities, building services and property expenses
- Partially Built-Out as Standard Office
31st Floor
| Size | 4,734 SF |
| Term | Negotiable |
| Rental Rate | Upon Request |
| Space Use | Office |
| Build-Out | Full Build-Out |
| Available | Now |
The 31st floor is partially available. Penn 1: Overview - https://vno.app.box.com/s/y6pwee1icu1shdklrbufbx7dq9wf0ko2 Punctuating the Manhattan skyline, PENN 1 is a Class A, 55-story tower of over 2.5 million square feet, providing breathtaking 360-degree views of the entire city and direct access to Penn Station and Moynihan Train Hall. We have completed a building-wide redevelopment of PENN 1 that includes over 140,000 square feet of amenities and all new retail, featuring a dramatic lobby with double-height ceilings surrounded by new landscaped plazas, a grand social stair and bleacher seats, a full-service restaurant, bar, and private dining rooms, all new ground floor retail including a curated grab & go, coffee bar and multiple restaurant offerings, a tenant library and work lounges, 80,000 square feet of flexible workspace, 20,000 square feet of conference space, a 53,000-square-foot Lifetime Fitness, and a pickleball center.
- Fully Built-Out as Standard Office
- Mostly Open Floor Plan Layout
- Space is in Excellent Condition
- Central Air Conditioning
31st Floor
| Size | 17,665 SF |
| Term | Negotiable |
| Rental Rate | Upon Request |
| Space Use | Office |
| Build-Out | - |
| Available | Now |
Penn 1: Overview - https://vno.app.box.com/s/y6pwee1icu1shdklrbufbx7dq9wf0ko2 Punctuating the Manhattan skyline, PENN 1 is a Class A, 55-story tower of over 2.5 million square feet, providing breathtaking 360-degree views of the entire city and direct access to Penn Station and Moynihan Train Hall. We have completed a building-wide redevelopment of PENN 1 that includes over 140,000 square feet of amenities and all new retail, featuring a dramatic lobby with double-height ceilings surrounded by new landscaped plazas, a grand social stair and bleacher seats, a full-service restaurant, bar, and private dining rooms, all new ground floor retail including a curated grab & go, coffee bar and multiple restaurant offerings, a tenant library and work lounges, 80,000 square feet of flexible workspace, 20,000 square feet of conference space, a 53,000-square-foot Lifetime Fitness, and a pickleball center.
- Listed rate may not include certain utilities, building services and property expenses
32nd Floor
| Size | 12,142 SF |
| Term | Negotiable |
| Rental Rate | Upon Request |
| Space Use | Office |
| Build-Out | Partial Build-Out |
| Available | Now |
Penn 1: Overview - https://vno.app.box.com/s/y6pwee1icu1shdklrbufbx7dq9wf0ko2 Punctuating the Manhattan skyline, PENN 1 is a Class A, 55-story tower of over 2.5 million square feet, providing breathtaking 360-degree views of the entire city and direct access to Penn Station and Moynihan Train Hall. We have completed a building-wide redevelopment of PENN 1 that includes over 140,000 square feet of amenities and all new retail, featuring a dramatic lobby with double-height ceilings surrounded by new landscaped plazas, a grand social stair and bleacher seats, a full-service restaurant, bar, and private dining rooms, all new ground floor retail including a curated grab & go, coffee bar and multiple restaurant offerings, a tenant library and work lounges, 80,000 square feet of flexible workspace, 20,000 square feet of conference space, a 53,000-square-foot Lifetime Fitness, and a pickleball center.
- Partially Built-Out as Standard Office
- Mostly Open Floor Plan Layout
- Space is in Excellent Condition
- Can be combined with additional space(s) for up to 24,950 SF of adjacent space
- Central Air Conditioning
- Partially built out space
32nd Floor
| Size | 8,114 SF |
| Term | Negotiable |
| Rental Rate | Upon Request |
| Space Use | Office |
| Build-Out | Partial Build-Out |
| Available | Now |
Penn 1: Overview - https://vno.app.box.com/s/y6pwee1icu1shdklrbufbx7dq9wf0ko2 Punctuating the Manhattan skyline, PENN 1 is a Class A, 55-story tower of over 2.5 million square feet, providing breathtaking 360-degree views of the entire city and direct access to Penn Station and Moynihan Train Hall. We have completed a building-wide redevelopment of PENN 1 that includes over 140,000 square feet of amenities and all new retail, featuring a dramatic lobby with double-height ceilings surrounded by new landscaped plazas, a grand social stair and bleacher seats, a full-service restaurant, bar, and private dining rooms, all new ground floor retail including a curated grab & go, coffee bar and multiple restaurant offerings, a tenant library and work lounges, 80,000 square feet of flexible workspace, 20,000 square feet of conference space, a 53,000-square-foot Lifetime Fitness, and a pickleball center.
- Partially Built-Out as Standard Office
- Mostly Open Floor Plan Layout
- Space is in Excellent Condition
- Can be combined with additional space(s) for up to 24,950 SF of adjacent space
- Central Air Conditioning
32nd Floor
| Size | 4,694 SF |
| Term | Negotiable |
| Rental Rate | Upon Request |
| Space Use | Office |
| Build-Out | - |
| Available | Now |
Penn 1: Overview - https://vno.app.box.com/s/y6pwee1icu1shdklrbufbx7dq9wf0ko2 Punctuating the Manhattan skyline, PENN 1 is a Class A, 55-story tower of over 2.5 million square feet, providing breathtaking 360-degree views of the entire city and direct access to Penn Station and Moynihan Train Hall. We have completed a building-wide redevelopment of PENN 1 that includes over 140,000 square feet of amenities and all new retail, featuring a dramatic lobby with double-height ceilings surrounded by new landscaped plazas, a grand social stair and bleacher seats, a full-service restaurant, bar, and private dining rooms, all new ground floor retail including a curated grab & go, coffee bar and multiple restaurant offerings, a tenant library and work lounges, 80,000 square feet of flexible workspace, 20,000 square feet of conference space, a 53,000-square-foot Lifetime Fitness, and a pickleball center.
- Listed rate may not include certain utilities, building services and property expenses
- Can be combined with additional space(s) for up to 24,950 SF of adjacent space
33rd Floor
| Size | 7,234 SF |
| Term | Negotiable |
| Rental Rate | Upon Request |
| Space Use | Office |
| Build-Out | - |
| Available | Now |
Penn 1: Overview - https://vno.app.box.com/s/y6pwee1icu1shdklrbufbx7dq9wf0ko2 Punctuating the Manhattan skyline, PENN 1 is a Class A, 55-story tower of over 2.5 million square feet, providing breathtaking 360-degree views of the entire city and direct access to Penn Station and Moynihan Train Hall. We have completed a building-wide redevelopment of PENN 1 that includes over 140,000 square feet of amenities and all new retail, featuring a dramatic lobby with double-height ceilings surrounded by new landscaped plazas, a grand social stair and bleacher seats, a full-service restaurant, bar, and private dining rooms, all new ground floor retail including a curated grab & go, coffee bar and multiple restaurant offerings, a tenant library and work lounges, 80,000 square feet of flexible workspace, 20,000 square feet of conference space, a 53,000-square-foot Lifetime Fitness, and a pickleball center.
- Listed rate may not include certain utilities, building services and property expenses
39th Floor
| Size | 3,948 SF |
| Term | Negotiable |
| Rental Rate | Upon Request |
| Space Use | Office |
| Build-Out | - |
| Available | Now |
Penn 1: Overview - https://vno.app.box.com/s/y6pwee1icu1shdklrbufbx7dq9wf0ko2 Punctuating the Manhattan skyline, PENN 1 is a Class A, 55-story tower of over 2.5 million square feet, providing breathtaking 360-degree views of the entire city and direct access to Penn Station and Moynihan Train Hall. We have completed a building-wide redevelopment of PENN 1 that includes over 140,000 square feet of amenities and all new retail, featuring a dramatic lobby with double-height ceilings surrounded by new landscaped plazas, a grand social stair and bleacher seats, a full-service restaurant, bar, and private dining rooms, all new ground floor retail including a curated grab & go, coffee bar and multiple restaurant offerings, a tenant library and work lounges, 80,000 square feet of flexible workspace, 20,000 square feet of conference space, a 53,000-square-foot Lifetime Fitness, and a pickleball center.
- Mostly Open Floor Plan Layout
- 3 Private Offices
- 2 Conference Rooms
- 16 Workstations
- Space is in Excellent Condition
39th Floor, Ste 3911
| Size | 3,075 SF |
| Term | Negotiable |
| Rental Rate | Upon Request |
| Space Use | Office |
| Build-Out | Full Build-Out |
| Available | 2026-11-01 |
- Listed rate may not include certain utilities, building services and property expenses
- Fully Built-Out as Standard Office
- 2 Private Offices
- 2 Conference Rooms
- 8 Workstations
40th Floor
| Size | 20,069 SF |
| Term | Negotiable |
| Rental Rate | Upon Request |
| Space Use | Office |
| Build-Out | Partial Build-Out |
| Available | 30 Days |
- Listed rate may not include certain utilities, building services and property expenses
- Partially Built-Out as Standard Office
42nd Floor
| Size | 12,315 SF |
| Term | Negotiable |
| Rental Rate | Upon Request |
| Space Use | Office |
| Build-Out | Partial Build-Out |
| Available | Now |
The 42nd floor is partially available. Penn 1: Overview - https://vno.app.box.com/s/y6pwee1icu1shdklrbufbx7dq9wf0ko2 Punctuating the Manhattan skyline, PENN 1 is a Class A, 55-story tower of over 2.5 million square feet, providing breathtaking 360-degree views of the entire city and direct access to Penn Station and Moynihan Train Hall. We have completed a building-wide redevelopment of PENN 1 that includes over 140,000 square feet of amenities and all new retail, featuring a dramatic lobby with double-height ceilings surrounded by new landscaped plazas, a grand social stair and bleacher seats, a full-service restaurant, bar, and private dining rooms, all new ground floor retail including a curated grab & go, coffee bar and multiple restaurant offerings, a tenant library and work lounges, 80,000 square feet of flexible workspace, 20,000 square feet of conference space, a 53,000-square-foot Lifetime Fitness, and a pickleball center.
- Partially Built-Out as Standard Office
- Mostly Open Floor Plan Layout
- Space is in Excellent Condition
- Central Air Conditioning
- Corner offices give natural light
44th Floor
| Size | 15,437 SF |
| Term | Negotiable |
| Rental Rate | Upon Request |
| Space Use | Office |
| Build-Out | - |
| Available | Now |
Penn 1: Overview - https://vno.app.box.com/s/y6pwee1icu1shdklrbufbx7dq9wf0ko2 Punctuating the Manhattan skyline, PENN 1 is a Class A, 55-story tower of over 2.5 million square feet, providing breathtaking 360-degree views of the entire city and direct access to Penn Station and Moynihan Train Hall. We have completed a building-wide redevelopment of PENN 1 that includes over 140,000 square feet of amenities and all new retail, featuring a dramatic lobby with double-height ceilings surrounded by new landscaped plazas, a grand social stair and bleacher seats, a full-service restaurant, bar, and private dining rooms, all new ground floor retail including a curated grab & go, coffee bar and multiple restaurant offerings, a tenant library and work lounges, 80,000 square feet of flexible workspace, 20,000 square feet of conference space, a 53,000-square-foot Lifetime Fitness, and a pickleball center.
- Listed rate may not include certain utilities, building services and property expenses
47th Floor
| Size | 7,744 SF |
| Term | Negotiable |
| Rental Rate | Upon Request |
| Space Use | Office |
| Build-Out | Shell Space |
| Available | Now |
This space is raw. Penn 1: Overview - https://vno.app.box.com/s/y6pwee1icu1shdklrbufbx7dq9wf0ko2 Punctuating the Manhattan skyline, PENN 1 is a Class A, 55-story tower of over 2.5 million square feet, providing breathtaking 360-degree views of the entire city and direct access to Penn Station and Moynihan Train Hall. We have completed a building-wide redevelopment of PENN 1 that includes over 140,000 square feet of amenities and all new retail, featuring a dramatic lobby with double-height ceilings surrounded by new landscaped plazas, a grand social stair and bleacher seats, a full-service restaurant, bar, and private dining rooms, all new ground floor retail including a curated grab & go, coffee bar and multiple restaurant offerings, a tenant library and work lounges, 80,000 square feet of flexible workspace, 20,000 square feet of conference space, a 53,000-square-foot Lifetime Fitness, and a pickleball center.
- Open Floor Plan Layout
- Space is in Excellent Condition
- Can be combined with additional space(s) for up to 24,632 SF of adjacent space
- Central Air Conditioning
- Space is raw.
47th Floor
| Size | 9,392 SF |
| Term | Negotiable |
| Rental Rate | Upon Request |
| Space Use | Office |
| Build-Out | Shell Space |
| Available | Now |
This space is raw. Penn 1: Overview - https://vno.app.box.com/s/y6pwee1icu1shdklrbufbx7dq9wf0ko2 Punctuating the Manhattan skyline, PENN 1 is a Class A, 55-story tower of over 2.5 million square feet, providing breathtaking 360-degree views of the entire city and direct access to Penn Station and Moynihan Train Hall. We have completed a building-wide redevelopment of PENN 1 that includes over 140,000 square feet of amenities and all new retail, featuring a dramatic lobby with double-height ceilings surrounded by new landscaped plazas, a grand social stair and bleacher seats, a full-service restaurant, bar, and private dining rooms, all new ground floor retail including a curated grab & go, coffee bar and multiple restaurant offerings, a tenant library and work lounges, 80,000 square feet of flexible workspace, 20,000 square feet of conference space, a 53,000-square-foot Lifetime Fitness, and a pickleball center.
- Open Floor Plan Layout
- Space is in Excellent Condition
- Can be combined with additional space(s) for up to 24,632 SF of adjacent space
- Central Air Conditioning
- Space is raw.
47th Floor
| Size | 7,496 SF |
| Term | Negotiable |
| Rental Rate | Upon Request |
| Space Use | Office |
| Build-Out | Shell Space |
| Available | Now |
This space is raw. Penn 1: Overview - https://vno.app.box.com/s/y6pwee1icu1shdklrbufbx7dq9wf0ko2 Punctuating the Manhattan skyline, PENN 1 is a Class A, 55-story tower of over 2.5 million square feet, providing breathtaking 360-degree views of the entire city and direct access to Penn Station and Moynihan Train Hall. We have completed a building-wide redevelopment of PENN 1 that includes over 140,000 square feet of amenities and all new retail, featuring a dramatic lobby with double-height ceilings surrounded by new landscaped plazas, a grand social stair and bleacher seats, a full-service restaurant, bar, and private dining rooms, all new ground floor retail including a curated grab & go, coffee bar and multiple restaurant offerings, a tenant library and work lounges, 80,000 square feet of flexible workspace, 20,000 square feet of conference space, a 53,000-square-foot Lifetime Fitness, and a pickleball center.
- Open Floor Plan Layout
- Space is in Excellent Condition
- Can be combined with additional space(s) for up to 24,632 SF of adjacent space
- Central Air Conditioning
- Space is raw.
51st Floor
| Size | 19,004 SF |
| Term | Negotiable |
| Rental Rate | Upon Request |
| Space Use | Office |
| Build-Out | Shell Space |
| Available | Now |
This space is raw. Penn 1: Overview - https://vno.app.box.com/s/y6pwee1icu1shdklrbufbx7dq9wf0ko2 Punctuating the Manhattan skyline, PENN 1 is a Class A, 55-story tower of over 2.5 million square feet, providing breathtaking 360-degree views of the entire city and direct access to Penn Station and Moynihan Train Hall. We have completed a building-wide redevelopment of PENN 1 that includes over 140,000 square feet of amenities and all new retail, featuring a dramatic lobby with double-height ceilings surrounded by new landscaped plazas, a grand social stair and bleacher seats, a full-service restaurant, bar, and private dining rooms, all new ground floor retail including a curated grab & go, coffee bar and multiple restaurant offerings, a tenant library and work lounges, 80,000 square feet of flexible workspace, 20,000 square feet of conference space, a 53,000-square-foot Lifetime Fitness, and a pickleball center.
- Open Floor Plan Layout
- Space is in Excellent Condition
- Central Air Conditioning
- Space is raw.
53rd Floor
| Size | 2,077 SF |
| Term | Negotiable |
| Rental Rate | Upon Request |
| Space Use | Office |
| Build-Out | - |
| Available | Now |
Penn 1: Overview - https://vno.app.box.com/s/y6pwee1icu1shdklrbufbx7dq9wf0ko2 Punctuating the Manhattan skyline, PENN 1 is a Class A, 55-story tower of over 2.5 million square feet, providing breathtaking 360-degree views of the entire city and direct access to Penn Station and Moynihan Train Hall. We have completed a building-wide redevelopment of PENN 1 that includes over 140,000 square feet of amenities and all new retail, featuring a dramatic lobby with double-height ceilings surrounded by new landscaped plazas, a grand social stair and bleacher seats, a full-service restaurant, bar, and private dining rooms, all new ground floor retail including a curated grab & go, coffee bar and multiple restaurant offerings, a tenant library and work lounges, 80,000 square feet of flexible workspace, 20,000 square feet of conference space, a 53,000-square-foot Lifetime Fitness, and a pickleball center.
- Listed rate may not include certain utilities, building services and property expenses
Property Overview
Punctuating the Manhattan skyline, PENN 1 is a Class A, 55-story tower of over 2.5 million square feet, providing breathtaking 360-degree views of the entire city and direct access to Penn Station and Moynihan Train Hall. A building-wide redevelopment of PENN 1 has been completed, which includes over 160,000 square feet of amenities and all new retail. Vornado's ongoing transformation of the midcentury PENN 1 to an office building of the future redefines working in The PENN District. The first three levels deliver WorkLife, an amenity ecosystem for tenants to focus on work and self-care. The lobby offers two options for grab-and-go food, Office Hours and Blue Bottle, and Blue Ribbon Sushi & Steak, an exciting dining experience combining traditional Japanese cuisine with a modern-day steakhouse. A social staircase connects the main entrance on the first level to the amenities on levels two and three. The social stairs' bleacher seats and large LED panels are the perfect location for casual meetings or private events. Level two features: The Landing - a full-service restaurant with private dining rooms, multiple tenant lounges for socializing and working, Life Time - a 35,000-square-foot fitness and wellness center, WorkLife Meetings - a 20,000-square-foot conferencing facility, and WorkLife Office Suites - over 80,000 square feet of adaptable workspace. The exterior building renovation is nearing completion with significant upgrades, including complete facade painting, taking the mullions from silver to black. Distinctive color change lighting in the building crown now illuminates PENN 1's place in the ever-changing skyline. Situated on one of the busiest corners in Manhattan, at the intersection of 34th Street and Seventh Avenue, and sitting atop Penn Station, the transformation of PENN 1 is poised to redefine THE PENN DISTRICT. Vornado is reimagining 150,000 square feet of retail, including the Long Island Railroad concourse and a curated retail and dining experience along Plaza 33. Inquire today to learn more about the opportunity to acquire space in the highly sought-after office and mixed-use PENN 1 iconic building.
- 24 Hour Access
- Conferencing Facility
- Fitness Center
- Restaurant
- Security System
- Signage
- Wheelchair Accessible
- Reception
- High Ceilings
- Air Conditioning
Property Facts
Select Tenants
- Floor
- Tenant Name
- Industry
- 23rd
- ADP
- Professional, Scientific, and Technical Services
- 30th
- Baker Tilly
- Professional, Scientific, and Technical Services
- 37th
- Gibbons PC
- Professional, Scientific, and Technical Services
- Multiple
- Industrious
- Real Estate
- 43rd
- Morgan Stanley
- Finance and Insurance
- 36th
- PowerSPACE & Services
- Real Estate
- 5th
- Publicis Life Brands Medicus (PLBM)
- Professional, Scientific, and Technical Services
- 8th
- United HealthCare Services, Inc.
- Finance and Insurance
- 27th
- Wells Fargo Advisors
- Finance and Insurance
- Multiple
- WSP
- Professional, Scientific, and Technical Services
Sustainability
Sustainability
LEED Certification Developed by the U.S. Green Building Council (USGBC), the Leadership in Energy and Environmental Design (LEED) is a green building certification program focused on the design, construction, operation, and maintenance of green buildings, homes, and neighborhoods, which aims to help building owners and operators be environmentally responsible and use resources efficiently. LEED certification is a globally recognized symbol of sustainability achievement and leadership. To achieve LEED certification, a project earns points by adhering to prerequisites and credits that address carbon, energy, water, waste, transportation, materials, health and indoor environmental quality. Projects go through a verification and review process and are awarded points that correspond to a level of LEED certification: Platinum (80+ points) Gold (60-79 points) Silver (50-59 points) Certified (40-49 points)
Presented by
One Penn Plaza | PENN 1
Hmm, there seems to have been an error sending your message. Please try again.
Thanks! Your message was sent.



























































