Your email has been sent.
Investment Highlights
- Situated on High traffic corner, surrounded by new residential construction, Star is one of the fastest growing cities in Idaho
Executive Summary
Property Facts
1 Lot Available
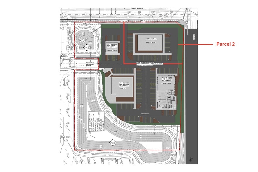
Lot Parcel 2
| Price | $1,129,550 CAD | Lot Size | 0.71 AC |
| Price Per AC | $1,590,915.56 CAD |
| Price | $1,129,550 CAD |
| Price Per AC | $1,590,915.56 CAD |
| Lot Size | 0.71 AC |
Corner Lot High Traffic count Streets and Parking to be completed shortly Surrounded by New Residential developments Nearby Freeway access is under construction Star is one of Idaho's fastest growing cities
Description
Excellent Corner Lot, located on the SW corner of Star Rd and Joplin Rd. High traffic count area in one of the fastest growing areas in the Treasure Valley. Mixed use zoning. Only 2 lots left. The following uses have been approved as part of the annexation development agreement. They would only need Zoning Certificate and Design Review. No CUP approval is required: Shopping/Retail, Professional Office, Restaurant Drive Thru. Paved road, common area landscaping and parking to be completed by Owner. Currently scheduled for build out: Orthodontist, Oral surgeon and drive through pharmacy. Lot is .71 acres with an allowable 5000 sq.ft. building. Within this 4 lot complex, 3 lots are situated on a pond. Surrounded by new construction residential subdivisions. CAM fees TBD, which will include: common area maintenance, trash, snow removal, management fees and reserves
Presented by
Parcel 2 Gallup St
Hmm, there seems to have been an error sending your message. Please try again.
Thanks! Your message was sent.




