Log In/Sign Up
Your email has been sent.
75116 Paris 10,463 SF Retail Building $20,124,717 CAD ($1,923.51 CAD/SF)



Some information has been automatically translated.
SALE NOTES
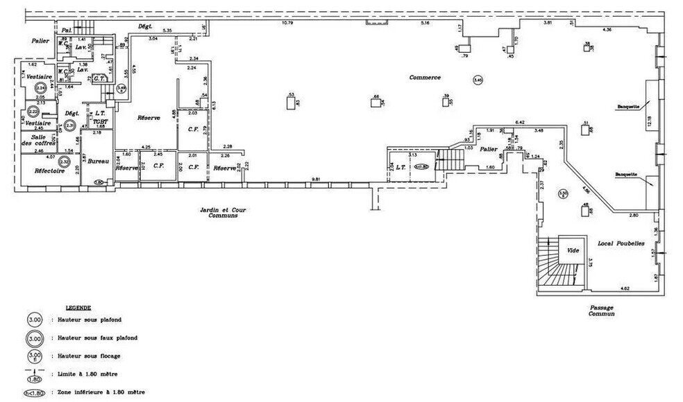
Proche Trocadéro, à vendre un local commercial occupé
Construction :
Date (dernière mise à jour) : 2025-10-22
Disponibilité : Après signature
Bail : 3 6 9
Honoraires / Vente: 5 % HT du prix de vente HD À la charge de l'acquéreur
Commentaires: Date début du bail : 01/04/25
Bail 6/10 ans fermes
Occupant : ALDI (maison mère)
Loyer annuel : 620.000 EUR HC HT
TVA sur marge : 1,6 M d'EUR
Accès livraison sur rue
Façade linéaire de 28 m
État des locaux : Très bon état
Construction :
Date (dernière mise à jour) : 2025-10-22
Disponibilité : Après signature
Bail : 3 6 9
Honoraires / Vente: 5 % HT du prix de vente HD À la charge de l'acquéreur
Commentaires: Date début du bail : 01/04/25
Bail 6/10 ans fermes
Occupant : ALDI (maison mère)
Loyer annuel : 620.000 EUR HC HT
TVA sur marge : 1,6 M d'EUR
Accès livraison sur rue
Façade linéaire de 28 m
État des locaux : Très bon état
PROPERTY FACTS
Sale Type
Owner User
Property Type
Retail
Building Size
10,463 SF
Price
$20,124,717 CAD
Price Per SF
$1,923.51 CAD
1 1
NEARBY MAJOR RETAILERS
1 of 5
VIDEOS
MATTERPORT 3D EXTERIOR
MATTERPORT 3D TOUR
PHOTOS
STREET VIEW
STREET
MAP
1 of 1
Presented by
"75116 Paris"
Already a member? Log In
Hmm, there seems to have been an error sending your message. Please try again.
Thanks! Your message was sent.
