Your email has been sent.
75016 Paris 1,668 SF Office Condo Unit Offered at $3,534,393 CAD



Some information has been automatically translated.
Executive Summary
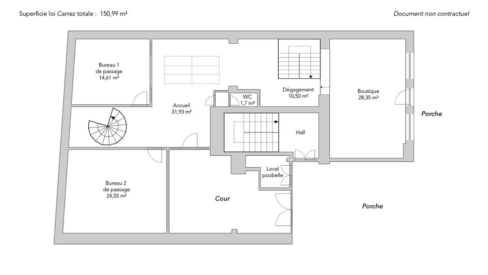
Ideally located just steps from Rue du Ranelagh, local shops, and public transportation (Jasmin metro, RER C, buses), this standalone office building offers a total surface area of 2,045 sq. ft. (1,668 sq. ft. under the Carrez law), spread across three levels: basement, ground floor, and first floor. With dual exposure to both the street and a courtyard, this property, in excellent condition, stands out with its independent street-side entrance and a second access through a charming interior courtyard. Boasting abundant natural light, the space is enhanced by large workshop-style windows, creating a contemporary and elegant atmosphere. The building features several flexible workspaces (open-plan areas, private offices, meeting room) with significant potential for customization to suit your needs. A private courtyard, exclusively for your use, is perfect for creating a relaxation area or a welcoming space for clients. A rare opportunity on the market, this property is perfectly suited for a professional practice, a firm, a showroom, or independent offices in a quiet and sought-after neighborhood.
1 Unit Available
Unit undefined
| Unit Size | 1,668 SF | Condo Use | Office |
| Price | $3,534,393 CAD | Sale Type | Owner User |
| Price Per SF | $2,118.94 CAD | Agency Fee | 5.00% of sale price |
| Unit Size | 1,668 SF |
| Price | $3,534,393 CAD |
| Price Per SF | $2,118.94 CAD |
| Condo Use | Office |
| Sale Type | Owner User |
| Agency Fee | 5.00% of sale price |
©LdeBroca-Junot-HG-4161-HDR.jpg
©LdeBroca-Junot-HG-4196-HDR.jpg
©LdeBroca-Junot-HG-4151-HDR.jpg
©LdeBroca-Junot-HG-4121-HDR.jpg
©LdeBroca-Junot-HG-4166-HDR.jpg
©LdeBroca-Junot-HG-4176-HDR.jpg
Plan spacieux offrant de nombreuses possibilités d'aménagement.
©LdeBroca-Junot-HG-4221.jpg
©LdeBroca-Junot-HG-compo-3.jpg
Property Facts
| Total Building Size | < 15,000 SF | Building Class | C |
| Property Type | Multifamily (Condo) | Floors | 5 |
| Property Subtype | Apartment | Year Built | 1890 - 1899 |
| Total Building Size | < 15,000 SF |
| Property Type | Multifamily (Condo) |
| Property Subtype | Apartment |
| Building Class | C |
| Floors | 5 |
| Year Built | 1890 - 1899 |
Amenities
Site Amenities
- Smoke Detector
Presented by
"75016 Paris"
Hmm, there seems to have been an error sending your message. Please try again.
Thanks! Your message was sent.

