Log In/Sign Up
Your email has been sent.
75016 Paris Office Condo Unit Offered at $13,921,588 CAD



Some information has been automatically translated.
Description
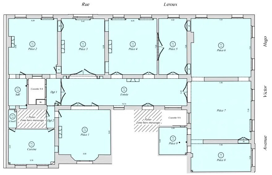
Between Place de l'Étoile and Place Victor Hugo, in a Haussmannian building, Consult'im offers a 435m² office space for sale on the 1st floor. **FEATURES OF THE OFFER** - A gallery entrance - 4 open spaces - 2 offices - 2 meeting rooms - A large equipped kitchen - 4 restrooms - A shower **FINANCIAL TERMS** - Sale price: €8,700,000 net seller - Fees: 5% excluding VAT of the net sale price - Sale of SCI shares possible
Property Facts
| Price | $13,921,588 CAD | Total Building Size | 4,682 SF |
| Unit Size | 4,682 SF | Property Type | Office (Condo) |
| No. Units | 1 | Sale Type | Owner User |
| Price | $13,921,588 CAD |
| Unit Size | 4,682 SF |
| No. Units | 1 |
| Total Building Size | 4,682 SF |
| Property Type | Office (Condo) |
| Sale Type | Owner User |
1 Unit Available
| Unit Size | 4,682 SF | Condo Use | Office |
| Price | $13,921,588 CAD | Sale Type | Owner User |
| Price Per SF | $2,973.43 CAD |
| Unit Size | 4,682 SF |
| Price | $13,921,588 CAD |
| Price Per SF | $2,973.43 CAD |
| Condo Use | Office |
| Sale Type | Owner User |
1 1
1 of 10
Videos
Matterport 3D Exterior
Matterport 3D Tour
Photos
Street View
Street
Map
1 of 1
Presented by
"75016 Paris"
Already a member? Log In
Hmm, there seems to have been an error sending your message. Please try again.
Thanks! Your message was sent.
