Your email has been sent.
75007 Paris 1,474 SF Office Condo Unit Offered at $2,736,356 CAD



Some information has been automatically translated.
Executive Summary
Au sein d’une adresse recherchée, ce magnifique rez-de-chaussée séduit par ses volumes élégants et sa rénovation réalisée avec des matériaux de grande qualité. La profession libérale s’ouvre sur un vaste open space baigné de lumière grâce à son exposition plein sud, en continuité avec une cuisine contemporaine haut de gamme, parfaitement équipée et pensée comme un véritable espace de convivialité. De beaux bureaux, tous dotées de dressings encastrés sur mesure, offrant un confort optimal. Une somptueuse salle de bain chauffée par le sol et les murs, ainsi qu’une salle de douche bénéficiant des mêmes prestations raffinées, viennent parfaire cet ensemble. En annexe, une chambre de service , située au 7? étage par ascenseur et une cave complètent ce bien rare et fonctionnel. Une adresse élégante et raffinée, idéale pour une clientèle en quête de confort et de prestations haut de gamme.
1 Unit Available
Unit undefined
| Unit Size | 1,474 SF | Condo Use | Office |
| Price | $2,736,356 CAD | Sale Type | Owner User |
| Price Per SF | $1,856.42 CAD | Agency Fee | 5.00% of sale price |
| Unit Size | 1,474 SF |
| Price | $2,736,356 CAD |
| Price Per SF | $1,856.42 CAD |
| Condo Use | Office |
| Sale Type | Owner User |
| Agency Fee | 5.00% of sale price |
Cuisine moderne avec des finitions raffinées et lumière naturelle abondante.
Un intérieur élégant avec parquet et moulures raffinées.
Charmante pièce lumineuse avec cheminée et fenêtres sur cour.
Cuisine moderne élégante avec des finitions de qualité supérieure.
Un intérieur élégant avec des détails classiques et un parquet chaleureux.
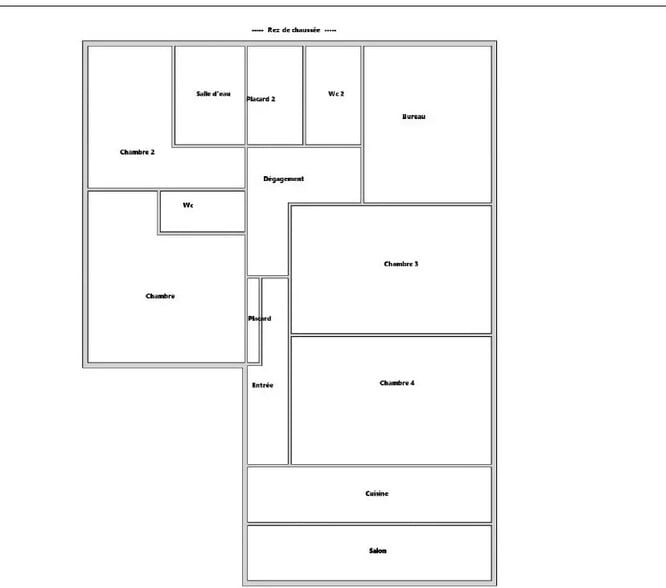
Plan d'étage spacieux avec plusieurs chambres et un salon lumineux.
Espace lumineux avec parquet et rangements intégrés, idéal pour un bureau ou un coin lecture.
Charmante pièce avec un mélange de modernité et d'élégance classique.
Salle de bain moderne avec baignoire élégante et finitions de qualité.
Un espace élégant et lumineux, alliant charme classique et modernité.
Property Facts
| Total Building Size | 10,000 - 60,000 SF | Building Class | B |
| Property Type | Multifamily (Condo) | Floors | 8 |
| Property Subtype | Apartment | Year Built | 1910 - 1919 |
| Total Building Size | 10,000 - 60,000 SF |
| Property Type | Multifamily (Condo) |
| Property Subtype | Apartment |
| Building Class | B |
| Floors | 8 |
| Year Built | 1910 - 1919 |
Presented by
"75007 Paris"
Hmm, there seems to have been an error sending your message. Please try again.
Thanks! Your message was sent.

